查看完整案例


收藏

下载
主案设计:
杨洋
项目地点:
融公馆
项目面积:
256㎡
项目风格:
新中式
本案以大唐的典雅富丽为空间情调,
将古典与现代相结合,
重述现代人文生活方式。
樱桃木、胡桃木为主材,
辅以优美含蓄的线条,
体现“梦回唐朝”的旖旎盛大之美。
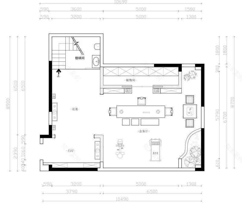
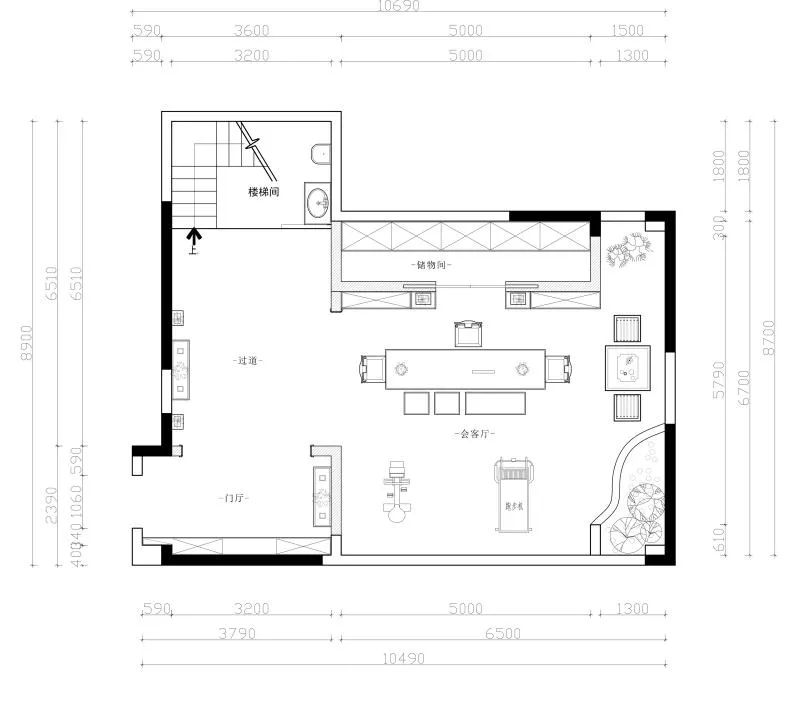
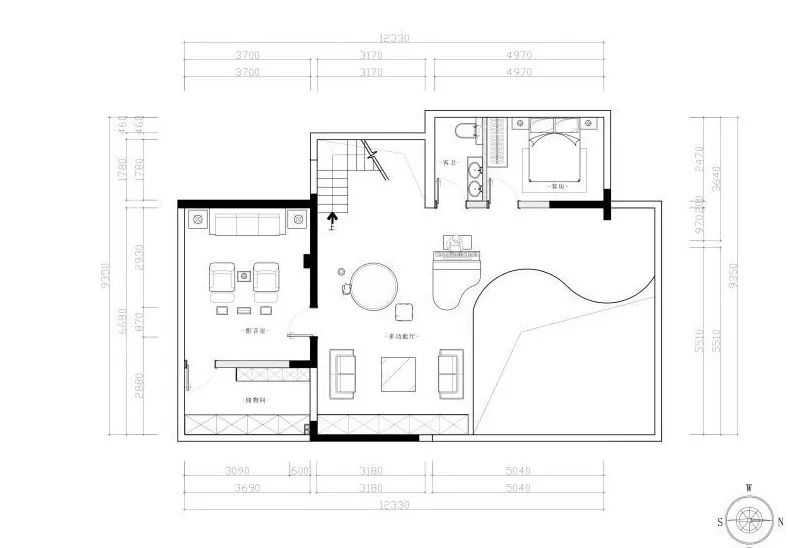
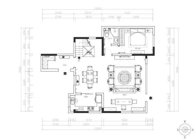
平面布局图
▼
-2L
▼
-1L
▼
1L
▼
2L
以对空间格局的规划重述日常,
合理的动线,疏密有制的尺度,
人随着动线的归置游走,
在年深日久里端显出生活的便捷、
酝酿出生活的诗意。
物茂丰盛、品类自然,
不拘于新中式风格的界定,
摒弃过度简约的呆板单调,
也不朝圣传统雕饰画廊的繁琐与郑重其事。
平和中正,体察生活,归适自然,
找寻身体与精神双层面的真正放松。
细节之处展现品质,
每一个部件的组合搭配,
都在为空间的整体氛围做出贡献。
将对厚重文化的解读,
轻轻放释于一形一貌、一行一止之间,
山水、云影,奇石,梅瓶,
从自然风物到精细器皿,
自然与文化紧密相接,
拮取自然,适量点萃,
尽得缥缈与风雅的情致。
连接各种画面的联想与美好体验,
将东方精神注如入对当代人居环境的想象,
在空间中邂逅人境合一的自我,
抒写舒适自然状态下的人文情怀。
关于设计师
杨洋
从业13年
旗盛装饰首席设计师
教育经历:
2001年—2005年陕西科技大学环境艺术设计专业
培训经历:
2010年7月15日—2010年8月1日在广东美术学院陈设设计学习班培训学习
2012年12月15日—2013年1月18日在北京大学美术学院培训中心家庭软装设计高级研修班研修
工作经验:
2007年7月—2012年9月 陕西城市人家装饰有限公司 主任设计师
2012年9月—2014年1月 西安鲁班装饰 首席设计师
2014年3月—至今 西安旗盛装饰设计工程有限公司 首席设计师
设计理念:
读懂生活,用心.认真的对待每一个案子。为居住的人谱写每个晨昏,每次相聚,每个瞬间的生活韵味,尽力去满足人们多样化的生活需求,不为个性而个性,不为设计而设计。
所获荣誉:
2008年:陕西房产住博会大展三等奖
2009年:中国建筑住宅设计优秀奖
2009年:中国室内注册设计师
2011年:中国室内装饰住宅设计大赛优秀奖
2012年:“松下杯” 设计大赛优秀奖
2013年:中国“东鹏杯”设计大赛优秀奖
2014年:西安市家庭装饰行业优秀设计师
2015年:中国第七届“筑巢杯”大赛优秀
2016年:“京瓷杯”新中式设计大赛最佳创意奖
2017年:2017亚太设计师大赛空间改造创意奖
2018年:2018亚太设计师大赛优秀奖
代表作品:
代表作品: 曲江六号 梧桐苑 钻石半岛 高山流水别墅 紫薇永和坊等
骑士精神 追求完美
SPIRITS OF PERFECT
旗盛装饰
是一家集设计、施工、实木定制为一体的建筑装饰企业。以“为客户提供真实持久的价值”为理念,9年时间里,在设计上不断进行创新、工程上以实木为主线,现皆已成为高端装修领域的标杆!
旗盛设计师团队凭借多年的工作经验及超前的设计思维,在国内设计比赛中屡获大奖,更为众多名门贵族提供智能化、个性化的设计与服务,形成了旗盛独有的设计文化。旗盛装饰多店联动,以新的目标让这支专业、务实、又充满朝气的队伍在千变万化的市场面前,坚守信念,稳步向前。
—— Tel
曲江店客服:029——89122200
高新店客服:029——89282620
浐灞店客服:029——89870729
—— add
曲江店:雁塔区翠华南路佳和中心B座601——603
高新店:高新路南段高山流水和城商铺10108
浐灞店:西安市浐灞新区欧亚国际C座901室
客服
消息
收藏
下载
最近
















