查看完整案例


收藏

下载
主案设计:
李通
项目地点:
神木·和谐家园
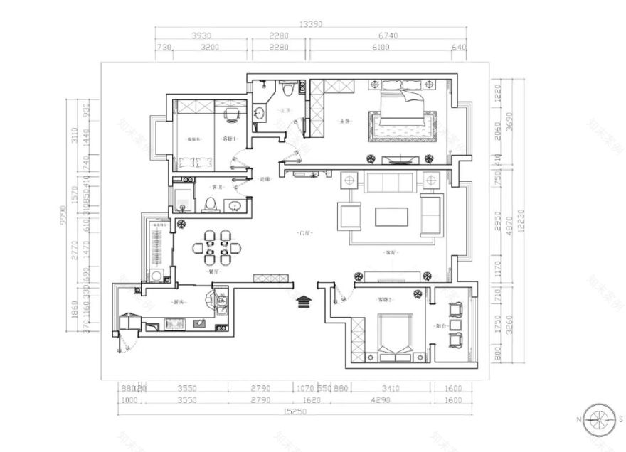
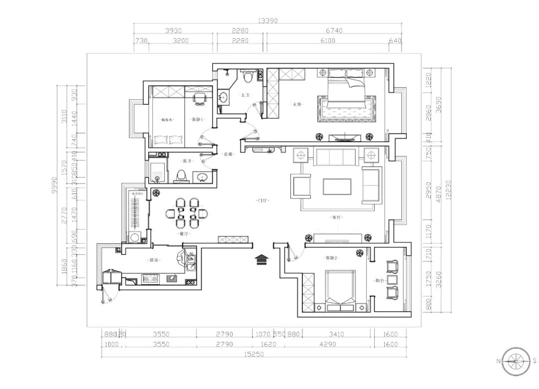
项目面积:
160㎡
项目户型:
三室两厅一厨两卫
项目风格:
新中式
皓月千里,
浮光跃金,
静影沉璧,
此乐何极!
▼
平面布局图
现代笔触为骨,
东方底蕴为魂。
本案在解决业主对于生活习惯
以及色彩精细程度的高要求的同时,
在材质上采用了
石材、棉麻、丝光、木材,金属等
高品质贴切生活的材质,
诉说着新中式、新艺术的生活态度。
通过自然元素带来的坚定感、生机感、归属感,
赋予整个空间沉稳安静的的格调,
散发舒缓的意境。
质感的灰调,天然的材质,
极简的线条营造空间的现代格调。
结合历史与当下,
着眼未来时间的坐标,
在复古情调与现代审美之间,
设计者找到那个恰如其分的融合点,
重述东方意境、隐喻山水情怀。
现代造景技法
与东方美学的智慧和精妙融为一体,
衍生中正平和之美。
一步一景,步步见景,
皆是心之所向。
着眼于“日常”,
在闲散中邂逅空灵的微妙心境。
以质感铺就时光丰盈,
铺就古朴素雅的底色。
一室之内,
尽观零落雨雪,
观尽明灭灯火。
描摹山水的笔墨宜浅、宜淡、宜润,
不琢于形,
方得倏忽、飘逸、恒长的境况。
谁人不爱自然的清明、恒长与辽阔呢?
人居环境的理念,
在对历史人文脉络的追寻、传承、融汇中,
以山水形态为物象得以寄托,
这是最恰如其分的后天表达。
自然恒长不灭,
恒长爱自然。
关于设计师
李通
从业5年,毕业于建筑科技大学环境艺术专业。
设计理念:设计源于生活,生活因设计去改变!成就空间和谐,让设计物有所值,让细节缔造完美!
部分荣誉:
中国室内装饰协会注册设计师
中国建筑学会室内设计分会会员
2015阿姆瑞特杯室内设计大赛二等奖
2016年中国设计大赛优秀奖
2017年筑巢奖优秀作品奖
2018年中国室内设计年鉴入围作品奖
代表案例:金地湖城大境,龙湖花千树,海德堡,鸿基紫韵……
骑士精神 追求完美
SPIRITS OF PERFECT
旗盛装饰
是一家集设计、施工、实木定制为一体的建筑装饰企业。以“为客户提供真实持久的价值”为理念,9年时间里,在设计上不断进行创新、工程上以实木为主线,现皆已成为高端装修领域的标杆!
旗盛设计师团队凭借多年的工作经验及超前的设计思维,在国内设计比赛中屡获大奖,更为众多名门贵族提供智能化、个性化的设计与服务,形成了旗盛独有的设计文化。旗盛装饰多店联动,以新的目标让这支专业、务实、又充满朝气的队伍在千变万化的市场面前,坚守信念,稳步向前。
—— Tel
曲江店客服:029——89122200
高新店客服:029——89282620
浐灞店客服:029——89870729
—— add
曲江店:雁塔区翠华南路佳和中心B座601——603
高新店:高新路南段高山流水和城商铺10108
浐灞店:西安市浐灞新区欧亚国际C座901室
客服
消息
收藏
下载
最近














