查看完整案例


收藏

下载
项目坐标:澜园
项目户型:平层
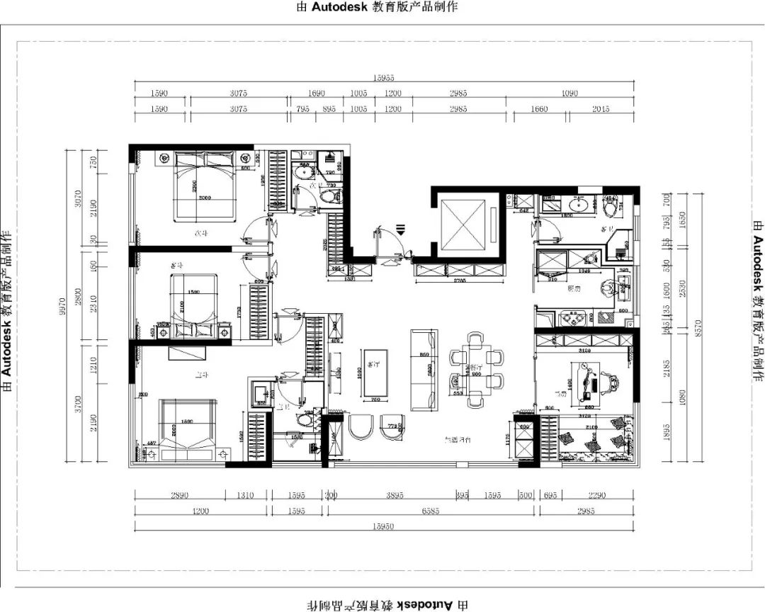
项目面积:160 ㎡
主案设计:苏一
设计主材:爵士白/咖慕丝/巴菲特石材 铜色不锈钢 木制单板饰面板 乳胶漆 瓷砖 木地板
四室两厅三卫一厨的平层、
作为四口之家的常住居所,
本案注重对实用功能的提升,
保障私密空间的充足性的同时,
实现对储物功能的最大优化。
▼ 平面布局图
空间的视觉传达,
通过对业主信息的充分采集,
确定为以轻奢为基调的新中式风格。
注重对细部的处理、
注重色彩的平和调汇,
注重材质切实的质感,
以精神内核为指引,
共同缔造舒适、放松、惬意的空间效果。
在充满现代感的东方意境中,
品味于漫长岁月里淬炼而出的浑厚的东方美学,
以细腻丰富的内涵,
以简约留白之美,
融洽现代化的都市生活方式,
定义于品味,
重新定义时尚的范畴。
因为是河景房,
采用纵向加横向的布局,
使得空间更为开阔,
比例更为协调。
从客厅到餐厅,
在充足的采光里,
释放内外环境的关联,
静享悠然时光。
平静而舒展的生活方式
是设计的内在表达,
日升月落、光影流转,
于时间的流逝里,
一切设计的元素留于日常,
食材与酱料的互动、
人与人的交汇,
在这些纯粹、真实的琐碎里,
立足、务本,
探求空间的本质,
探所生活的真相。
关于设计师
苏一
从业年限:15年
擅长风格:维多利亚风格,新中式,后现代
设计理念:不赞成过度设计,不向偏见妥协,让人对美的认知从直观感觉变为间接感觉,从而使环境和人更深入地融合
案例地点:枫叶新都市 留园森林别墅 雅荷春天 逸翠园 曲江皇家温泉花园 铂宫
个人经历:
2003年-2010年 北京龙发装饰集团西安分公司
2010年-2012年 北京元洲装饰集团西安分公司
2016年-2017年 北京高度国际装饰集团西安分公司
所获荣誉:
2003西安青年设计大赛二等奖
2005年雷士中国照明大赛二等奖
2009年东鹏杯设计大赛一等奖
2012年华商报设计大赛一等奖
2013年阿姆瑞特杯设计大赛优秀奖
旗盛装饰是一家集设计、施工、实木定制为一体的建筑装饰企业。以“为客户提供真实持久的价值”为理念,9年时间里,在设计上不断进行创新、工程上以实木为主线,现皆已成为高端装修领域的标杆!
旗盛设计师团队凭借多年的工作经验及超前的设计思维,在国内设计比赛中屡获大奖,更为众多名门贵族提供智能化、个性化的设计与服务,形成了旗盛独有的设计文化。旗盛装饰
多店联动,以新的目标让这支专业、务实、又充满朝气的队伍在千变万化的市场面前,坚守信念,稳步向前。
—— Tel
曲江店客服:029——89122200
高新店客服:029——89282620
浐灞店客服:029——89870729
—— add
曲江店:雁塔区翠华南路佳和中心B座601——603
高新店
:
高新路南段高山流水和城商铺10108
浐灞店
:
西安市浐灞新区欧亚国际C座901室
客服
消息
收藏
下载
最近











