查看完整案例


收藏

下载
古建新制 立意传承
中海万锦公馆,位于郑州经开区滨河国际新城,是中海地产倾力打造的第24座“京府系”产品。秉承“京府系”的东方人文美学风范,本案项目院藏府居乾坤,山水园景尽显雅静东方气质,其室内设计由注重空间文脉承袭的本则设计执笔。
本则设计创始人梁智德先生是建筑专业出身,对于中国传统建筑中的智慧着迷不已,对东方传统文化、易学理念也有个人独特的认识与理解,他致力用一生来体悟,将这些传统的宝贵文化推广并传承下去。关于本案空间的特性,他表示:“在承袭传统的基础上寻求本质根源,立意营造空间,依然是项目的文化根底,我们希望通过引人入胜的室内空间形式,触及中国古代建筑的内在灵魂。”
一个有追求的设计作品,当有深邃的精神文化内涵,给符合视觉审美的形似外延增添一些耐以咀嚼和品味的精神质地。中海万锦公馆对中国的传统建筑元素进行了重新的审视,将整个空间营造成一篇由优美建筑符号元素演绎的古雅乐章,让我们在当代的语境之上,能够感悟到一些永恒的人文精神与美学意涵。
前台接待区
中海万锦公馆府以恭王府为形制,入户大门尽显望族威仪。中式传统建筑标志的门当细节、飞檐、额枋、照壁、回形纹、地面石铺上的传统祥云纹等,细琢精雕,一派雅致堂皇。前厅接待区域与室外空间一脉相续,融入灰黑大理石材质,体现出中国传统文化与现代设计的融汇无间,空间形态追蹑骈文般整齐华美的姿彩。
模型区
整体空间大气朗阔、沉稳内敛,尽显中式传统高门大户的典雅之美。设计通过自然的木制材料营造出别具风范的气度美学,典重而谦和,高雅而安详。左右两侧的木栅墙体以严谨的模数排列布局,疏密有致,与天花的木制架构融为一体,展现鲜明的构图感和传统建筑结构美学。
天花吊灯以传统中式斗拱作为设计灵感,取其结构之美,用现代手法重新组合,设计极具中式韵味与现代感,低调内敛的浅木色,结合点点柔光,赋予空间独特而考究的内涵气质。
设计将山的概念融入景墙,以汉白玉浮雕的形式凸显山势的美感,展现中国传统人居的雅奢情怀,与上端的俨然有序相反,大理石地板上的墨色图案恰如墨笔濡染的灵动恣意,又如水的气势涌动,古人有言:“仁者乐山,智者乐水”,一静一动,这两者的气韵共同丰富滋养着空间的精神世界。
洽谈区
设计以博古书架作为不同空间之间相连接的中介,置放仿古建模型、传统艺术小品,让传统人文气韵充盈整个空间。
洽谈区低调温馨又略带古意的配色,局部以绘有金色山水的屏风造景,营造出富贵悠闲意态,整体营造出雅静而弥漫传统意蕴的舒惬氛围。在家具搭配上,皮质与石材并重,体现中西交融 、古今相继的设计概念。
茗茶区
茗茶区位于洽谈区尽头,迎客松盆栽小品、趣尽天然的木头茶桌,弥散东方美学气质,整体风格朴拙而自然,使人有置身诗文画意自在徜徉之感。迎客松与背景墙的圆形挂饰相互衬托,犹如日出深山,更显意境悠然。
别墅洽谈区
同样以山作为设计灵感,水墨金箔画前由一排木格栅屏风覆盖,隐约透出山体的线条美,天花的吊灯犹如漂浮在山上的云朵。空间背景色为清雅的纸白,点缀的鎏金色,让空间的中式情韵脱颖而出。
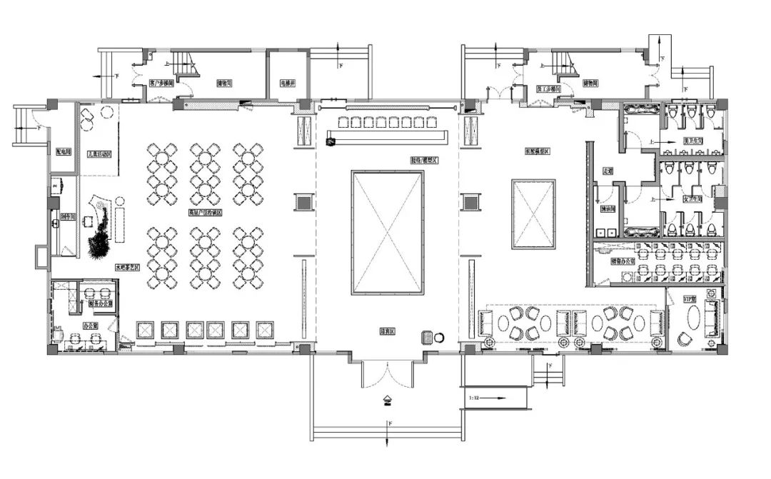
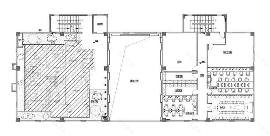
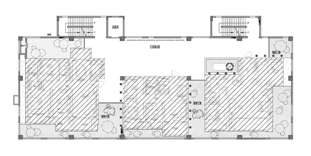
设计图纸
一层 平面图
二层 平面图
三层 平面图
效果图
项目名称: 郑州中海万锦公馆
项目地址: 河南 · 郑州
竣工时间: 2018年 6 月
项目面积: 800㎡
设计机构: 本则设计
创意总监: 梁智德
设计团队:
梁智德、常永远、梁碧莹、罗海平,林伟冰,袁思颜
本则设计(BASIC DESIGN),建立于2013年,致力于为一线开发商提供高品位室内及软装设计服务,精装BIM体系服务,助力房地产智能化。在地产精品专案、文旅项目及精装正向BIM项目上均有不菲业绩。
公司汇聚大批资历丰富、充满热情的专业设计人才,在设计中,以“崇尚自然、尊重传统,追溯本源,立意营造”作为设计理念,注重在承袭传统的基础上寻求本质根源,立意营造空间;在尊重地域文化精神和现代设计理性规律的基础上,实现精神与物质之间的价值最大化。五年来实现数以百计的设计作品,与万科、保利、中海、龙湖、中弘、金茂、凯德地产等结成了长期友好的战略合作关系。
近期作品
△三亚华皓亚龙府售楼处
△三亚华皓亚龙府王府合院
△常州雅居乐售楼处
△郑州中海万锦公馆
△长白山中弘池南区项目售楼中心
特别鸣谢(排名不分先后)
柏舍励创设计平台
梁淑芸女士
梁荣东先生
客服
消息
收藏
下载
最近













































