查看完整案例


收藏

下载
公寓是时下较为流行的居住形式之一,尤其受年轻群体的青睐。经济实用的公寓,空间布局紧凑,简约精致不乏时尚,更贴合现代年轻客户的喜好和需求,因而颇受欢迎。
户型一:20㎡一房一厅
极简主义的小公寓
户型平面图
而随着人们居住要求的提高,公寓的呈现形式也在不断优化,尤其是对户型产品设计、生活环境、交通便利性,以及物业管理都有着严格的要求,甚至要比住宅更精细化。在中山,能兼具上述所有要求的公寓项目并不多。而坐落于中山城北的中海世纪荟全能型loft公寓便是其中的佼佼者。
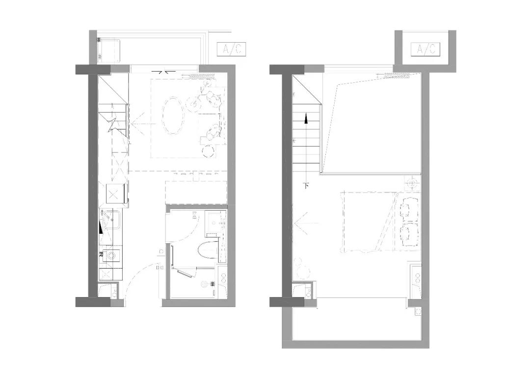
户型二:30㎡一房一厅
自由浪漫的乌托邦
户型平面图
它拥有无可挑剔的户型格局,在小空间里实现家居功能的完整性,满足煮食、就餐、会客娱乐、晾晒、睡眠、工作、收纳等功能需求,让居住在小空间里也有大空间里的舒适体验,是为追求梦想的青年打造城市生活的“家”。
户型三:40㎡两房两厅
温暖心灵的港湾
户型平面图
在中山世纪荟除了个性鲜明的公寓,还为不同的客户准备了更多选择:
本案以现代简约明快的设计风格为主调,极力营造一个既时尚兼高品质高舒适度的居家环境。客厅背景墙主要用材为木饰面及灰镜,通过不规则线条分隔,突出整个空间休闲简洁的空间感受,再将次手法延伸至整个空间,包括主人房,采用硬包与灰镜的结合,呈现出一个时尚舒适的卧室空间;卫生间与厨房即采用灰色瓷砖与石材的结合,灰色中透着明亮的视觉效果。
82㎡三房二厅单层住宅
户型平面图
项目名称:中山中海世纪荟LOFT公寓&住宅
项目地址:广东·中山
项目面积:20㎡、30
㎡、40
㎡、82
㎡
设计机构:本则设计
创意总监:梁智德
项目总监/BIM总监:杨其标
设计团队:梁智德、梁淑华、林伟冰、杨礼琴、周业威、杨远林、袁思颜
本则设计(BASIC DESIGN),建立于2013年,致力于为一线开发商提供高品位室内及软装设计服务,精装BIM体系服务,助力房地产智能化。在地产精品专案、文旅项目及精装正向BIM项目上均有不菲业绩。
公司汇聚大批资历丰富、充满热情的专业设计人才,在设计中,以“崇尚自然、尊重传统,追溯本源,立意营造”作为设计理念,注重在承袭传统的基础上寻求本质根源,立意营造空间;在尊重地域文化精神和现代设计理性规律的基础上,实现精神与物质之间的价值最大化。五年来实现数以百计的设计作品,与万科、保利、中海、龙湖、中弘、金茂、凯德地产等结成了长期友好的战略合作关系。
近期作品
△三亚华皓亚龙府售楼处
△三亚华皓亚龙府王府合院
△常州雅居乐售楼处
△郑州中海万锦公馆
△长白山中弘池南区项目售楼中心
客服
消息
收藏
下载
最近



















































