查看完整案例


收藏

下载
“勾勾手设计网”!勾勾手刘志广说:Liu said,作为出来创业的地产人,只要做“住”相关的创业,我们都有知识及人脉方面的优势,所以我为什么能快速地用 4 年时间打算出一个移动房制造产业链,并可以用刘关张@移动房机构来管理产业链!
As a real estate entrepreneur, as long as we do “Live” related entrepreneurship, we have knowledge and network advantages, so why I can quickly use 4 years to plan a mobile housing manufacturing industry chain, and can use Liu Guan Zhang@mobile housing agencies to manage the industrial chain!
02-装配住宅
该项目是一系列高性能和节能工业化住宅的重复模式,结合了建筑设计、精密工程和工业生产能力。
The project emerges as a repetition model of a line of high-performance and energy-efficient industrialized houses that combine architectural design, precision engineering, and industrial capacity.
首层平面布置图
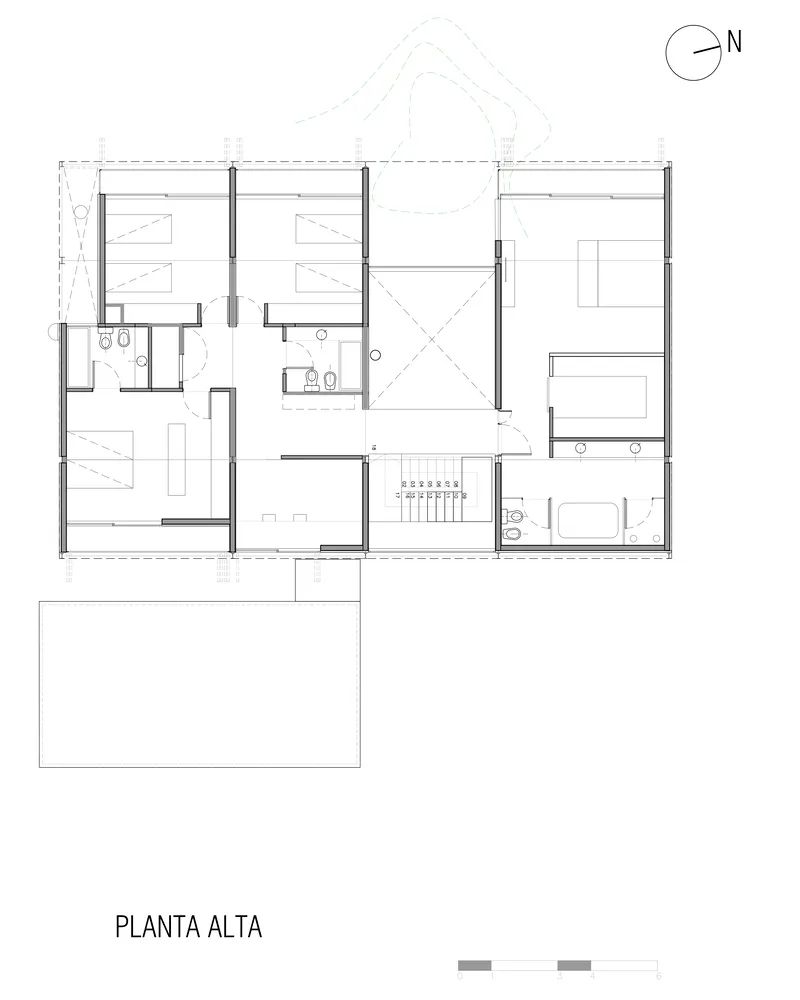
二屋平面布置图
效果图
几乎所有的工作都是在工厂内按照政府批准的条款进行的,并在现场组装,加快了工作时间。它是开发基于一个系统的轧制 w 螺栓型材,然后放在一起,预制板和墙壁及其各自的安装,放置在起重机。
Almost all of the work is produced in the plant using the terms of government approvals and assembled on-site, accelerating work times. It is developed based on a system of rolled W bolted profiles that are then put together with the precast slabs and the walls with their respective installations that are placed with a crane.
较低的楼层看起来是一个不确定和灵活的空间,服务空间朝向街道和最不利的一面,能够打开视觉的其余活动朝向花园的背景和最好的方向,使用半覆盖作为一种阳光保护的方法。
The lower floor appears as an indeterminate and flexible space where service spaces are towards the street and the most unfavorable side, to be able to open the visuals of the rest of the activities towards the garden in the background and the best orientations using the semi-covered as a method of sun protection.
这种安排是通过使用一个悬挑结构来加强的,这样可以减少对结构的感知,从而实现更好的内部和外部之间的相互作用和连续性。
This arrangement is enhanced by the use of a structure that overhangs and that allows the perception of the structure to be reduced and thus achieve better interaction and continuity between its interior and exterior.
-关于我们-
我从现有的蔚来花园、常州项目、桔子小镇、大新文创园、高明商业街项目、正在上马的屋面商业项目中,提出城市商业(商):蔚来房屋、乡村文旅(旅):景墅建筑 IP、新农村住宿(宿):微住宅三种分类作为我们农村地产的核心产品类目,在后面的文章中,我会慢慢地用这 3 个分类来介绍产品,请大家留意了!
移动房订制流程
产品的订制流程:
1. 找设计单位或请我们将想要订制的移动房款式设计图纸完成→发图纸给我们制作产品成本清单→确定价格并签定订制合同。
2. 收到预付款后确定图纸及材料后我们就会开始制作。
3. 成品验收合格后运到现场进行安装。
-欢迎来图订制-
往期专辑
Past TopicsClick
PC 泡屋
体系
▽
泡泡屋专辑
常规酒店配套家具专辑
集装箱住宅专辑
微住宅品牌
玻璃屋
镜屋
太空屋
帐篷
业务联系人(移动房主号)
业务联系人(泡屋主号)
关于我们
勾勾手|中国,是为解决设计者及中小型工作室、设计公司、民宿宿主及项目投资者等对设计、建材、灯具、家具、民宿、施工等产品的落地公司,一站式问题的解决者。集策划设计、产品开发、品牌运营、施工等的综合体。。END
客服
消息
收藏
下载
最近









































