查看完整案例


收藏

下载
“勾勾手设计网”!勾勾手设计网最新主题歌。勾勾手刘志广说:Liu said。昨天去了天河龙洞,再一次回去怀念广州气模厂的贸易办公室,自从 2019 年疫情发生,老应负责的外贸广告气模产业(准确地讲事个气模行业)都扑街了,我一直在找一个合适的机公,让老应重启气模厂,因为广告气模(订制产品)是一个基础性的产业,汽车帐篷(常规产品)是一个增量市场,只要老外可以重新入来,这个挣美元的外贸版块相信会重新挣钱!
广告气模
I went to Tianhe Longdong yesterday and went back again to miss the Trade Office of Guangzhou Air Mould Factory. Since the outbreak of the epidemic in 2019, the air mould industry (to be exact, the air mould industry), which has always been responsible for foreign trade advertising, has all failed. I have been looking for a suitable company to restart the Air Mould Factory, because Advertising Air Mould (custom-made products) is a basic industry, and car tents (conventional products) is an incremental market. As long as foreigners can re-enter, this earned the dollar foreign trade section believed that will make money again!
02-瓦霍巴生态度假村
瓦霍巴生态旅馆是一个度假胜地,毗邻印度马哈拉施特拉邦塔多巴野生动物保护区的森林缓冲区,目标客户是野生动物爱好者和自然资源保护者。简报要求建设一个以负责任的旅游业为核心的 16 间小屋度假村。作为生态意图的一部分,开发商试图将以前的耕地恢复到原来的落叶林状态,这就需要对景观进行干预,以增强生物多样性。通过观察周围的土地和进行生物多样性调查,确定了当地的动植物。
Waghoba ecolodge is a resort contiguous to the forest buffer of Tadoba wildlife sanctuary in the state of Maharashtra India. The target clientele for the property is wildlife enthusiasts and conservationists. The brief required a 16-cottage resort with responsible tourism at its core. The developers sought to restore the previously cultivated land to its original state of being a deciduous forest as part of their ecological intentions. This required interventions in the landscape to enhance biodiversity. By observing the land around and through a biodiversity survey, local flora and fauna were identified.
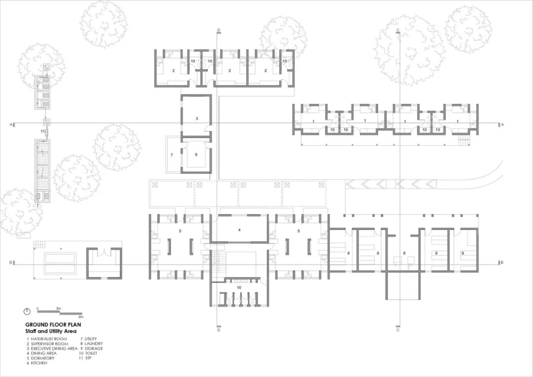
总体建筑平面布置图
建筑平面详图
为了使生物多样性得以繁荣,必须在该地区的半干旱气候建立一个水体。在夏季,这里的温度上升到 48 摄氏度,通过识别现有的外滩和疏浚河道,在度假村的入口处形成了一个湖泊。这个湖储存雨水并处理废水。额外的本土植物造林为动物群落接近湖泊提供了绿色通道。这个湖现在是许多鸟类和动物的家园。在设计中引入了一个瞭望隐蔽处,以便狂热爱好者和专业的野生动物摄影师在自己的栖息地观察这种动物。
For biodiversity to flourish, it was essential to incorporate a water body in the semi-arid climate of this region. In the summer, temperature here rises to 48-degree C. By identifying the existing bund and desilting the channels, a lake was made at the entrance of the resort. This lake stored the rainwater and treated wastewater. Additional afforestation with indigenous plant species provides a green corridor for the fauna to approach the lake. This lake now is home to a plethora of birds and animals. A lookout hide has been introduced in the design for enthusiasts and professional wildlife photographers to watch the fauna in its own habitat.
托达巴的景观在一年中的大部分时间里有各种各样的金色到深棕色的色调,在季风期间则是绿色的。金色到棕色色调的捕捉已经在建筑干预的材料调色板中完成。材料调色板是当地砂岩和土坯的结合,在现场使用当地土壤。这个湖成了这个项目的基地。主楼和欢迎区在这个湖的边上。在这里,旅行者们也在享受初升的太阳,当他们准备出发去森林旅游的时候。沿着用餐区和休息室的观景者可以欣赏到湖泊、森林和傍晚的天空。在这个高高的休息室下面是一个有阴凉的游泳池,它的露台可以俯瞰湖面。水池的天花板有一个锅盖填充物,创造动态反射,同时减少生态材料的消耗。
The landscape of Todaba’s has a variety of shades of gold to dark brown for the most part of the year and green during the monsoons. Capturing of the gold to brown hue has been done in the material palette of the architectural interventions. The material palette is a combination of local sandstone and stabilized adobes made at the site using local soil. The lake becomes the loci of the project. The main building and its welcome area, edge this lake. Here the travelers also enjoy the rising sun when they are getting ready to leave for the forest tour. Belvederes along the dining area and the lounge enjoy views of the lake, forest, and the evening skies. Below this elevated lounge is a shaded swimming pool with its deck overlooking the lake. The ceiling of the pool which has a filler of pot lids creates dynamic reflection while ecologically reducing material consumption.
我从现有的蔚来花园、常州项目、桔子小镇、大新文创园、高明商业街项目、正在上马的屋面商业项目中,提出城市商业(商):蔚来房屋、乡村文旅(旅):景墅建筑 IP、新农村住宿(宿):微住宅三种分类作为我们农村地产的核心产品类目,在后面的文章中,我会慢慢地用这 3 个分类来介绍产品,请大家留意了!
移动房订制流程
产品的订制流程:
1-找设计单位或请我们将想要订制的移动房款式设计图纸完成→发图纸给我们制作产品成本清单→确定价格并签定订制合同。
2-收到预付款后确定图纸及材料后我们就会开始制作。
3-成品验收合格后运到现场进行安装。
欢迎来图订制
往期专辑 Past TopicsClick PC 泡屋 体系
▽
泡泡屋专辑
常规酒店配套家具专辑
集装箱住宅专辑
微住宅品牌
玻璃屋
镜屋
太空屋
帐篷
业务联系人
关于我们
勾勾手|中国,是为解决设计者及中小型工作室、设计公司、民宿宿主及项目投资者等对设计、建材、灯具、家具、民宿、施工等产品的落地公司,一站式问题的解决者。集策划设计、产品开发、品牌运营、施工等的综合体。。END
客服
消息
收藏
下载
最近











































