查看完整案例


收藏

下载
勾勾手设计网!刘老师说 Liu said 这个项目位于哈尔吉塔山中心,距离 miercurea ciuc10 公里,它响应了一个特殊的要求:在滑雪坡底部为家庭和儿童设计了一个亭子。我们打算用简单的方式回答这个问题。Located10kmfromMiercureaCiuc,intheheartoftheHarghitamountains,thisprojectrespondstoaspecificrequest:thedesignofapavilionforfamiliesandchildrenatthebaseoftheskislope.Weintendedtoanswerthisquestioninasimplemanner.
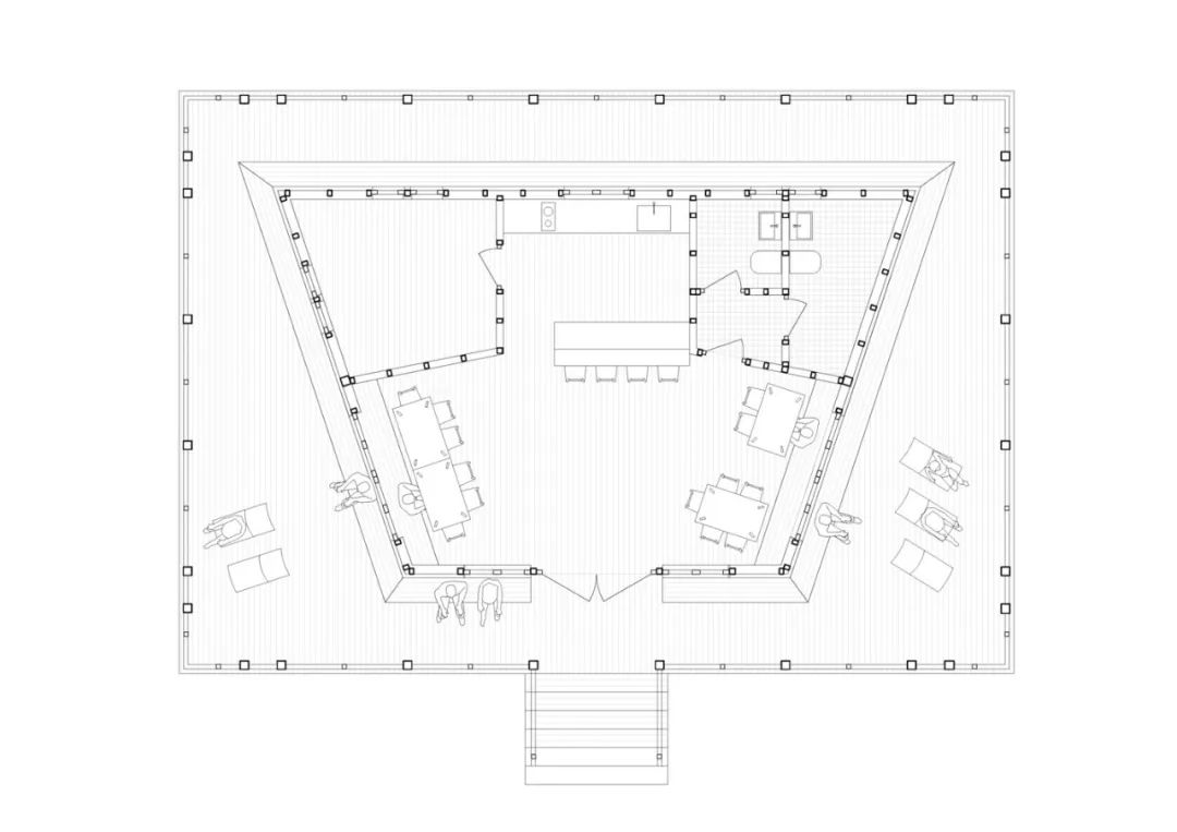
平面布置图
我们设想了一个可以在季节周围使用的亭子,内部空间以及一个大的周边露台用作日光浴室,或者允许其他活动发生。展馆通过主要空间的方向和朝向滑雪坡和太阳的露台的扩大,以一种微妙的方式对环境作出反应。
We imagined a pavilion that can be used all around the seasons, with interior space as well as a large perimetral terrace used as a solarium or allowing for other activities to happen. The pavilion responds to its environment in a subtle manner, by the orientation of the main space and the enlargement of the terrace towards the ski slope and the sun.
这个建筑的强度在于其简单的形式:一个对称的平面,一个同心的房间排列,一个沿着外墙的连续的长凳,一个被柱子包围的露台。木材是这个项目的主要材料,主要原因是当地的施工技术和使用单一材料的愿望,从结构到装修。我们的方法灵感来自于本地建筑的例子,这种自发的、可理解的形式通过可理解的体量和外壳的自然老化,自然地融入环境中。
The strength of this architecture resides in its simple form: a symmetrical plan, a concentric arrangement of rooms, a continuous bench along the outside wall, a terrace surrounded by columns. Wood is the principal material of this project. The main reasons are the local know-how in site construction and the desire to use a single material, from structure to finishing. Presence Our approach is inspired by examples of vernacular architectures. This autonomous and intelligible form integrates naturally into its environment through its comprehensible volume and the natural aging of its envelope.
勾
勾
手设计网|2022 年业务布局
A)服务内容:
01-乡村文旅顾问服务(项目策划顾问+规划设计指导+招商运营指导)
02-民宿自建(设计+施工+运营推广)
03-梦茹餐饮设计工作室(餐饮加盟连锁商业赋能)
04-工业钢构厂房自建(工业地产开发商)
团队揸 FIT 人介绍
B)卖|01-蔚来主题花园商业模式及配套移动房产品:
我从现有的蔚来花园、常州项目、桔子小镇、大新文创园、高明商业街项目、正在上马的屋面商业项目中,提出城市商业(商):蔚来房屋、乡村文旅(旅):景墅建筑 IP、新农村住宿(宿):微住宅三种分类作为我们农村地产的核心产品类目,在后面的文章中,我会慢慢地用这 3 个分类来介绍产品,请大家留意了!
往期专辑
Past TopicsClick
了解更多,点击以下专辑
▽
01-集装项目 专辑
02-梦茹制造
服务咨询联系人↓↓↓
关于我们→→
勾勾手|中国,是为解决设计者及中小型工作室、设计公司、民宿宿主及项目投资者等对设计、建材、灯具、家具、民宿、施工等产品的落地公司,一站式问题的解决者。集策划设计、产品开发、品牌运营、施工等的综合体。
客服
消息
收藏
下载
最近

































