查看完整案例


收藏

下载
“勾勾手设计网”!刘老师说 Liu said 这个项目包括一个外卖咖啡店,一个陈列室,在那里你可以买到所有与咖啡有关的用品,从设备到每公斤的咖啡,一个存放商品的地方,还有一个楼上的办公室。
The project is made up of a takeaway coffee, a showroom where you can buy all the supplies related to coffee, from equipment to coffee per kilo, a storage area where merchandise is received, and an upper floor where find the offices.
首层平面图
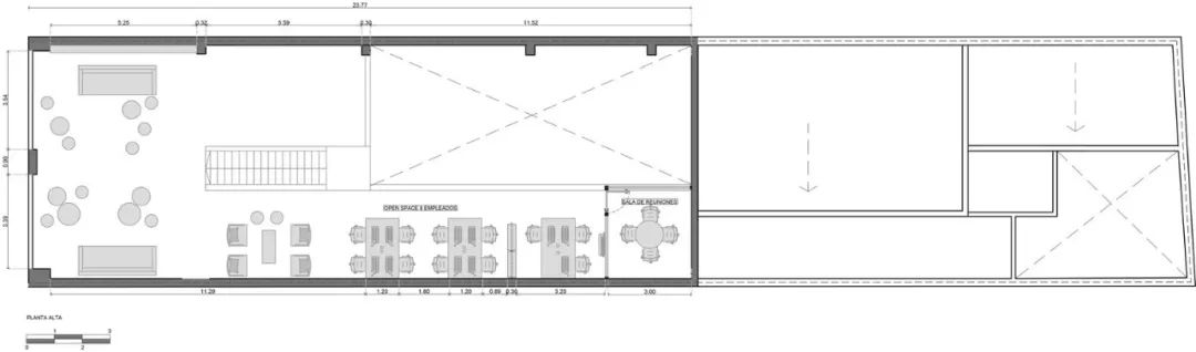
二层平面图
The challenge focused on the public part, generating special interest in the user who passes through the area so that they can draw their attention to enjoy specialty coffee and, in turn, understand that it has a showroom where everything that is seen, it’s purchasable. With these concepts, it was thought of a series of shelves that will arm the space and guide people, establishing different hierarchies according to the type of purchases to be made.
使用了工业化、经济化和多用途的材料,如金属管和 sima 网格,颜色也被用作一个伟大的盟友,以突出黄色瓷砖的品牌,另一方面,陶土地板和植被暗示咖啡植物。
Industrial, economical, and versatile materials were used, such as metal tubes and sima mesh, and color was also used as a great ally to highlight the brand with yellow tiles. On the other hand, the terracotta floor and vegetation allude to the coffee plant.
勾手设计网|2022 年业务布局
A)服务内容:
01-乡村
文旅顾问服务(项目策划顾问+规划设计指导+招商运营指导)
02-民宿自建(设计+施工+运营推广)
03-梦茹餐饮设计工作室(餐饮加盟连锁商业赋能)
04-工业钢构厂房自建(工业地产开发商)
团队揸 FIT 人介绍
B)卖|01-蔚来主题花园商业模式及配套移动房产品:
我从现有的蔚来花园、常州项目、桔子小镇、大新文创园、高明商业街项目、正在上马的屋面商业项目中,提出城市商业(商):蔚来房屋、乡村文旅(旅):景墅建筑 IP、新农村住宿(宿):微住宅三种分类作为我们农村地产的核心产品类目,在后面的文章中,我会慢慢地用这 3 个分类来介绍产品,请大家留意了!
往期专辑 Past Topics Click 了解更多,点击以下专辑▽
01-集装项目 专辑
02-梦茹制造
服务咨询联系人↓↓↓
关于我们
→→
勾勾手|中国,是为解决设计者及中小型工作室、设计公司、民宿宿主及项目投资者等对设计、建材、灯具、家具、民宿、施工等产品的落地公司,一站式问题的解决者。集策划设计、产品开发、品牌运营、施工等的综合体。。
客服
消息
收藏
下载
最近
































