查看完整案例


收藏

下载
“勾勾手设计网”
!
刘老师说
Liu said
在康斯坦提亚的一个大型家庭住宅的现有环境中增加一个体育馆。建筑师已经参与了总体规划和该庄园的各种建筑,其目的是减少新结构对已建成的花园的影响,通知决定在旧客房和存储区的现有混凝土板屋顶上建造健身馆。
The project brief called for the addition of a gymnasium pavilion to the existing context of a large family estate in Constantia. The architects have been involved in the master planning and various buildings on the estate, and the aim was to reduce the impact of a new structure on the well-established gardens, informing the decision to construct the gym pavilion onto the existing concrete slab roof of an older guest cottage and storage area.
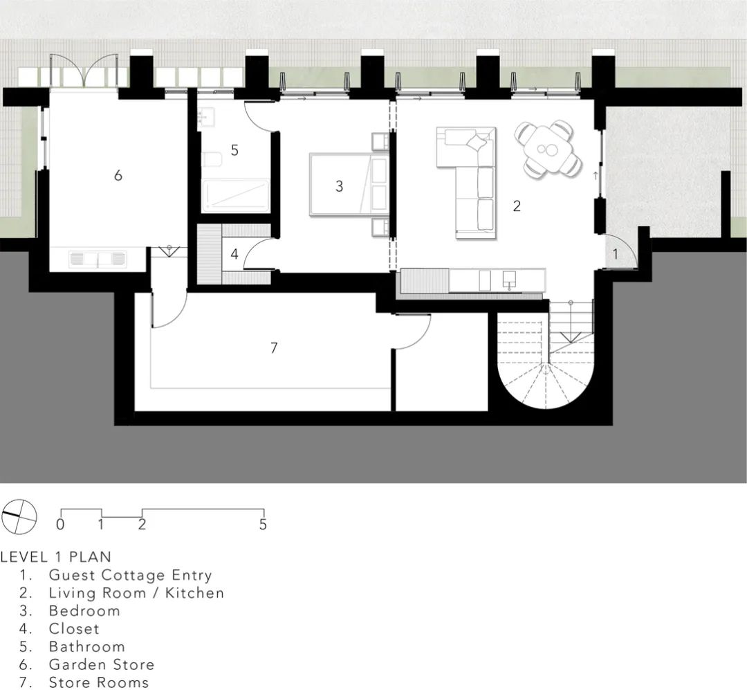
原首屋平面图
屋面加建部分平面面图
庄园内选择的位置呈现出令人兴奋的前景: 周围成熟的树木提供了庇护,坐落在现有挡土墙的边缘,提供了一种动态平衡感。场地位于花园的主要上层草坪和其下方的停车场之间,将允许建筑与各种不同的视角接触,并连接到周围不同的梯田水平面。这个位置也意味着健身房可以通过内部楼梯与下面的客房相连。客房收到了新的开放式布局、装饰和家具的更新。
The chosen position within the estate presented exciting prospects: surrounding mature trees offered shelter and sitting perched on the edge of an existing retaining wall provided a sense of dynamic balance. The site, being between the main upper lawn of the garden and the parking werf below it, would allow the building to engage with a wide range of different view aspects as well as connect to the difference terraced levels surrounding it. The position also meant the gymnasium could be linked to the guest suite below it by means of an internal staircase. The guest suite received an update with new open-plan layout, finishes and furnishings.
由于大部分组件可在工地以外制造,因此我们采用钢筋及土木结构建筑方法,以尽量减低混凝土及其他湿式工程的影响,从而减低建造过程对环境的影响。建筑师为同一个客户设计和建造了一个类似树屋的结构,该结构位于离新体育馆不远的高地上。树屋是材料选择、施工方法和细部设计的灵感来源。
Steel and timber construction methods were employed to minimize the impact of concrete and other wet works, as most of the components could be manufactured off site, reducing the environmental impact of the construction process. The architects have been involved in the design and construction of a tree house-like structure for the same client, which is on higher ground not far from the newer gymnasium pavilion. The tree house has served as the inspiration for the selection of materials, construction methodology and detailing.
勾手设计网|2022年业务布局
A)服务内容:
01-乡村
文旅顾问服务
(项目
策划
顾问
+规划
设计
指导
+招商
运营指导
)
02-民宿自建(设计+施工+运营推广)
03-梦茹餐饮设计工作室(餐饮加盟连锁商业赋能)
04-工业钢构厂房自建(工业地产开发商)
团队揸FIT人介绍
B)卖|01-蔚来主题花园商业模式及配套移动房产品:
02-宿鸟农村合件:
往期专辑
Past Topics Click
了解更多,点击以下专辑
▽
01-集装项目
专辑
02-梦茹制造
服务咨询联系人↓↓↓
关于我们
→→
勾勾手|中国
,是为解决设计者及中小型工作室、设计公司、民宿宿主及项目投资者等对设计、建材、灯具、家具、民宿、施工等产品的落地公司,一站式问题的解决者。集策划设计、产品开发、品牌运营、施工等的综合体。。
END
客服
消息
收藏
下载
最近




































