查看完整案例


收藏

下载
你好!我是勾勾手设计网,是你为懂得我们的客户提供贴心服务!好设计+好产品≥好生活保证!
“勾勾手设计网”可见即可造,所见便可买!梦茹说 Meng Ru said 在 5 天内组装了一个现代树屋,树屋建在类似树枝的高跷之上,外墙装上了冷杉及镜面面板反射周围环境。
A modern treehouse was assembled in five days, built on stilts that resemble branches, with exterior walls of fir and mirrored panels to reflect the surroundings.
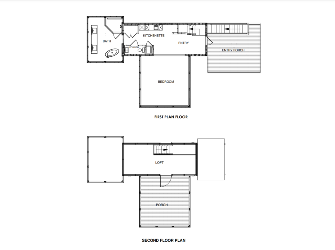
平面布置图
树屋能够给人一种特别的感觉,同时也要让它在色彩和材料上与他们的主要住宅保持联系,因为它们离得很近,最终感觉就像一个有凝聚力的住宅。
The treehouse can give a special feeling, but also keep it in touch with their main house in color and material, as they are so close together that they end up feeling like a cohesive home.
高跷使建筑物看起来漂浮在基地之上。
The stilts make the structure appear to float above the site.
树屋总共花了五天时间来建造,使用的工艺对工地的影响最小。“巨大的钢结构基础在两天内就建好了,而树屋结构本身也花了三天时间”
The treehouse took five days to build and the process used had the least impact on the site. “The huge steel foundation was built in two days, and the structure itself took three days.”
钢支撑也解决了一个主要的设计挑战,为树屋提供电力和管道。
The steel supports also solve a major design challenge by providing the tree house with electricity and plumbing.
勾手设计网|2021 年业务布局
A)卖|设计服务:
01-潘小君自建房(一站式精装入住的建筑开发商)
02-勾勾手文旅服务(项目策划+规划设计+招商运营)
03-梦茹餐饮设计工作室(餐饮加盟连锁商业赋能)
04-GGH(勾勾手)移动房设计机构(引领全球个性移动房产品体系设计)
团队揸 FIT 人介绍
B)卖|产品(厂家直销):
01-佛山家具
02-移动房、模块房等
03-佛山制造品牌小家电
01-民旅项目小产权房
02-网红餐饮小店
03-乡镇农场小产权
往期专辑 Past Topics Click 了解更多,点击以下专辑▽
01-集装项目 专辑
02-梦茹制造
服务咨询联系人↓↓↓
关于我们→→
▽▽END
客服
消息
收藏
下载
最近


























