查看完整案例


收藏

下载
你好!我是勾勾手设计网,是你为懂得我们的客户提供贴心服务!好设计+好产品≥好生活保证!
勾勾手设计网
可见即可造,所见便可买!
老关说 Lao Guan said
一个以学生为中心的住宅项目,它提出了一个将生活和学习结合在一起的社区建筑,遵循共享生活系统中的空间优化原则。这个综合体有四个层次,卧室和公共区域相辅相成。其余的项目包括两个学习室,一个休闲区,两个屋顶花园的休息区,两个完整的厨房,一个餐厅,一个健身房,和一个维修服务区。
Coliving Interlomas is a student-oriented residential project located to the western-outside Mexico City, which proposes an architecture that brings together life and studying in community, following space optimization principles in a shared living system. The complex features four levels in which the bedrooms and the common areas complement each other. The rest of the program is composed of two study rooms, a recreational area, two lounge areas in a roof garden, two integral kitchens, a dining room, a gym, and a service area for maintenance.
首屋建筑平面图
二层建筑平面图
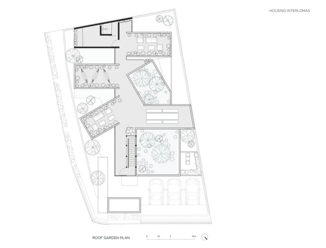
屋面建筑平面平面图
建筑形状来源于场地的体积实验,以及为十二名学生创建私人和公共区域的挑战。定义了三个隐私等级:卧室、内部公共空间,以及通向外部的公共区域。最初的一部分被肢解成四座塔楼,其中包括卧室。在这些塔楼之间有广阔的开放,共同使用的区域,培育了该项目充满活力的社区生活。共同生活 interlomas 拯救了建立公共空间的原则,并通过休闲、沉思和休息区将其带到一个微观尺度。这是一项共同生活活动,提出了有尊严和可持续的方面,这是对空间使用情况和日常物体进行广泛分析的结果,预测了未来和实现可居住性的新途径。该项目通过为每个空间留出室内广场,重新诠释了传统的庭院式住宅的二分法,从而赋予它们高贵的活力,因为每个空间都有自然采光、通风和植被。对于项目的材料,其中一个主要元素,使其独特的性质,以及热温暖和奇异性,是突出使用波纹混凝土。每一个波纹混凝土墙由于技术的不完善而彼此不同,这给了它一个独特的生活体验。固定的木制家具创造了一种视觉对比,并在塑造共享空间方面发挥了重要作用,在某些情况下作为分隔墙,在其他情况下作为有助于区分空间的元素,在过程中创造有趣的路径。
The architectural shape is born from a volumetric experimentation with the site, as well as the challenge to create private and public areas for twelve students. Three privacy levels were defined: the bedrooms, the internal common spaces, and the public areas that flow towards the outside. An initial volume was dismembered into four towers which contain the bedrooms. Between these towers there are wide open, common-use areas which foster the project’s vibrant community life. Coliving Interlomas rescues the principle of building public space and takes it to a micro scale through recreational, contemplative and rest areas. It is an exercise in co-living that proposes dignified and sustainable dimensions which are the result of an extensive analysis on space usage and day-to-day objects with a projection to the future and new ways of achieving habitability. The project reinterprets the traditional dichotomy of the courtyard house by leaving interior squares for each of the spaces, thus giving them dignified vitality, since every one of them has natural lighting, ventilation, and vegetation. Regarding the project’s materiality, one of the main elements that gives it its unique character, as well as thermal warmth and singularity, is the prominent use of corrugated concrete. Every corrugated concrete wall is different from each other due to the imperfection of the technique, which gives it a unique living experience. The fixed wooden furniture creates a visual contrast and has an important role in shaping the shared spaces, in some cases functioning as dividing walls, and in others as elements that help differentiate spaces between them, creating interesting paths in the process.
勾手设计网|2021 年业务布局
A)卖|设计服务:
01-潘小君自建房(一站式精装入住的建筑开发商)
02-勾勾手文旅服务(项目策划+规划设计+招商运营)
03-梦茹餐饮设计工作室(餐饮加盟连锁商业赋能)
04-GGH(勾勾手)移动房设计机构(引领全球个性移动房产品体系设计)
团队揸 FIT 人介绍
B)卖|产品(厂家直销):
01-佛山家具
02-移动房、模块房等
03-佛山制造品牌小家电
01-民旅项目小产权房
02-网红餐饮小店
03-乡镇农场小产权
往期专辑
Past TopicsClick
了解更多,点击以下专辑
▽
01-集装项目 专辑
02-梦茹制造
服务咨询联系人↓↓↓
关于我们
→→
▽▽
客服
消息
收藏
下载
最近


































