查看完整案例


收藏

下载
你好!我是勾勾手设计网,是你!为懂得我们的客户提供贴心服务!好设计+好产品≥好生活保证!
“勾勾手设计网”可见即可造,所见便可买!老 刘 说:在我们这个环境问题日益严重,建筑成本不断上升的世界里,小型住宅是一个更明智的选择。只有 42 和 50 平方米的面积的鸟舍工作室适合所有的要求,生活在一个可持续的,舒适的,创造性的存在,一个非常小的足迹。
smaller homes are a much wiser choice. At just 42 and 50 square meters of floor area Birdhouse studios fit all that is required to live a sustainable, comfortable, and creative existence within a very small footprint.
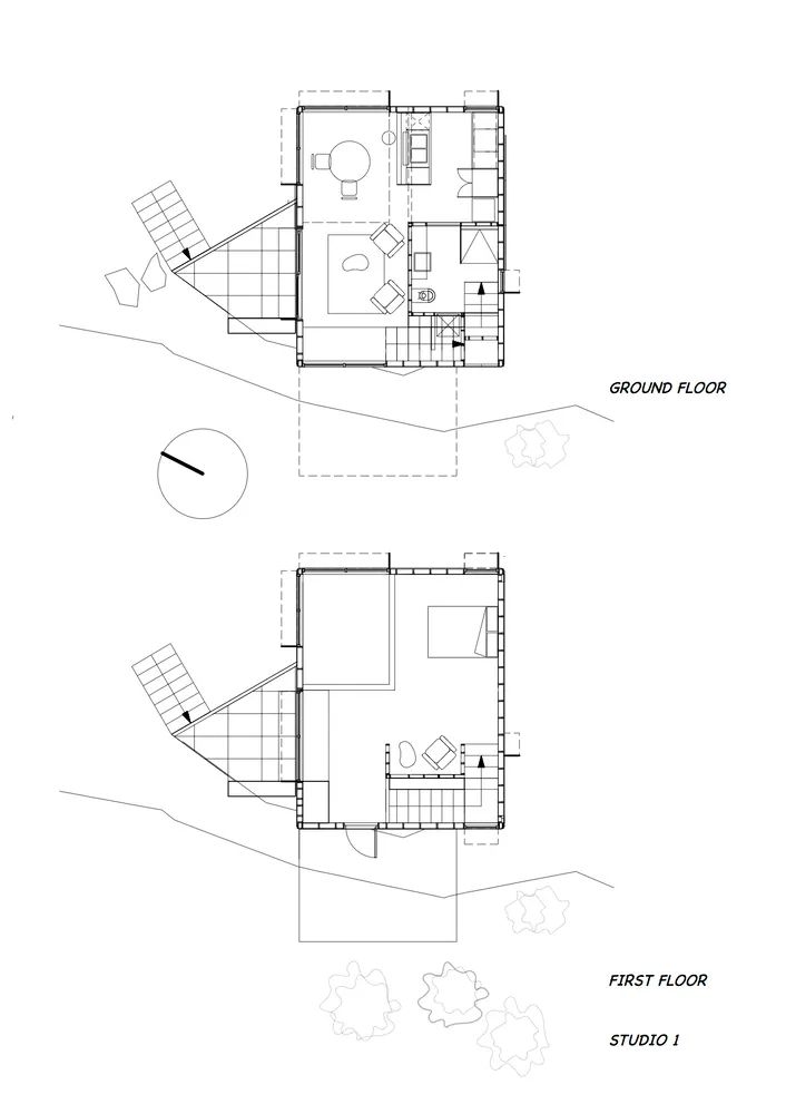
首屋平面图
平面布置图
工作室坐落在塔斯马尼亚朗塞斯顿陡峭的山脊上,可以看到城市东部和远处的山脉。每个工作室都是一个独特的设计,直接响应其网站的参数。设计限制包括有限的场地通道,30 度的岩石斜坡,以及现有的受保护的干燥硬叶桉树植被。
Located on a steeply sloping ridgeline site in Launceston Tasmania, the studios have expansive views to the East over the city and to the mountains beyond. Each studio is a unique design that directly responds to the parameters of its site. Design constraints included limited site access, a 30-degree rocky slope, and the existing protected dry sclerophyll eucalyptus vegetation.
场地的挑战不是消极的,而是激发独特性的机会。景观覆盖层和丛林火灾脆弱性促使建筑师选择耐候钢覆层,这在某种程度上抽象地反映了附近树木树皮的纹理。包层丰富的深色古铜色让建筑在视觉上消失在景观中。
Site challenges were not perceived as negatives, but as opportunities to inspire uniqueness. Scenic overlays and bush fire vulnerability motivated the choice of Cor-ten steel cladding which is detailed in a way to abstractly reflect the texture of the bark on nearby trees. The rich dark-colored patina of the cladding allows the buildings to visually disappear into their landscape.
勾手设计网|2021 年业务布局
A)卖|设计服务:
01-潘小君自建房(一站式精装入住的建筑开发商)
02-勾勾手文旅服务(项目策划+规划设计+招商运营)
03-梦茹餐饮设计工作室(餐饮加盟连锁商业赋能)
04-GGH(勾勾手)移动房设计机构(引领全球个性移动房产品体系设计)
团队揸 FIT 人介绍
B)卖|产品(厂家直销):
01-佛山家具
02-移动房、模块房等
03-佛山制造品牌小家电
01-民旅项目小产权房
02-网红餐饮小店
03-乡镇农场小产权
往期专辑 Past TopicsClick 了解更多,点击以下专辑▽
01-集装项目
专辑
02-梦茹制造
服务咨询联系人↓↓↓
关于我们→→
▽▽END
客服
消息
收藏
下载
最近










































