查看完整案例


收藏

下载
你好!我是勾勾手设计网,是你
!为懂得我们的客户提供贴心服务!好设计+好产品≥好生活
保证
!
老 刘 说
Old Liu said
前面是壮丽的海景,后面是雄伟的山脉,这是迄今为止,冰岛北部建筑中最美丽的地方。海夫纳夫杰尔山是一座熄灭的火山的一部分,四百万年前的火山被难以置信的野生动物和鸟类包围着。它也是冰岛风力最强的地方之一,有时风速可以超过每秒70米。
With breathtaking ocean views in the front and majestic mountain range at the back, this is the most scenic Icelandic location any Manta North building has been delivered so far. The mountain Hafnarfjall is part of an extinguished, 4 million years old volcano surrounded by incredible wildlife and birds. It is also one of the windiest places in Iceland, and sometimes the wind can be stronger than 70m/per second.
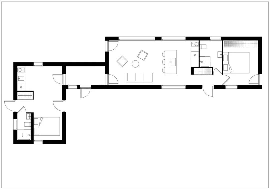
平面布置图
Floor Plan
02-现场实景
房主决定建造一个完全完工的工厂房屋,而不是现场建造一个,避免了在无休止的施工过程中生活的头痛和对周围生态系统的可能损害。预制和建造由生态友好,可再生,绿色材料,如 clt-(交叉层压木材)蝠鲼北房子是一个完美的匹配。
House owners decided to have a fully finished and factory-built house instead of building one on-site, avoiding the headache of living through the endless construction process and possible damage to the surrounding ecosystem. Pre-fabricated and built from eco-friendly, renewable, and green materials like CLT - (Cross Laminated Timber) Manta North houses were a perfect match.
Manta north 的概念是基于,一个设计精良,功能齐全,永恒的预制板房的理念。节能、环境友善、智能技术只需点击几下鼠标,你就可以在网上订购一所房子。
Manta North's concept is based on the idea of a well-designed, functional, timeless prefabricated house. Energy-efficient, environmentally friendly, and equipped with intelligent technologies a house can be ordered online in just a few clicks.
B)卖|产品(厂家直销):
01-佛山家具
02-移动房、模块房等
03-佛山制造品牌小家电
01-民旅项目小产权房
02-网红餐饮小店
03-乡镇农场小产权
往期专辑
Past Topics Click
了解更多,点击以下专辑
▽
01-集装项目
专辑
02-梦茹制造
服务咨询联系人↓↓↓
关于我们
→→
▽
▽
END
客服
消息
收藏
下载
最近
































