查看完整案例


收藏

下载
你好!我是勾勾手设计网,是你
!为懂得我们的客户提供贴心服务!好设计+好产品≥好生活
保证
!
老 刘 说
Old Liu said
哥斯达黎加树屋的灵感来自于哥斯达黎加太平洋海岸森林茂密的丛林。建筑完全由当地采集的柚木建造,这个度假村在三个层次上都与丛林融为一体: 在森林地面,中间的层次隐藏在树木之中,顶层高于树冠,在附近的 playa hermosa 海滩可以看到海浪。
Costa Rica Treehouse is inspired by the jungle of this densely forested site on the Pacific Coast of Costa Rica. Built entirely of teak wood harvested on-site, the retreat engages with the jungle at each of its three levels: at the forest floor, the middle floor is nestled within the trees, and the top level rises above the tree canopy with views of the surf at nearby Playa Hermosa beach.
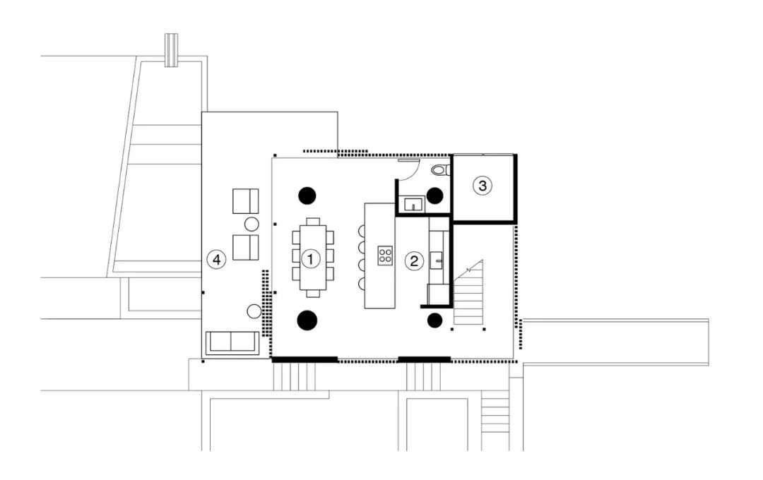
首层平面图
二层平面图
三层平面图
该项目以各种方式融入哥斯达黎加的景观,从主楼外的植被,到更大的天气和冲浪模式,人们可以在顶层体验。
from the vegetation accessible just off the main floor, to the larger weather and surf patterns one can experience on the top level.
这个房子在这个温带半热带的环境中,呼吸和保持开放的状态。顶层和底层完全对外开放,双层屏风,可操作的木百叶窗系统,允许日光和自然通风,当业主不在的时候,还有隐私和安全。遮阳,3.5千瓦的光伏阵列,以及雨水收集系统,使房屋的紧凑面积在地面上更轻。
the home is intended to breathe and remain open to the elements in this temperate semi-tropic environment. The top and bottom floors are completely open to the elements with a double-screen operable wood shutter system, allowing daylight and natural ventilation, but also privacy and security when the owners are away. Shading, a 3.5-kW photovoltaic array, and a rainwater collection system make the house’s compact footprint even lighter on the land.
B)卖|产品(厂家直销):
01-佛山家具
02-移动房、模块房等
03-佛山制造品牌小家电
01-民旅项目小产权房
02-网红餐饮小店
03-乡镇农场小产权
往期专辑
Past Topics Click
了解更多,点击以下专辑
▽
01-集装项目
专辑
02-梦茹制造
服务咨询联系人↓↓↓
关于我们
→→
▽
▽
END
客服
消息
收藏
下载
最近





























