查看完整案例


收藏

下载
你好!我是勾勾手设计网,是你
!为懂得我们的客户提供贴心服务!好设计+好产品≥好生活
保证
!
老 刘 说
Old Liu said
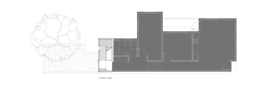
找到扩建房屋和陶瓷作坊的方法,是这个委员会的目标。该项目通过在原有住宅的露台上设计一个楼梯和三十平方米的体量进行了重组。
Finding a way to expand a house and a ceramic workshop was the objective of this commission. The program was reorganized by projecting a staircase and a volume of thirty square meters on a terrace of the existing house.
平面布置图
在外面,白色的体量是一个由正弦金属片组成的连续的信封,除了三个开口: 一个是浴室的小窗户和两个缝,一个垂直于楼梯平台,另一个水平于工作台上。这些小开口的朝向允许全天的自然光线进入,从房子内部可以看到附近的树木。
On the outside, the white volume is a continuous envelope of sinusoidal metal sheet with the exception of three openings: a small window for the bathroom and two slits, one vertical on the landing of the staircase and the other horizontal, on the workbench of the workshop. The orientation of these small openings allows the entry of natural light throughout the day and the possibility of views of the nearby trees from the interior of the house.
我们尝试尽量减少石工和湿工。仅仅是为了平整旧的平台,并且为钢筋混凝土的建设提供一个原位平面图。其余的结构是轻质和干燥的安装在适当的地方。
An attempt was made to minimize the masonry and wet work. Only to level the old terrace and to generate in situ a plan for the constructions of reinforced concrete. The rest of the construction is lightweight and dry mounted in place.
勾勾手设计网|2021年业务布局
A)卖|设计服务:
01-
潘小君自建房(一站式精装入住的建筑开发商)
02-
勾勾手文旅服务
(项目
策划+规划
设计+招商
运营
)
03-梦茹餐饮设计工作室(餐饮加盟连锁商业赋能)
04-
GGH(勾勾手)移动房设计机构(引领全球个性移动房产品体系设计)
团队揸FIT人介绍
B)卖|产品(厂家直销):
01-佛山家具
02-移动房、模块房等
03-佛山制造品牌小家电
01-民旅项目小产权房
02-网红餐饮小店
03-乡镇农场小产权
往期专辑
Past Topics Click
了解更多,点击以下专辑
▽
01-集装项目
专辑
02-梦茹制造
服务咨询联系人↓↓↓
关于我们
→→
▽
▽
END
客服
消息
收藏
下载
最近






























