查看完整案例


收藏

下载
你好!我是勾勾手设计网,是你
!为懂得我们的客户提供贴心服务!好设计+好产品≥好生活
保证
!
老 刘 说
Old Liu said
房子位于福岛相马市。南相马以“ soma nomaoi”野马追逐节而闻名,这是福岛最大的节日之一ーー或许最好的称呼是“临时疏散指定区”。在福岛核灾难之后,许多人搬出了城市,仍然远离城市。这个地区有大量的空房子。分别向我们提出装修要求的业主和他的妻子也别无选择,只能暂时撤离。放松管制后,他们选择回到他们居住了几十年的城市,我们被要求重新装修他们珍爱的房子。
The premises are located in Soma City, Fukushima. Minamisoma is known for “Soma Nomaoi” wild horse chase festival, one of the biggest festivals Fukushima has to offer—or perhaps best recognized as the “temporary evacuation designated zone”. After the Fukushima nuclear disaster, many moved out of the city and still keep themselves away from the city. There are great quantities of empty houses in the area. The owner and his wife who have separately asked us for a renovation also had no choice but to evacuate temporarily. After deregulation, they chose to go back to the city they had been living in for decades, and we were asked to renovate their cherished home.
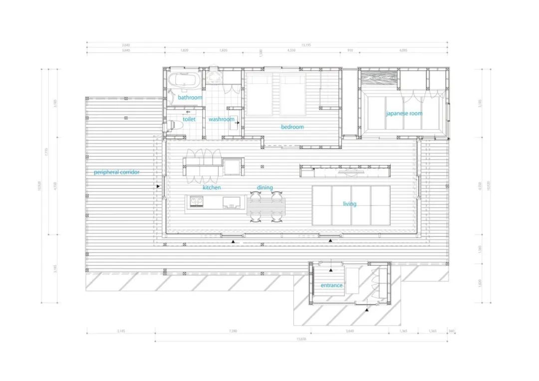
这栋有36年历史的单层住宅,原本有7个房间,每个15平方米宽,宽敞的厨房,两个浴室,对70多岁的夫妇来说太大了。尽管考虑到继承后的管理,收缩房子似乎是最好的主意,但我们决定保留坚固的瓦屋顶,这个屋顶保留了2011年日本东北地方太平洋近海地震,并充分利用了它。
This 36-year-old, one-storied house originally had 7 rooms, each 15 ㎡ wide, extensive kitchen, and two bathrooms, and was too big for a married couple in their 70s. While contraction of the house seemed to be the best idea considering its management after inheritance, we decided to retain the strong tiled roof which survived the 2011 Tohoku earthquake and make full use of it.
老板一直在有尊严地接管这个地区的传统活动,比如在 soma nomaoi 野马追逐节上,他扮演了队长的角色,总是有游客来来往往。坐在阳台上,和来访者交谈,这是他们的日常生活。露台是一个完美的空间,欢迎人们,没有压力或需要的游客脱下他们的鞋子,它允许他们来来去去,只要他们想。
The owner has been taking over the area’s traditional events with dignity, taking the role of the captain in Soma Nomaoi wild horse chase festival for example, and he always had visitors coming and going. Sitting on the terrace, talking to visitors—this was their daily routine. The terrace is a perfect space for welcoming people; there is no stress or need for the visitors to take off their shoes and it allows them to come and go whenever they want.
南相马几乎没有什么雪,因此,在露台边喝茶和抽烟的闲聊,成了整个季节,每天的事情。我们希望保留这个平常但珍贵的景观,以及瓦片屋顶,为那些回来的人们创造城市的中心,在那里人们可以互相了解和支持。我们决定建造这样一个房子,我们决定尽量减少生活空间,同时保持屋顶结构不变,并将大部分剩余区域翻新成一个露台。
There is hardly any snow in Minamisoma and thus, small talk sessions with tea and tobacco by the terrace were an all-season, everyday thing. We wanted to preserve this usual but precious sight along with the tiled roof, and create the heart of the city for those coming back where people can get to know and support each other. Determined to build such a house, we decided to minimize the living space while keeping the roof structure as it is and renovate most of the remaining area into a terrace.
在 soma nomaoi 野马追逐节的时候,大约20个人轮流聚集在这个房子周围。我们建造了主入口用于脱鞋和存放鞋子,但是结构化的房子允许游客从阳台的任何一边进入,这样他们就不需要穿过入口。我们可以想象节日结束后,这个地区的人们聚集在露台上,像在自己家里一样,互相感谢,享受他们的时光。我们真诚地希望这样的景象能永存。
At the time of the Soma Nomaoi wild horse chase festival, about 20 people take turns to gather around this house. We have built the main entrance for taking off and storing shoes but structured the house to allow visitors in from any side of the terrace so that they would not need to go through the entrance. We can imagine people of the area gathering around the terrace after the festival, making themselves at home, thanking each other and enjoying their time. We sincerely hope that such sight will last forevermore.
勾勾手设计网|2021年业务布局
A)卖|设计服务:
01-
潘小君自建房(一站式精装入住的建筑开发商)
02-
勾勾手文旅服务
(项目
策划+规划
设计+招商
运营
)
03-梦茹餐饮设计工作室(餐饮加盟连锁商业赋能)
04-
GGH(勾勾手)移动房设计机构(引领全球个性移动房产品体系设计)
团队揸FIT人介绍
B)卖|产品(厂家直销):
01-佛山家具
02-移动房、模块房等
03-佛山制造品牌小家电
01-民旅项目小产权房
02-网红餐饮小店
03-乡镇农场小产权
往期专辑
Past Topics Click
了解更多,点击以下专辑
▽
01-集装项目
专辑
02-梦茹制造
服务咨询联系人↓↓↓
关于我们
→→
▽
▽
END
客服
消息
收藏
下载
最近
































