查看完整案例


收藏

下载
你好!我是勾勾手设计网,是你
!为懂得我们的客户提供贴心服务!好设计+好产品≥好生活
保证
!
老 刘 说
Old Liu said
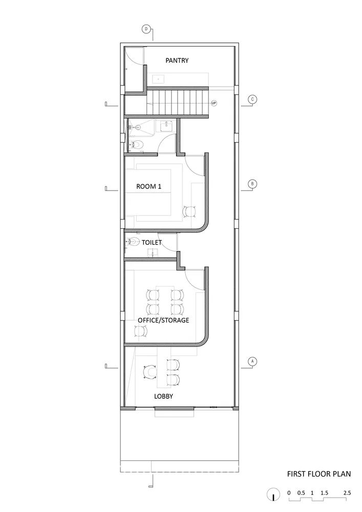
Qub rooms 是一家拥有10间客房的酒店,位于印度尼西亚三宝垄市中心密集的商业区。曾经是一个普通的三层楼的商店,建筑被改造成一个工业时尚的结构,独特的立面由多个大小的开口组成,外面覆盖着黑钢,在90年代的白色瓷砖和蓝色玻璃立面之间创造了一个意想不到的景观。在城市结构中,不同大小的门面上连接的 qub (ic)形状的开口,意在模糊对立面背后真实地板水平的视觉理解,从而提高建筑的规模。
Qub Rooms is a 10-room hotel located in a dense commercial strip in the center of Semarang, Indonesia. Once a mundane 3-story shophouse, the building was transformed into an industrial yet chic structure with a unique facade made out of multiple sized openings, cladded with black steel, creating an unexpected sight among the 90's white ceramic tiles and blue glass facades. Fitting within the urban fabric of the city, the qub(ic) shaped openings articulated across the facade in varied sizes are meant to blur the visual understanding of the real floor levels behind the facade thus heightening the scale of the building.
现有的结构被尽可能地再利用,以便可持续地再利用建筑,同时使其适应新的功能。旧的石膏板天花板,墙壁,和现有的楼梯都被从建筑中剥离,以最大限度地提高酒店的可用空间。酒店的室内设计是一个单调的新元素的游戏,例如房间的白色外墙和粗糙的黑砖墙作为每个酒店房间的背景。它们与裸露的混凝土天花板并列,天花板上装饰着穿过酒店房间和走廊的电线网络。
The existing structures were reutilized as much as possible to sustainably reuse the building while adapting it to a new function. The old drywall ceilings, walls, and existing staircases were all stripped off from the building to maximize the usable space for the hotel. The interior design of the hotel is a play of monotone new elements such as curved white exterior walls of the rooms and rough black brick walls as the backdrop of each hotel room. They are juxtaposed with the rawness of exposed concrete ceiling deck that is adorned with a network of electrical conduits playfully running across the rooms and corridors of the hotel.
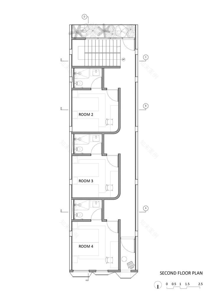
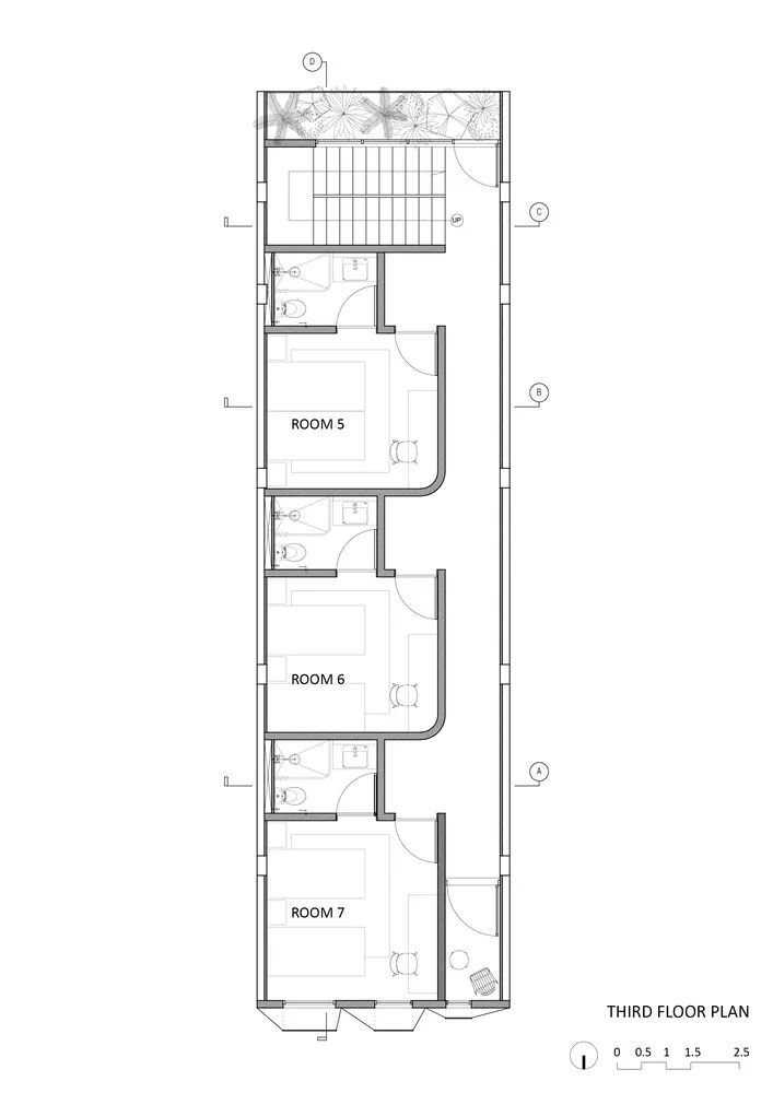
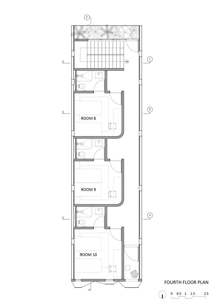
酒吧大堂、酒店客房和走廊的设计中加入了光滑的线条,营造出酒店的精致和复杂感。楼梯完全由穿孔钢板制成,这样空气就可以通过空间。上下楼梯的运动可以通过其透明度看到,进一步使公共空间更加活跃和动态。酒店的走廊也可以呼吸,这是通过酒店前后的百叶窗实现的,从而允许整个建筑的对流通风。
Sleek lines of steel bar lighting were added in the design of the lobby, the hotel rooms, and the corridor to create a sense of finesse and sophistication of the hotel. The stairs were fully made out of perforated steel plates so it allows air to go through the void. Movement up and down the stairs can be seen through its transparency which further makes the public space more active and dynamic. The corridors of the hotel are also allowed to breathe, which is made possible by the use of louver windows at the front and back of the hotel thus allowing cross ventilation throughout the building.
在酒店后面的百叶窗后面,种植了热带绿化植物,以减少空气和噪音污染的影响,同时减少热量的获得,同时为酒店创造新鲜空气。Qub rooms 挑战了三宝垄许多角落常见的三层楼房的类型学。在典型的宽度和高度限制下,功能的转变能够利用特定的材料和建筑形式形成一个更有趣的商业立面的连接,同时丰富城市体验。
Behind the louver windows at the back, lust tropical greeneries are planted to reduce the effect of air and noise pollution in the city as well as to reduce heat gain while creating fresh air into the hotel. Qub Rooms challenges the typology of common 3-story shophouses that are found in many corners in the city of Semarang. Within the typical width and height constraint, a transformation of function is able to form a much more interesting articulation of commercial facade utilizing specific material and architectural form while enriching the urban experience.
勾勾手设计网|2021年业务布局
A)卖|设计服务:
01-
潘小君自建房(一站式精装入住的建筑开发商)
02-
勾勾手文旅服务
(项目
策划+规划
设计+招商
运营
)
03-梦茹餐饮设计工作室(餐饮加盟连锁商业赋能)
04-
GGH(勾勾手)移动房设计机构(引领全球个性移动房产品体系设计)
团队揸FIT人介绍
B)卖|产品(厂家直销):
01-佛山家具
02-移动房、模块房等
03-佛山制造品牌小家电
01-民旅项目小产权房
02-网红餐饮小店
03-乡镇农场小产权
往期专辑
Past Topics Click
了解更多,点击以下专辑
▽
01-集装项目
专辑
02-梦茹制造
服务咨询联系人↓↓↓
关于我们
→→
▽
▽
END
客服
消息
收藏
下载
最近














































