查看完整案例


收藏

下载
你好!我是勾勾手设计网,是你
!为懂得我们的客户提供贴心服务!好设计+好产品≥好生活
保证
!
老 刘 说
Old Liu said
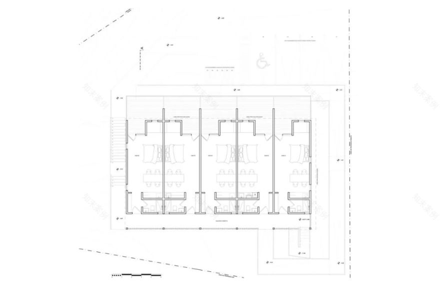
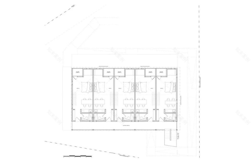
Anoka 来自 yaghan 语,意思是月亮,是一个独立的酒店,位于智利拉各斯地区 frutillar bajo 的“典型区域”。它位于市区和山坡之间。
Anoka, from the Yaghan language, meaning moon, is an Apart Hotel located at the “Typical area” of Frutillar Bajo, Lagos Region, Chile. It’s situated in between the urban area and the part of the hillside.
位于兰基韦湖前的「典型地区」弗鲁提拉拥有属性,以其丰富的历史建筑遗产,推广保育传统建筑。一些建筑类型是可以恢复的,包括形状,高度,装饰,层次,和特征元素,如同质材料,分离的房屋,和前院。
Located in front of Llanquihue Lake, the “Typical area” of Frutillar is characterized by its heritage architectural richness, promoting the conservation of the traditional buildings. Some building typologies are recovered which involve shapes, heights, ornamentations, levels, and characteristic elements, such as the homogeneity of materials, separated housing, and front yards.
阿诺卡位于一个不规则的三角形状的土地与一个轻微的斜坡,界定了一个高原上的建设位置。它重新诠释了“带凸窗的简单”传统类型,具有规则的形态,带阳台和小隔间的简单屋顶。
Anoka is located at an irregular-triangular shape land with a slight slope that defines a plateau over which it’s located the construction. It reinterprets the “Simple with bay window” Heritage Typology, with a regular morphology, simple roof with balconies and small bays.
果实的特性的一个重要部分是它们的建筑物与自然环境(湖泊和火山)的紧密联系。因此,干预的标准之一就是通过倒金字塔一样的柱子将建筑提升到基地的上方,提供更多的高度,使旅馆的所有房间都能看到 llanquihue 湖和 osorno 火山。
An important part of Frutillar’s identity is the strong relation of their buildings with the natural surroundings (Lake and Volcanoes). Thus, one of the criteria for the intervention was to raise the building over the plot through the pillars like inverted pyramids, providing more altitude so that all the rooms of the hostelry have a view to the Llanquihue Lake and Osorno Volcano.
勾勾手设计网|2021年业务布局
A)卖|设计服务:
01-
潘小君自建房(一站式精装入住的建筑开发商)
02-
勾勾手文旅服务
(项目
策划+规划
设计+招商
运营
)
03-梦茹餐饮设计工作室(餐饮加盟连锁商业赋能)
04-
GGH(勾勾手)移动房设计机构(引领全球个性移动房产品体系设计)
团队揸FIT人介绍
B)卖|产品(厂家直销):
01-佛山家具
02-移动房、模块房等
03-佛山制造品牌小家电
01-民旅项目小产权房
02-网红餐饮小店
03-乡镇农场小产权
往期专辑
Past Topics Click
了解更多,点击以下专辑
▽
01-集装项目
专辑
02-梦茹制造
服务咨询联系人↓↓↓
关于我们
→→
▽
▽
END
客服
消息
收藏
下载
最近












































