查看完整案例


收藏

下载
你好!我是勾勾手设计网,是你
!为懂得我们的客户提供贴心服务!好设计+好产品≥好生活
保证
!
梦 茹 说
Meng Ru said
经过对这座中银胶囊塔未来状态的不确定性,黑川纪章建筑事务所(kisho kurokawa architects)和城市设计办公室千代田-ku (chiyoda-ku)决定拆除这座标志性建筑,并将其胶囊改造成全球的住宿单元和博物馆设施。再生计划遵循“新陈代谢”的初始概念,重新配置元素,而不是完全拆除。
After ongoing uncertainties about the future state of the The Nakagin Capsule Tower Building, Kisho Kurokawa Architects and Urban Design Office Chiyoda-ku, have decided to dismantle the iconic architecture and regenerate its capsules as accommodation units and museum installations across the world. The regeneration plan follows the initial concept of "Metabolism", re-configurating the elements instead of complete demolition.
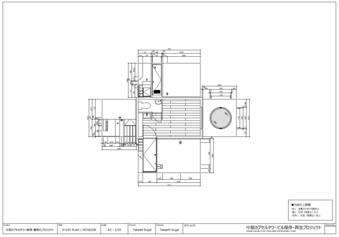
平面布置图
Floor Plan
所有的胶囊都会通过众筹,翻新成最初的样子。其中一些胶囊将被移走并捐赠给博物馆,而其余的将被“重复使用”作为住宿设施。在多次要求将胶囊转移到海外的博物馆,如巴黎的蓬皮杜中心之后,建筑师决定将胶囊展示在世界各地的博物馆,让更多的人能够体验它独特的设计。现代艺术博物馆里展出了一个房间胶囊模型,由黑川纪章设计。
All of the capsules will be refurbished to their initial form through crowdfunding. Some of the capsules will be removed and donated to museums, while the rest will be "reused" as accommodation facilities. After many requests of transferring the capsules overseas to museums such as the Pompidou Center in Paris, the architects decided to display the capsules in museums across the world so many people can experience its unique design. A model room capsule is currently on display at the Museum of Modern Art Saitama, designed by Kisho Kurokawa.
自2018年以来,这些建筑一直作为“每月胶囊”设施运行,允许人们作为试验性住宿在大楼里住一个月。在将近两年半的时间里,这种胶囊已经被200多人使用,并得到了积极的反馈,这说服了建筑师团队开发全国性的“住宿胶囊”。
Since 2018, the buildings has been operating as a "Monthly Capsules" facility, allowing people to stay at the tower as trial accommodation for one month. In almost two and a half years, the capsules have been used by over 200 people with positive feedbacks, which persuaded the team of architects to develop nationwide "accommodation capsules".
建于1972年 nakagin 塔是第一个胶囊建筑项目,设计的目标是一个适应性强的动态建筑,模块可以插入中央核心,更换或交换。胶囊的设计是为了容纳在东京市中心工作的商务人员,因此,每个4x2.5米的单元包含了可容纳一个人的必要设施。所有的特点和固定装置都是工厂制造和预装配的。
Built in 1972, the Nakagin Tower was the first capsule architecture project, designed around the vision of an adaptable and dynamic architecture, where modules can be plugged into the central core, replaced, or exchanged. The capsules were designed to house traveling business people that worked in central Tokyo; therefore, each unit measuring 4x2.5 meters contains the necessary amenities to accommodate one person. All features and fixtures were factory-manufactured and pre-assembled.
勾勾手设计网|业务布局
A)卖|设计服务:
01-勾勾手文旅规划设计(专业规划策划设计运营团队)
02-潘小君自建房(提供一站式入住的建筑团队)
03-梦茹餐饮设计工作室(餐饮加盟连锁商业赋能)
04-
GGH移动房设计机构(引领全球个性移动房产品体系设计)
团队揸FIT人介绍
B)卖|产品(厂家直销):
01-佛山家具
02-移动房、模块房等
03-佛山制造品牌小家电
01-民旅项目小产权房
02-网红餐饮小店
03-乡镇农场小产权
往期专辑
Past Topics Click
了解更多,点击以下专辑
▽
01-集装项目
专辑
02-梦茹制造
服务咨询联系人↓↓↓
关于我们
→→
▽
▽
END
客服
消息
收藏
下载
最近
























