查看完整案例


收藏

下载
你好!我是勾勾手设计网,是你
!为懂得我们的客户提供贴心服务!好设计+好产品≥好生活
保证
!
老 刘 说
Liu said
1900年前后的卡尔弗登,利用了斯图亚特山的高度和面貌。它远离街道,朝向霍巴特和德尔文特河,占据了一大块土地,还有一个宽敞的私人花园。卡尔弗登展示了其联邦意大利风格的典型特征: 不对称,狭窄的两层方形入口塔和精致的金银丝铁栏杆的木质阳台。房子是红砖砌成的,底部是砂岩,还有高大的砖砌烟囱和玻璃烟囱。
Text description provided by the architects. Culverden circa 1900 takes advantage of Mount Stuart’s elevation and aspect. Orienting away from the street, towards Hobart and the Derwent River it occupies a large allotment with an expansive private garden. Culverden displays typical features of its federation italianate style: asymmetry, a narrow two storey square entry tower and a timber verandah detailed with filigree iron balustrade. The house is red brick with a sandstone base, complete with tall corralled brick chimneys with glazed chimney pots.
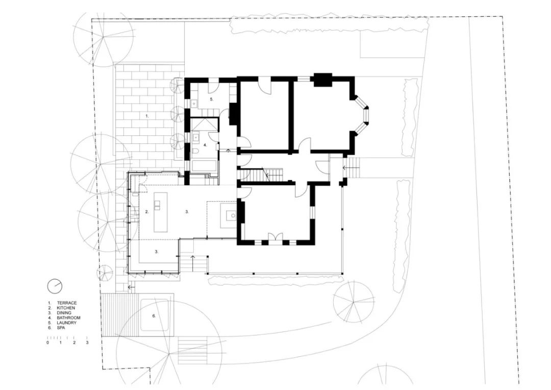
该项目包括:-拆除1986年失败的玻璃温室增加和替换为一个新的厨房和餐厅,-一个新的套间和步入式浴袍服务于主卧室-扩大和重新配置现有的地下浴室提供水平的访问从客人卧室,和相关的景观包括一个扭转时光机。
The project involved:
- demolition of the failing 1986 glasshouse addition and replacement with a new kitchen and dining room,
- a new ensuite and walk-in robe serving the master bedroom
- expansion and reconfiguration of existing ground floor bathroom to provide level access from the guest bedroom, and
- associated landscaping including a hot tub time machine.
委托人表达了”被花园吞没”的生活欲望。新建部分被设计成一个花园房间,温室或者温室。新的餐厅和厨房空间从现有住宅的南角扩展并围合起来。当一个人穿过房子的痕迹,新的现在自己逐渐,在厨房用餐区达到顶峰,在那里展示自己的全部。厨房是穿过房子的正式路线的一个立面,连接上下景观平台。
The client stated a desire to live “engulfed by the garden”. The new addition was conceived as a garden room, conservatory or green house. The new dining and kitchen space grows from and encloses the southern corner of the existing house. As one moves though the house traces of the new present themselves by degrees, culminating in the kitchen dining area where the full extent reveals itself. The kitchen is a bookend to the formal route through the house and connects the upper and lower landscaped terraces.
楼上的套房和浴袍直接通向主卧室,并悬挂在厨房用餐区之上。新增部分与现有的砂岩基地共享形式特征,将现有建筑与景观联系起来,并锚定新的工作。绿色住宅增加对比现有的内部空间的现有居住。透明但是有意和明显的结构,它捕捉到了花园的接近,并正式建立了与现有阳台的关系,但也实际上提供了架子和厨房秩序的机会。
Upstairs the en-suite and robe is accessed directly off the master bedroom, and is suspended above the kitchen dining area. The new addition shares formal characteristics with the existing The sandstone base makes a connection between the existing building and the landscape and anchors the new work. The green house addition contrasts the existing internalized spaces of the existing residence. Transparent yet deliberately and overtly structural, it captures the gardens proximity and formally sets up a relationship with the existing verandah but also practically provides opportunities for shelving and order to the kitchen.
勾勾手设计网|业务布局
A)卖|设计服务:
01-勾勾手文旅规划设计(专业规划策划设计运营团队)
02-潘小君自建房(提供一站式入住的建筑团队)
03-梦茹餐饮设计工作室(餐饮加盟连锁商业赋能)
04-
GGH移动房设计机构(引领全球个性移动房产品体系设计)
团队揸FIT人介绍
B)卖|产品(厂家直销):
01-佛山家具
02-移动房、模块房等
03-佛山制造品牌小家电
01-民旅项目小产权房
02-网红餐饮小店
03-乡镇农场小产权
往期专辑
Past Topics Click
了解更多,点击以下专辑
▽
01-集装项目
专辑
02-梦茹制造
服务咨询联系人↓↓↓
关于我们
→→
▽
▽
END
客服
消息
收藏
下载
最近



































