查看完整案例


收藏

下载
你好!我是勾勾手设计网,是你
!为懂得我们的客户提供贴心服务!好设计+好产品≥好生活
保证
!
梦 茹 说
Meng Ru said
在陆地与海洋的交汇处,广袤的蓝色海洋和天空吸引着人类,蓝色星球的居民; 这个家,为一个成熟的家庭创造,成年的孩子和父母对好的设计有着深深的热情,通过他们为日常生活创造和制造配件来表达,旨在消除这种不可抗拒的吸引力的障碍。他们渴望与附近的勃朗特海滩和远处的太平洋地平线紧密相连的生活,渴望看到从深处升起的朝阳,渴望沉浸在从水中升起的海浪和海风中。
Where the land meets the sea the blue expanse of ocean and sky is a magnet for humanity, the Blue Planet Dwellers; this home, created for a family reaching maturity, with adult children and parents deeply passionate about good design, expressed through their creation and manufacture of accessories for daily life, aimed to remove barriers to that irresistible attraction. They craved the ability to live their lives intimately connected to the nearby Bronte Beach and the Pacific Ocean horizon beyond; to watch the morning sun rise from its depths and be immersed in the conditions of the surf and sea breezes rising from the water.
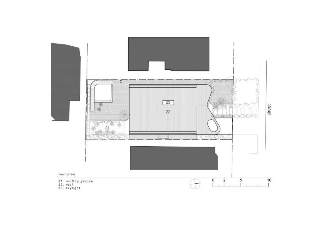
传统上,在欧洲,一个家庭的生活空间被安置在上层是相当普遍的,牲畜的空间和地面的存储空间,然而,在澳大利亚是根深蒂固的生活方式,将’生活区域’放在花园水平。虽然我们的家庭热衷于把他们的世界颠倒过来,把他们的生活空间放置在上层,以捕捉微风,增强他们的视野与海洋的联系,并从下面海边街区的繁忙街道中分离出来。
Traditionally in Europe it was quite common for the living spaces of a home to be positioned on the upper levels, with space for livestock and storage at ground level, however in Australia is engrained the lifestyle to place the ‘living areas’ at garden level. Our family though were keen to turn their world upside down and position their living spaces on the upper level to capture the breezes and enhance their views with that ocean connection, and detach themselves from the busy streets of the beachside neighbourhood below.
我们的客户的主要愿望是实现一种非常自然的生活方式,所以我们为他们设计了一个反映这种愿望的设计,大型可开启的窗户可以捕捉微风,天窗和百叶窗开口控制通往自然阳光,夯土墙提供热质量和粘土的水视冷却效果,屋顶花园提升了景观美化,增强了通往绿色空间的通道。材料的选择是为了提高这个家的真实性和光明正大的遗传学: 夯土,木材,锌和铁被处理在一个事实的方式。使用的夯土被小心地加入剂量,以提供一个“阳光发红”的表皮。
Our client’s main aspiration was to achieve a very natural lifestyle, and so we created a design for them that sought to reflect this aspiration, with large openable windows to catch the breezes, skylights and shuttered openings to control the access to natural sunlight, rammed earth walls providing thermal mass and the cooling effect of the hydroscopic qualities of clay, and a roof garden to elevate the landscaping enhance the access to green space. The materials were selected to promote the authenticity and ‘above board’ genetics of this home: rammed earth, timber, zinc and iron were treated in a ‘matter of fact’ way. The rammed earths used were carefully dosed to provide a ‘sun-blushed’ epidermis.
虽然项目拥抱自然,路易吉罗塞利建筑师,没有不使用这些材料在一种文化和参考的方式,他们的历史揭示了所有的设计选择。卡尔 · 斯卡帕风格的石制马赛克地板(威尼斯风格) ,拱形主卧门(拜占庭式或东方式) ,传统的铁制栏杆(中世纪风格)和百叶窗格子(以蕾丝制作为灵感)。建筑包含了形式的流动性,增强了设计的功能和目标。
Though the project embraces the natural, Luigi Rosselli Architects have not refrained from using these materials in a cultured and referential way, their history is revealed in all the design choices. The Carl Scarpa inspired stone mosaic floor (Venetian influence), the arched master bedroom door (byzantine or oriental), the traditional ironwork balustrades (medieval) and the latticework of the shutters (drawing on lace making as inspiration). The architecture embraces the fluidity of forms that enhance the function and aims of the design.
勾勾手设计网|业务布局
A)卖|设计服务:
01-勾勾手文旅规划设计(专业规划策划设计运营团队)
02-潘小君自建房(提供一站式入住的建筑团队)
03-梦茹餐饮设计工作室(餐饮加盟连锁商业赋能)
04-
GGH移动房设计机构(引领全球个性移动房产品体系设计)
团队揸FIT人介绍
B)卖|产品(厂家直销):
01-佛山家具
02-移动房、模块房等
03-佛山制造品牌小家电
01-民旅项目小产权房
02-网红餐饮小店
03-乡镇农场小产权
往期专辑
Past Topics Click
了解更多,点击以下专辑
▽
01-集装项目
专辑
02-梦茹制造
服务咨询联系人↓↓↓
关于我们
→→
▽
▽
END
客服
消息
收藏
下载
最近














































