查看完整案例


收藏

下载
你好!我是勾勾手设计网,是你
!为懂得我们的客户提供贴心服务!好设计+好产品≥好生活
保证
!
老 刘 说
Liu said
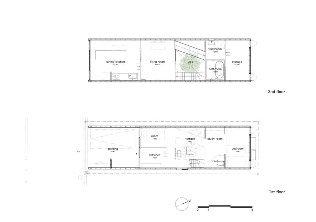
这是一个木屋,建在一个街区的基地上,有一个狭窄的正面和一个长深度。纵向设计了两面墙,从一层到屋顶高度的“ yosegi 墙”随机设置在短侧方向。
It is a wooden house built on the site of a block with a narrow frontage and a long depth. Two walls were made in the longitudinal direction, and "Yosegi Wall" with a height from the first floor to the roof level were randomly placed in the short side direction.
“ yosegi wall”是一种剪力墙,由9厘米见方的雪松木材连接而成。这面墙是由一个技艺高超的木匠,在他自己的工厂制作的,而不是交叉层压木材。
"Yosegi Wall "is a shear wall made by connecting 9cm square timbers of cedar. This wall was made by a highly skilled carpenter in his own factory, not by Cross Laminated Timber.
这不仅是一个剪力墙和一个柱子,还是一个隔断墙,这是一个矛盾的存在,作为一个强大的存在,当它感觉轻如一个筑屋。
This is not only a shear wall and a pillar, but also a partition wall, and it is an ambivalent existence with a strong presence as a structure and a moment when it feels light like a tsuitate.
由于阳台种植,混凝土,镀锌楼梯,非私人空间的连续性和天花板的高度,以及来自天窗的阳光,房子看起来像外部。它创造了一个漫步和多样化的序列和一种深度感。
The house looks like the outside due to terrace planting, concrete, galvanized stairs, non-private space continuity and ceiling height, and sun light from the skylight. It creates a strolling and diverse sequence and a sense of depth.
勾勾手设计网|业务布局
A)卖|设计服务:
01-勾勾手文旅规划设计(专业规划策划设计运营团队)
02-潘小君自建房(提供一站式入住的建筑团队)
03-梦茹餐饮设计工作室(餐饮加盟连锁商业赋能)
04-
GGH移动房设计机构(引领全球个性移动房产品体系设计)
团队揸FIT人介绍
B)卖|产品(厂家直销):
01-佛山家具
02-移动房、模块房等
03-佛山制造品牌小家电
01-民旅项目小产权房
02-网红餐饮小店
03-乡镇农场小产权
往期专辑
Past Topics Click
了解更多,点击以下专辑
▽
01-集装项目
专辑
02-梦茹制造
服务咨询联系人↓↓↓
关于我们
→→
▽
▽
END
客服
消息
收藏
下载
最近

































