查看完整案例


收藏

下载
你好!我是勾勾手设计网,是你
!为懂得我们的客户提供贴心服务!好设计+好产品≥好生活
保证
!
老 刘 说
Liu said
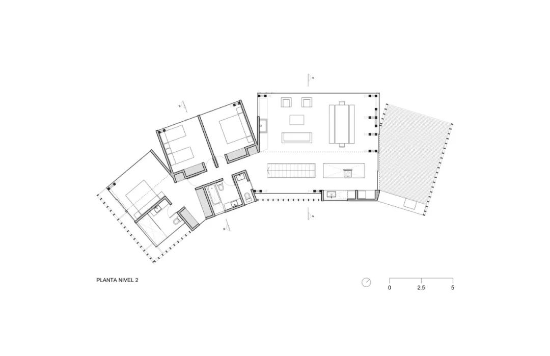
房子采用珊瑚的解剖结构作为先例,珊瑚的身体分成4个部分,以寻找光线和景观。在部分中,这些尸体有不同的高度。
The house takes as precedent the anatomy of a coral, where a body branches into 4 in search of light and views. In section, these bodies are worked with different heights.
这个项目提出了一个与地面分离的房子,特别是离地面2.5米的地方。它分为两层,第一层有柱子,横梁,和支撑的对角线,随着家庭的成长,未来可能会有新的空间。第二层是由1个身体分支4个,开放增加远处的全景视野。主要的生活空间由传统的智利仓库的木框架构成。卧室的主体由隔断墙和阳台组成,木质结构网格起到了风能和太阳能过滤器的作用。
The project proposes a house separated from the ground, specifically at 2.5 m from the ground. It is organized in 2 levels, the first with columns, beams, and bracing diagonals, with the possibility to incorporate new spaces in the future as the family grows. The second level is composed of 1 body ramified in 4, opened to increase distant panoramic views. The main living space is structured with wooden frames as in traditional Chilean warehouses. The bodies of the bedrooms are structured with partition walls and the terrace with a structural wooden grid that acts as a wind and solar filter.
总平面图。房子承认了当地的气候和地理条件,最大限度地利用了北方的阳光和南风的保护。它位于圣地亚哥以南3小时车程,罗伯斯角的海岸山脉西坡。
Master Plan. The house recognizes the climatic and geographic conditions of the site, maximizing northern sunlight and south wind protection. It is located on a western slope of the coast mountain range in the area of Punta de Lobos, Pichilemu, 3 hours south of Santiago.
勾勾手设计网|业务布局
A)卖|设计服务:
01-勾勾手文旅规划设计(专业规划策划设计运营团队)
02-潘小君自建房(提供一站式入住的建筑团队)
03-梦茹餐饮设计工作室(餐饮加盟连锁商业赋能)
04-
GGH移动房设计机构(引领全球个性移动房产品体系设计)
团队揸FIT人介绍
B)卖|产品(厂家直销):
01-佛山家具
02-移动房、模块房等
03-佛山制造品牌小家电
01-民旅项目小产权房
02-网红餐饮小店
03-乡镇农场小产权
往期专辑
Past Topics Click
了解更多,点击以下专辑
▽
01-集装项目
专辑
02-梦茹制造
服务咨询联系人↓↓↓
关于我们
→→
▽
▽
END
客服
消息
收藏
下载
最近









































