查看完整案例


收藏

下载
你好!我是勾勾手设计网,是你为懂得我们的客户提供贴心服务!好设计+好产品≥好生活保证!
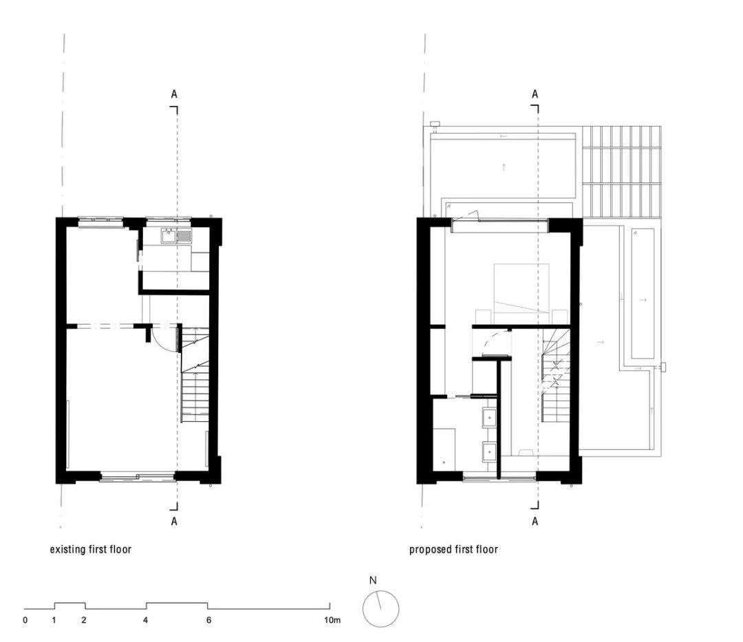
老刘说 Liusaid 客户希望把他们的家变成一个持久和适应性强的家,为他们日益增长的家庭。这栋房子是典型的中世纪联排别墅,一楼有生活空间,与花园连接不良。它也没有一个大的卧室,只有一些小的房间在二楼。设计的目的是在底层创造一个新的家庭空间,与花园有更好的连接,在一楼还有一个卧室套房。
The clients wanted to transform their home into a durable and adaptable home for their growing family. The house was typical of mid-century townhouses with living spaces on the first floor and a poor connection to the garden. It also lacked a large bedroom with only a number of smaller rooms on the 2nd floor. The brief was to create a new family space at ground level with a better connection to the garden plus a bedroom suite on the first floor.
房子坐落在一个三角形的地块上,有一个大而笨拙的花园。露台建于 20 世纪 70 年代,位于一个曾经的果园里(在伦敦东南部很常见,直到 20 世纪,这里一直是水果和蔬菜的重要生产地)。那里有一些非常古老的果树,在春天仍然开花,在秋天结果,更大的果树遮挡了房子后面的视线。
The house sat on a triangular plot with a large but awkwardly shaped garden. The terrace had been built in the 1970s in a former orchard - (common in SE London which was a significant producer of fruit and vegetables until well into the 20th Century). There were a number of very old fruit trees that still produced blossom in the Spring and fruits in the autumn and larger trees beyond that shielded views to and from houses behind.
我们想要庆祝生活在果树之间的感觉,以及在更大的树冠之下的感觉。在一楼,景观被精心布置的开口框架起来,这些开口以一种深思熟虑但克制的方式连接着一楼。相比之下,一楼的卧室有一扇宽敞的窗户,将风景和树冠带入房子。
We wanted to celebrate the sense of living amongst fruit trees and below the canopy of the larger trees beyond. On the ground floor, views are framed with carefully positioned openings that connect the ground floor in a deliberate but restrained way. By contrast, the first-floor bedroom has a wide and generous window that brings the landscape and canopy into the house.
由于缺乏地方当局对改革的支持,必须找到一种可以通过允许的开发来实现的解决办法。因此一楼延伸到了后面和侧面。这种方法也要求使用与现有住宅相同的材料和窗户类型。我们认为这是一个机会,而不是一个限制:黄色的积木砖块被放置在地面以下和天花板高度以上的边缘上,给人一种增加的水平感,并区别于原来的房子。地面的开口参照了现有的住宅,但是在后立面和侧立面上有一个精心设计的节奏。
A lack of support for changes from the local authority necessitated a solution that could be achieved through permitted development. The ground floor was therefore extended to the rear and side. This approach also required the use of the same materials and window types as the existing house. We perceived this as an opportunity rather than a restriction: yellow stock bricks were laid on-edge below ground and above ceiling height to give a sense of horizontality to the additions and differentiating the additions from the original house. The openings at the ground referenced the existing house but were placed with a deliberate rhythm on rear and side elevations.
新的家庭生活空间需要是开放的,灵活的,强大的。一如既往,我们希望尽量减少钢筋和混凝土的使用。因此,延伸部分使用内部暴露的木材结构,以提供耐磨的内部装饰和温和、人性化的空间规模。木结构在开放空间内形成半开放的屏风,为工作、娱乐或休息定义不同的区域。
The new family living spaces needed to be open, flexible, and robust. As ever, we wanted to minimise the use of steel and concrete. The extensions, therefore, use timber structure exposed internally to provide a hard-wearing internal finish and a gentle, humane scale within the space. The timber structure forms semi-open screens within the open space to define different areas for work, play or rest.
结构木材和铺设形成一个视觉和听觉温暖的背景。一个简单的白色瓷砖定义了厨房岛和工作台。地板是由灰色油毡和蓝色油毡组成的三角形构成,与木材结构的直线网格形成对比。这种三角形的模式最终将形成花园景观,有助于解决花园的尴尬地形,并提供与房子的几何形状进一步对比。
The structural timber and ply form a backdrop that is visually and acoustically warm. A simple white ceramic tile defines the kitchen island and worktop. The floor is a triangulated composition of linoleum grey and blue linoleum that contrasts with the rectilinear grid of timber structure. This triangular pattern will eventually inform the garden landscaping, helping to deal resolve the awkward topography of the garden and providing further contrast with the geometry of the house.
02+项目图纸
Project drawing
这栋房子现在是一个两岁和五岁孩子的家,为家庭生活提供了一个有趣而坚固的背景。在封闭期间,空间的连接得到了自己的体现,允许不同的活动在整个房子中进行而不受干扰。
The house is now home to a 2 and 5-year-old and provides a playful and suitably robust backdrop to family life. The articulation of spaces has come into its own during lockdown allowing different activities to occur throughout the house without disruption.
勾勾手设计网|业务布局
A)卖|设计服务:
01-勾勾手文旅规划设计(专业规划策划设计运营团队)
02-潘小君自建房(提供一站式入住的建筑团队)
03-梦茹餐饮设计工作室(餐饮加盟连锁商业赋能)
04-GGH 移动房设计机构(引领全球个性移动房产品体系设计)
团队揸 FIT 人介绍
B)卖|产品(厂家直销):
01-佛山家具
02-移动房、模块房等
03-佛山制造品牌小家电
01-民旅项目小产权房
02-网红餐饮小店
03-乡镇农场小产权
往期专辑 Past TopicsClick 了解更多,点击以下专辑▽
01-集装项目专辑
02-梦茹制造
服务咨询联系人↓↓↓
关于我们
→→
▽▽END
客服
消息
收藏
下载
最近



































