查看完整案例


收藏

下载
你好!我是勾勾手设计网,是你
!为懂得我们的客户提供贴心服务!好设计+好产品≥好生活
保证
!
老 刘 说
Liu said
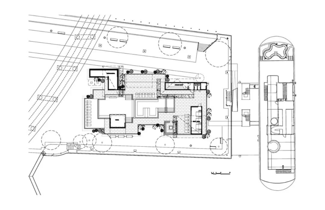
位于老蒙特利尔市中心,停靠在圣劳伦斯河港口的博塔博塔温泉是一个主要的旅游胜地。这个港口历史悠久,在蒙特利尔有独特的特色。这个地方被水,植被和巨大的粮仓包围着。我的建筑被委托在这个特殊的地方,设计一个放松的绿洲,在城市中心的一个小天堂。波塔波塔花园就是在游艇温泉,河流和高架铁路之间形成的。
Located in the heart of Old Montreal and docked at the Port of the Saint-Lawrence River, Bota Bota spa, is a major tourist attraction. The port context is rich in history and has a unique character in Montreal. The site is surrounded by water, vegetation and the massive grain silos 5. MU Architecture was commissioned to design an oasis of relaxation in this exceptional place, a little heaven in the heart of the city. It is between the boat-spa, the river and the elevated railway that Bota Bota Gardens take shape.
花园温泉平面图
在大陆上创造一个放松的区域,从而让客户可以接触到外部空间。该项目将成为游客和当地人在炎热的夏季寻找安静、凉爽和阴凉的最喜欢的地方,但也是一个友好的地方,冬天在户外游泳,可以看到市中心的摩天大楼。
The mandate was to create a relaxing area on the mainland and thus give customers access to the exterior. The project was to become the favorite spot for tourists and locals looking for silence, cooling and shade in the hot summer months, but also a friendly place to swim outdoors in winter with outstanding views on the downtown skyscrapers.
建筑的目的是创建一个简单但优雅的单体集,框架强大的透视。体量的位置是为了创造连续的线条,在谷仓,栖息地67,老港口和城市的摩天大楼上给人留下深刻的印象。大型绿色屋顶悬臂,创造太阳动画阴影,帮助产生这个绿洲的感觉。这些屋顶的底部由大块的穿孔金属板组成,带有激光切割的方形图案,提供了一组随着太阳运动的节奏舞动的阴影。
These "pavilions" were therefore arranged to create a course oriented towards relaxation and discovery. The architectural intention was to create a simple but yet elegant set of monolithic volumes that frames strong perspectives. The volumes are positioned in order to create continuous alignments with impressive views on the grain silos, Habitat 67, the Old Port and the skyscrapers of the city. Large green roofs cantilever to create sun animated shadows that help generate this oasis feel. Soffits of these roofs consist of large perforated metal sheets with a laser cut squares pattern that provides a set of shadows dancing to the rhythm of the movement of the sun.
勾勾手设计网|业务布局
A)卖|设计服务:
01-勾勾手文旅规划设计(专业规划策划设计运营团队)
02-潘小君自建房(提供一站式入住的建筑团队)
03-梦茹餐饮设计工作室(餐饮加盟连锁商业赋能)
04-
GGH移动房设计机构(引领全球个性移动房产品体系设计)
B)卖|产品(厂家直销):
01-佛山家具
02-移动房、模块房等
03-佛山制造品牌小家电
01-民旅项目小产权房
02-网红餐饮小店
03-乡镇农场小产权
往期专辑
Past Topics Click
了解更多,点击以下专辑
▽
01-集装项目
专辑
02-梦茹制造
服务咨询联系人↓↓↓
关于我们
→→
▽
▽
END
客服
消息
收藏
下载
最近





















