查看完整案例


收藏

下载
你好!我是勾勾手设计网,是你
!为懂得我们的客户提供贴心服务!好设计+好产品≥好生活
保证
!
老 刘 说
Liu said
坐落在三十英亩的遥远牧场上,lavaflow 5用结构和线条勾勒出海洋和天空的轮廓。细长的钢架支撑着不同不透明度的墙壁,从无到玻璃,到屏幕,再到实体——创造出一层材料,缓和了俯瞰夏威夷大岛莫纳克亚山东坡上的滨海海岸线的广阔视野。
Located on thirty acres of remote pasture, Lavaflow 5 frames the sea and sky with structure and line. The slender steel frame supports walls of varying opacity; from nothing, to glass, to screen, to solid - creating a laminate of materials tempering the expansive view overlooking the Hamakua coastline on the eastern slope of Mauna Kea on Hawaii’s Big Island.
基地的偏远,我们对大面积开放的渴望,以及对建筑可持续性的承诺,促使我们研究钢铁预制作为一种建筑方法。我们开始研究标准的预制系统,但所有的可用似乎是笨拙的,缺乏精致,我们想要的。因此,与我们的结构工程师密切合作,我们设计和开发了一个螺栓连接的结构系统,基于8“ x8”宽翼缘梁,允许长跨度的钢,同时保持我们设想的优雅规模。
The remoteness of the site, our desire for large open expanses, and a commitment to build sustainability led us to investigate prefabrication in steel as a method of construction. We began by researching standard prefabrication systems but all that were available seemed clumsy and lacking the refinement we desired. So working closely with our structural engineer, we designed and developed a bolt together structural system based on 8”x8” wide flange beams that allowed for long spans of steel while keeping the elegance of scale we had envisioned.
这个框架是由旧金山的一家工厂制作的,这家工厂通常专注于小规模的建筑钢结构工作。他们按照楼梯通常的承受力,建造了这个框架。一个现成的瓦楞自我支持屋顶系统被整合到结构工程中,并随着钢结构框架一起传送到现场。建造钢架和屋顶花了五天时间。
The frame was fabricated in San Francisco by a shop that usually focuses on small-scale architectural steel work. They built this frame to the tolerances they usually apply to their staircases. An off-the-shelf corrugated self supporting roof system was integrated into the structural engineering and delivered to the site along with the steel frame. It took five days to erect the steel frame and roof.
02+项目图纸
Project drawing
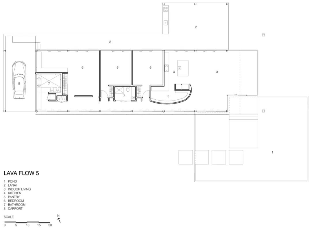
拉瓦夫洛5号位于该岛的顶部,受到强风的保护,强风在岛的这一侧不断出现。房子又长又薄,所有的房间都朝向北面的大海。流通是在南面和太阳减轻沿着这个扩展大厅与环氧树脂屏幕-产品通常用于工业甲板。房子在基地之上升高,穿过一个50英尺 x 50英尺的反射池。
Lavaflow 5 sits at the top of the property protected from the strong winds that are a constant on this side of the island. The house is long and thin with all rooms looking north towards the ocean. Circulation is on the south side and sun is mitigated along this extended hall with an epoxy resin screen - a product usually used for industrial decking. The house is elevated above the site and entered across a 50’x 50’ reflecting pond.
住宅狭窄的平面通过对流通风提供被动冷却,消除了机械空气调节。工业屏风过滤阳光,创造一个一致和扩散的室内光质量全天。另一个可持续的特点包括一个太阳能加热系统,为所有家庭热水。这座由钢铁、混凝土和玻璃组成的决定性简单建筑,提供了生活的基本要求,同时将注意力集中在夏威夷动态环境中的体验式生活上。
The narrow plan of the house provides passive cooling through cross ventilation allowing for the elimination of mechanical air conditioning. The industrial screen filters the sunlight creating a consistent and diffused interior light quality throughout the day. Another sustainable feature includes a solar heating system for all domestic hot water. This decidedly simple building of steel, concrete, and glass provides the essential requirements for living while focusing attention on living experientially in Hawaii’s dynamic environment.
勾勾手设计网|业务布局
A)卖|设计服务:
01-勾勾手文旅规划设计(专业规划策划设计运营团队)
02-潘小君自建房(提供一站式入住的建筑团队)
03-梦茹餐饮设计工作室(餐饮加盟连锁商业赋能)
04-
GGH移动房设计机构(引领全球个性移动房产品体系设计)
团队揸FIT人介绍
B)卖|产品(厂家直销):
01-佛山家具
02-移动房、模块房等
03-佛山制造品牌小家电
01-民旅项目小产权房
02-网红餐饮小店
03-乡镇农场小产权
往期专辑
Past Topics Click
了解更多,点击以下专辑
▽
01-集装项目
专辑
02-梦茹制造
服务咨询联系人↓↓↓
关于我们
→→
▽
▽
END
客服
消息
收藏
下载
最近






































