查看完整案例


收藏

下载
你好!我是勾勾手设计网,是你
!为懂得我们的客户提供贴心服务!好设计+好产品≥好生活
保证
!
梦 茹 说
Meng Ru said
罗马诺特是墨西哥城的一个社区,充满了历史和运动,以其文化,美食和建筑展示而闻名。“ los alexis”玉米卷店位于恰帕斯街(chiapas street) ,这是一个向非正式商业致敬的地方,通过在其商业场所内重新诠释街上的“ changarro”玉米卷,菜单上只有两种玉米卷,taurinos 和 asada。
Roma Norte is a neighborhood in Mexico City full of history and movement, known for its cultural, gastronomic, and architectural display. The taco place “Los Alexis” is located on Chiapas street, a space that pays tribute to informal commerce that takes the space by reinterpreting a street taco “changarro” within its commercial premises, with a simple menu of 2 tacos, the Taurinos and Asada.
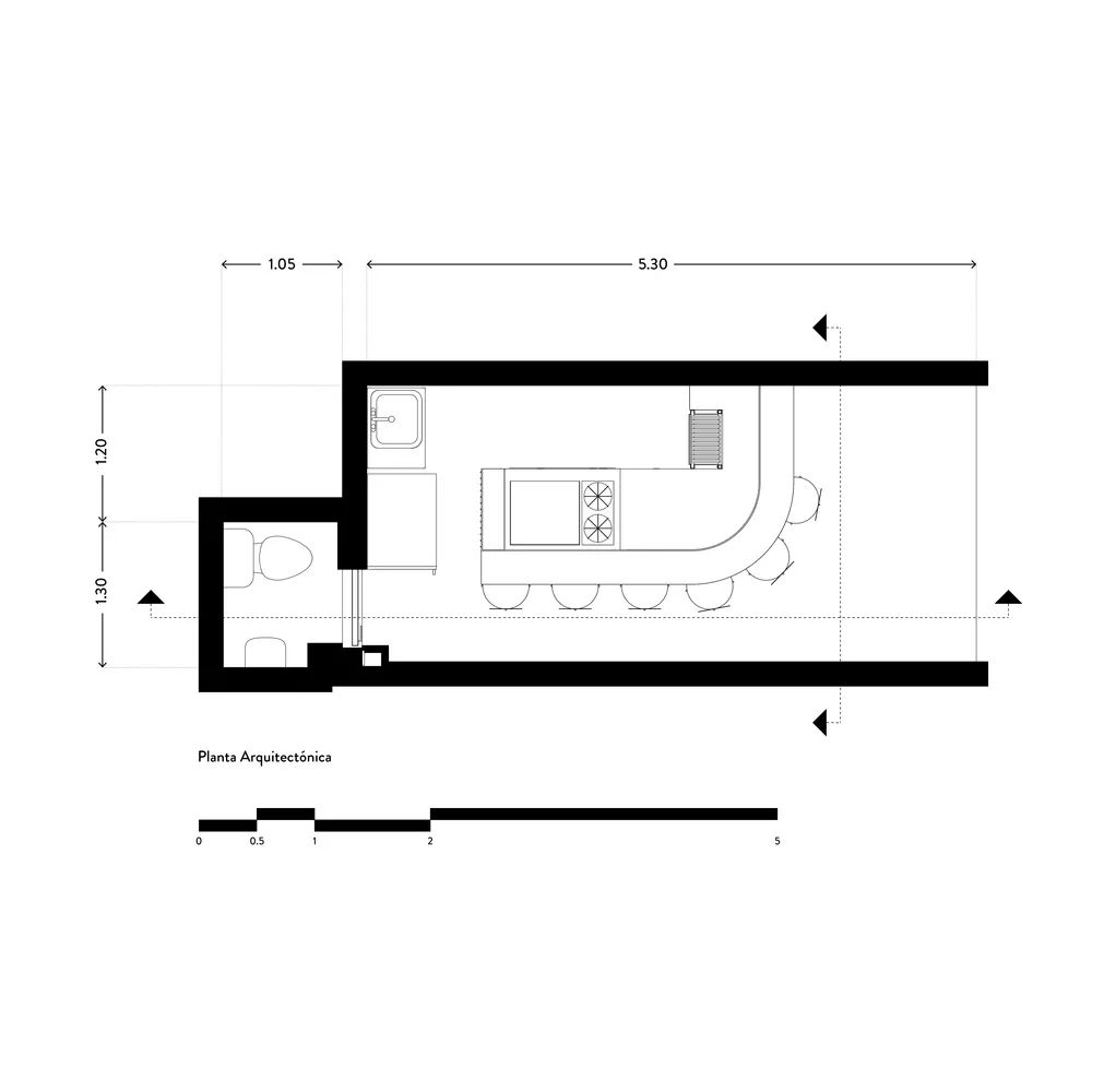
这个项目产生了色彩,质地和香气的融合,在15平方米的空间里创造了一种疏离感,使我们脱离环境,体验不同的美食体验。
室内设计通过环绕厨房的破碎马赛克构成,使其成为空间的核心,设计灵感来自罗马社区的装饰艺术,色彩与背景形成对比,通过使用灯光,突出空间的曲线和线性设计,产生一系列对比的氛围。
The interior design is generated through the composition of the broken mosaic that surrounds the kitchen, making it the centerpiece of the space, designed with the Art Deco inspiration of the Roma neighborhood and colors that contrast with the background, highlighting the space with its curved and linear design that through the use of lighting evokes an atmosphere that generates a range of contrasts.
勾勾手设计网|业务布局
A)卖|设计服务:
01-勾勾手文旅规划设计(专业规划策划设计运营团队)
02-潘小君自建房(提供一站式入住的建筑团队)
03-梦茹餐饮设计工作室(餐饮加盟连锁商业赋能)
04-
GGH移动房设计机构(引领全球个性移动房产品体系设计)
B)卖|产品(厂家直销):
01-佛山家具
02-移动房、模块房等
03-佛山制造品牌小家电
01-民旅项目小产权房
02-网红餐饮小店
03-乡镇农场小产权
往期专辑
Past Topics Click
了解更多,点击以下专辑
▽
01-集装项目
专辑
02-梦茹制造
服务咨询联系人↓↓↓
关于我们
→→
▽
▽
END
客服
消息
收藏
下载
最近






















