查看完整案例


收藏

下载
不用华丽的文字来表达项目,平白实在才是真理!!!我是勾勾手传媒团队(
),用“粤语”来写作!看不明白,请多看香港电视或多点唱“粤语”歌。。。
可见即可售
,
所想便可得!
public article written products can be seen to sell, think can be obtained!
项目故事
Project Story
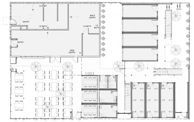
MacArthur Annex是Baran Studio Architecture对办公和商业建筑模式的一种全新尝试,项目于2017年在Oakland最繁忙的轨交车站附近落地。
Macarthur Annex is a new attempt by Baran Studio Architecture to model office and Commercial Architecture, which was launched in 2017 near Oakland's busiest rail transit station.
以上产品可以进行尺寸放在及缩少的自由组合,最大的运输尺寸控制在宽3.5米X高3.5米X长12米以内便可!
The above products can be put in size and reduced free combination, the largest transport size control in 3.5 m x 3.5 m x 12 M Long! Oh, Shit
卖设计)
2021年“勾勾手设计站”业务布局
:
01-个人住宅开发
以潘小君自建房核心IP对外进行项目设计及施工服务,业务范围主要在广佛一带。
02-餐饮品牌设计及供应链建立:
以梦茹餐饮工作室为核心IP,专
注于新餐饮品牌的再造。
03-文旅版块中的网红民宿及移动民宿产品设计:
专注于网红民宿设计及运营、移动民宿产品开发。
(卖产品)
团队揸FIT人介绍(卖生活)
往期话题
Past Topics Click
了解更多,点击以下专辑
▽
01-集装项目
专辑
02-梦茹餐饮工作室专辑
03+渡假村&民宿参考
服务咨询联系人↓↓↓
关于我们
→→
▽
勾勾手,是为解决设计者及中小型工作室、设计公司、民宿宿主对设计、建材、灯具、家具、民宿、施工等产品的落地方案问题的最终解决公司。集设计、产品开发、品牌运营、施工等一体化。
END
客服
消息
收藏
下载
最近































