查看完整案例


收藏

下载
GGH设计机构
预计占用你30秒便可看完文章。。。。。
The GGH design agency estimates it will take you 60 seconds to read the article. . . . .
刘 老 师 说
Teacher Liu said
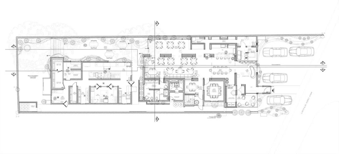
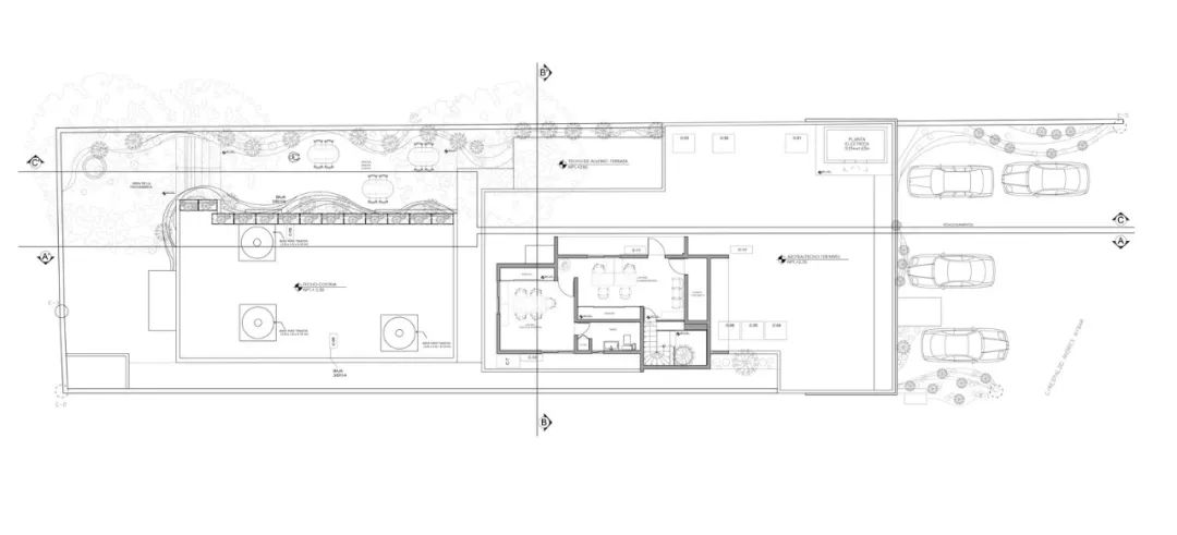
Ajuala 是解释客户对他所做的事情的热情的结果; 这个项目,它的物质性,和概念,是定义和产生于第一次会议和与主厨 saverio stassi 的谈话,它的每一道菜的热情和故事,是感染我们在这个项目的架构传递的东西。所以,从一开始我们就明白,我们的项目必须讲述一个故事,每一个材料背后都有一个强烈的意图或故事,通过这个传递一种不同的感觉或体验,实现一个项目,这个项目来自于一个在当地美食市场相当标准化的建筑。
Ajuala is the result of interpreting a customer's passion for what he does; this project, its materiality, and concept, is defined and arises from the first meetings and conversations with Chef Saverio Stassi, the passion and stories that each of its dishes have, was something that infected us to transfer in the Architecture of this project. So, from the beginning we understood that our project had to tell a story, that each of its materials has a strong intention or stories behind it and with this transmit a different feeling or experience, achieve a project that came out of an architecture that is quite standardized in this local market of gastronomy.
也许我们最喜欢这个项目的地方,是一些很难被普通大众捕捉到的东西,这是一个创造性的适应过程,必须做到这一点,理解以前它是一个住宅,变化必须是最小的,但剧烈的管理,以重新利用这个建筑,并在其中产生一个新的用途,它不是设计。
Probably what we like most about this project, is something difficult to capture by the general public and it is the creative process of adaptation that had to be done, understanding that previously it was a residential house and the changes had to be minimal but drastic to manage to reuse this building and generate in it a new use for which it was not designed.
这个概念从一开始就被定义了,我们的建筑项目是与厨师的烹饪理念相协调的,我们的材料主要是当地的产品,当地的劳动力,并以一种创造性的,不同的方式使用他们,这个概念是最重要的一点,通过创造性的设计,突出,当地的材料。
The concept was defined from the beginning, our architectural project was to be a synergy with the Culinary concept of the Chef, our materials mostly had to be local products, local labor and use them in a creative, different way; this concept was the most important point to highlight, highlight through creative design, local materials.
A-卖设计|
2021年“勾勾手设计站”业务布局
:
01-个人住宅开发
以潘小君自建房核心IP对外进行项目设计及施工服务,业务范围主要在广佛一带。
02-餐饮品牌设计及供应链建立:
以梦茹餐饮工作室为核心IP,专
注于新餐饮品牌的再造。
03-文旅版块中的网红民宿及移动民宿产品设计:
专注于网红民宿设计及运营、移动民宿产品开发。
团队揸FIT人介绍
B-卖产品|
C-卖生活|
往期专辑
Past Topics Click
了解更多,点击以下专辑
▽
01-集装项目
专辑
02-景墅建设
服务咨询联系人↓↓↓
关于我们
→→
▽
勾勾手,是为解决设计者及中小型工作室、设计公司、民宿宿主对设计、建材、灯具、家具、民宿、施工等产品的落地方案问题的最终解决公司。集设计、产品开发、品牌运营、施工等一体化。
END
客服
消息
收藏
下载
最近





































