查看完整案例


收藏

下载
GGH设计机构
预计占用你30秒便可看完文章。。。。。
The GGH design agency estimates it will take you 60 seconds to read the article. . . . .
刘 老 师 说
Teacher Liu said
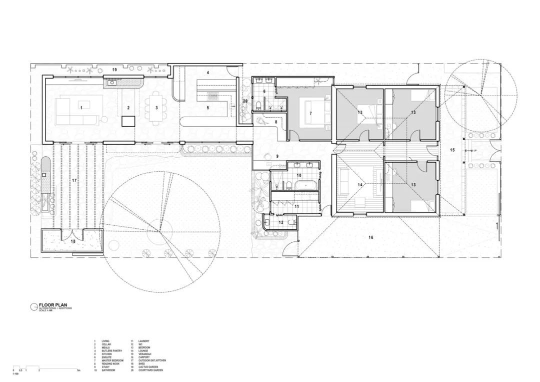
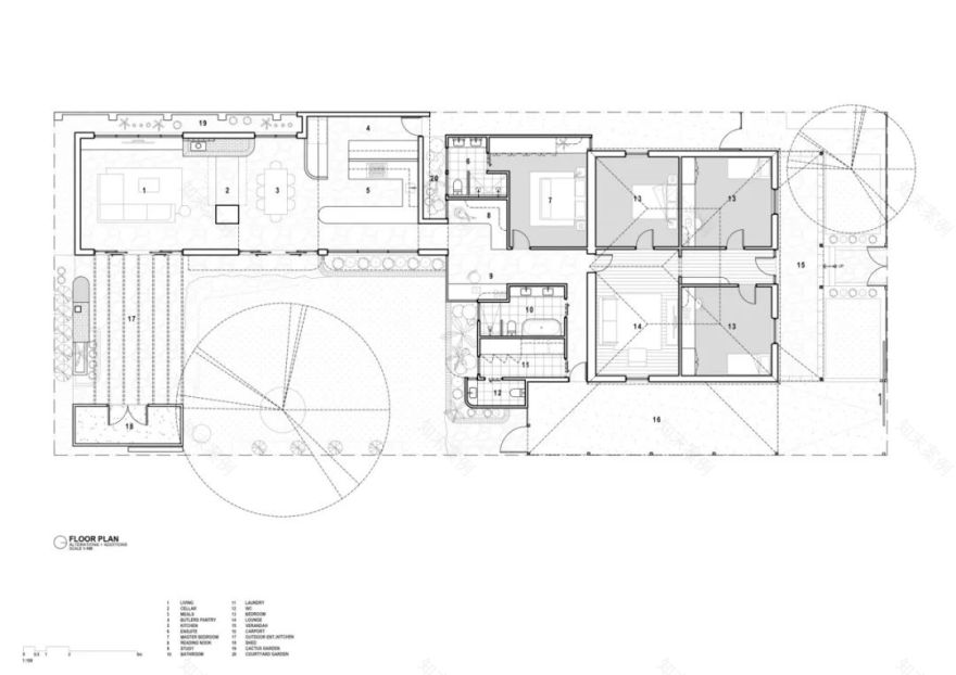
当你从古德伍德路转入吉尔伯特街时,空气中弥漫着嗡嗡声。艺术装饰风格的卡普里剧院,一个角落里矗立着政治家般的风格,另一个角落里则是从前的成人用品商店改建而成的时髦的当地葡萄酒吧。
As you turn off Goodwood Road onto Gilbert st there is a buzz in the air. The Art-Deco Capri Theatre stands statesman-like on one corner while a former adult shop turned new hip local wine bar energises the other.
吉尔伯特深深地扎根于郊区的社区,那里有咖啡馆、酒吧、甜点酒吧、餐馆、当地的学校和商店,吉尔伯特拥抱着当地。
Firmly embedded within a suburban community boasting cafes, bottle shops, dessert bars, restaurants, local schools and shops, Gilbert embraces its locality.
A-卖设计|
2021年“勾勾手设计站”业务布局
:
01-个人住宅开发
以潘小君自建房核心IP对外进行项目设计及施工服务,业务范围主要在广佛一带。
02-餐饮品牌设计及供应链建立:
以梦茹餐饮工作室为核心IP,专
注于新餐饮品牌的再造。
03-文旅版块中的网红民宿及移动民宿产品设计:
专注于网红民宿设计及运营、移动民宿产品开发。
团队揸FIT人介绍
B-卖产品|
C-卖生活|
往期专辑
Past Topics Click
了解更多,点击以下专辑
▽
01-集装项目
专辑
02-景墅建设
服务咨询联系人↓↓↓
关于我们
→→
▽
勾勾手,是为解决设计者及中小型工作室、设计公司、民宿宿主对设计、建材、灯具、家具、民宿、施工等产品的落地方案问题的最终解决公司。集设计、产品开发、品牌运营、施工等一体化。
END
客服
消息
收藏
下载
最近

























