查看完整案例


收藏

下载
GGH设计机构
预计占用你30秒便可看完文章。。。。。
The GGH design agency estimates it will take you 60 seconds to read the article. . . . .
刘 老 师 说
Teacher Liu said
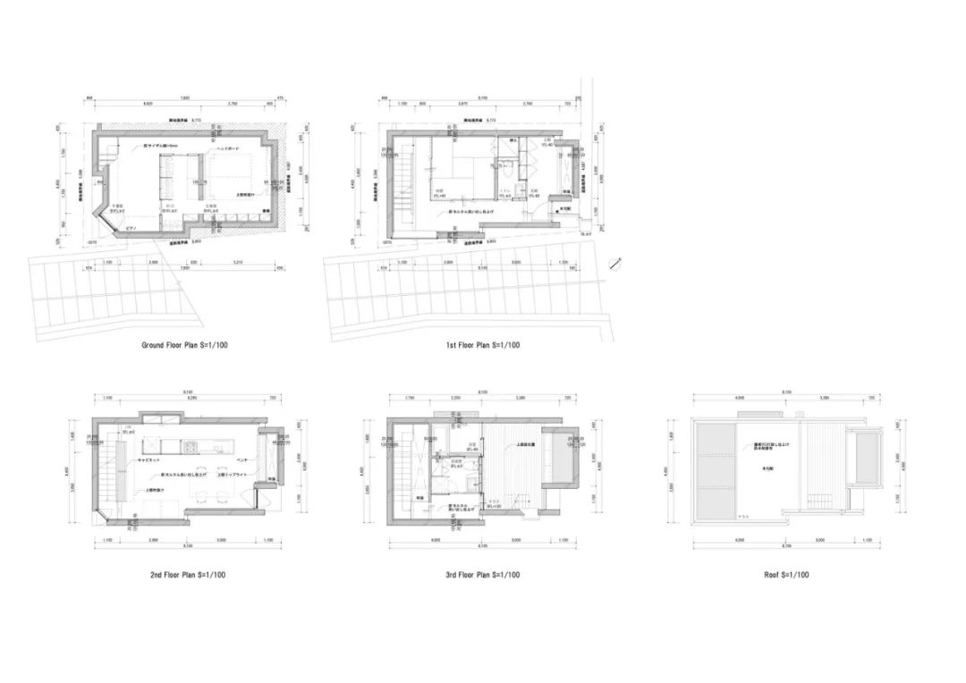
这栋房子所在的街道叫做 kikuzaka,这是东京的一个街区,地形起伏很大,因此,这个地区一直无法开发,直到现在,因此老房子仍然存在。
The street where the house is located is called Kikuzaka, which is a neighborhood in Tokyo where the topography is very undulating, and because of this, the area has been unable to be developed until now, and as a result old houses remain.
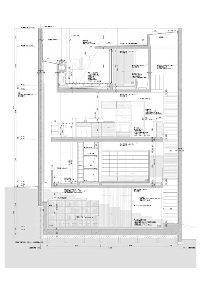
住宅的结构是 rc,以尽量缩小住宅和邻近土地之间的差距,最大限度地利用室内空间,以及遵守消防规则。
The structure of the house is RC in order to minimize the gap between the house and the neighboring land and to maximize the interior space, as well as to comply with fire regulations.
三楼是一个带浴室的卫生间,虽然是开放的,但是不受周围景色的影响,还有一个通往屋顶的楼梯,可以看到整个城市的景色。
The third floor is a sanitary space with a bathroom, which is open but protected from the surrounding view and a staircase to the roof, which offers a view of the entire city.
卖设计)
2021年“勾勾手设计站”业务布局
:
01-个人住宅开发
以潘小君自建房核心IP对外进行项目设计及施工服务,业务范围主要在广佛一带。
02-餐饮品牌设计及供应链建立:
以梦茹餐饮工作室为核心IP,专
注于新餐饮品牌的再造。
03-文旅版块中的网红民宿及移动民宿产品设计:
专注于网红民宿设计及运营、移动民宿产品开发。
(卖产品)
团队揸FIT人介绍(卖生活)
往期话题
Past Topics Click
了解更多,点击以下专辑
▽
01-集装项目
专辑
02-梦茹餐饮工作室专辑
03+渡假村&民宿参考
服务咨询联系人↓↓↓
关于我们
→→
▽
勾勾手,是为解决设计者及中小型工作室、设计公司、民宿宿主对设计、建材、灯具、家具、民宿、施工等产品的落地方案问题的最终解决公司。集设计、产品开发、品牌运营、施工等一体化。
END
客服
消息
收藏
下载
最近



























































