查看完整案例


收藏

下载
GGH设计机构
预计占用你30秒便可看完文章。。。。。
The GGH design agency estimates it will take you 60 seconds to read the article. . . . .
项目故事
Project Story
餐厅设计成城市咖啡厅的风格,位于切尔瓦诺格勒市1970年建成的电影院。现在这栋楼改建成了购物中心。这个项目由 lviv 家庭建筑设计局 baranburo 开发。城市咖啡馆概念的应用使创造一个空间成为可能,吸引所有年龄的城市居民。这个项目的目的是在城市中创造一些新的和不同寻常的东西,一种爆炸,将在城市设计中引发积极的变化和趋势。对于 chervonorad 这样的小城市,这是一个新的,有趣的,时髦的概念。
Text description provided by the architects. The restaurant is designed in the style of a city café in the building of the past cinema of Chervonograd city, built in 1970. Now this building is converted to the needs of the shopping center. The project was developed by the Lviv family bureau of architecture and design BARANBURO. The application of the concept of a city café made it possible to create a space that would attract city residents of all ages. The aim of this project was to create something new and unusual in the city, a kind of explosion that would initiate positive changes and trends in the design of the city. For such a small city as Chervonohrad, this is a new, interesting and trendy concept.
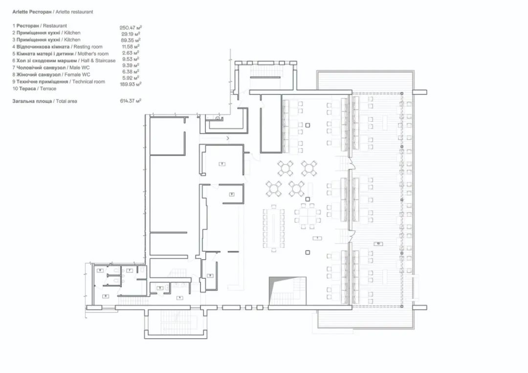
我们的目标是为餐厅的大型主厅创建一个设计,改善露台和解决入口组的设计。65号大厅的座位号码,在阳台上: 65。学校的总面积是600平方米。当创造这个空间时,现有的结构,如金属梁,混凝土板的房子被留下。这件事是为了在那个地方,建立工业主义的风格。开放空间的概念形成了餐厅内桌子和游客活动的规划方案的基础。使用的材料,同时空间的设计被创造,给参观者一个舒适的感觉,并使它成为有趣的成人和儿童。这就是为什么我们培育灰色的混凝土和中性色的木材这样明亮的口音,如椅子和酒吧和地板陶瓷的重点颜色。自然色彩和纹理被用于墙面装饰。
We had a goal to create a design for the large main hall of the restaurant, improve the terrace and solve the design of the entrance group. Number of seats in the main hall 65, on the terrace: 65. The total area of the institution is 600 m2. When creating this space, the existing structures such as metal beams, concrete slabs of the house were left. That thing was done to set the style of industrialism in the interior of that place. The concept of open space formed the basis of the planning scheme of tables and movement of visitors inside the restaurant. The materials that were used, while the space design was created, gave the visitors a comfort feeling and make it interesting for both adults and children. That's why we breed the gray colors of concrete and neutral color of wood with such bright accents, as chairs and accent colors of the bar and floor ceramics. Natural colors and textures were used in wall decoration.
2021年“勾勾手设计站”业务布局:
01-个人住宅开发
以潘小君自建房核心IP对外进行项目设计及施工服务,业务范围主要在广佛一带。
02-餐饮品牌设计及供应链建立:
以梦茹餐饮工作室为核心IP,专
注于新餐饮品牌的再造。
03-文旅版块中的网红民宿及移动民宿产品设计:
专注于网红民宿设计及运营、移动民宿产品开发。
团队揸FIT人介绍
往期话题
Past Topics Click
了解更多,点击以下专辑
▽
01-红砖屋专辑
02-集装项目
专辑
03-梦茹餐饮工作室专辑
04+渡假村&民宿参考
关于我们
→→
相关服务咨询→→→→
▽
勾勾手,是为解决设计者及中小型工作室、设计公司、民宿宿主对设计、建材、灯具、家具、民宿、施工等产品的落地方案问题的最终解决公司。集设计、产品开发、品牌运营、施工等一体化。
END
客服
消息
收藏
下载
最近





























