查看完整案例


收藏

下载
GGH设计机构
预计占用你30秒便可看完文章。。。。。
The GGH design agency estimates it will take you 60 seconds to read the article. . . . .
项目故事
Project Story
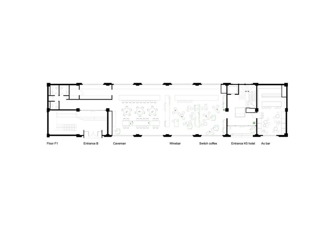
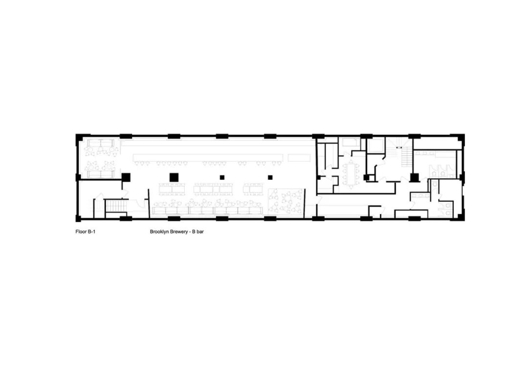
K5东京,位于一座改建的20世纪20年代的银行大楼里,坐落在东京证券交易所旁边,连接着传统的皇宫地区和时尚的东京东部。日语中的“ aimai”指导了 k5东京的概念。它的意思是含糊的,模糊的或者模棱两可的,这在日语中通常是一种积极的,诗意的意思。(这个术语表示擦除边界的好处。)K5东京的功能有意混合: 图书馆是酒吧,而咖啡馆兼作休息室,流入酒吧和餐厅。
K5 Tokyo, housed in a converted 1920s bank building, sits beside the Tokyo Stock Exchange and connects the traditional Imperial Palace area with hip Eastern Tokyo. The Japanese word ‘Aimai’ guides K5 Tokyo’s concept. It means vague, obscure or ambiguous, which in Japanese is often used in a positive, poetic sense. (The term denotes the benefits of erasing borders.) K5 Tokyo’s functions intentionally intermingle: The library is the bar, while the coffee shop doubles as a lounge, which flows into a wine bar and restauran
东京日本桥 kabutocho 附近相对缺乏绿色植物的启发,在 k5东京创造了一个绿色绿洲。各种各样的盆栽散布在室内。酒店有园丁,但没有传统的花园。
The Tokyo Nihonbashi Kabutocho neighbourhood’s relative lack of greenery inspired the creation of a ‘green oasis’ in K5 Tokyo. A multitude of potted plants spread out, aimai fashion, throughout the interiors. The hotel has a gardener but no traditional garden.
项目图纸Project drawing
K5东京不仅仅是一家酒店,它还是一个由创意餐厅、酒吧、聚集点,以及瑞典-极简主义-结合日本传统设计的微型综合体!
More than a hotel, K5 Tokyo emerges full force as a micro-complex of creative eateries, bars, gathering spots, and Swedish-minimalism-meets-Japanese-heritage design.
2021年“勾勾手设计站”业务布局:
01-个人住宅开发
以潘小君自建房核心IP对外进行项目设计及施工服务,业务范围主要在广佛一带。
02-餐饮品牌设计及供应链建立:
以梦茹餐饮工作室为核心IP,专
注于新餐饮品牌的再造。
03-文旅版块中的网红民宿及移动民宿产品设计:
专注于网红民宿设计及运营、移动民宿产品开发。
团队揸FIT人介绍
往期话题
Past Topics Click
了解更多,点击以下专辑
▽
01-红砖屋专辑
02-集装项目
专辑
03-梦茹餐饮工作室专辑
04+渡假村&民宿参考
关于我们
→→
相关服务咨询→→→→
▽
勾勾手,是为解决设计者及中小型工作室、设计公司、民宿宿主对设计、建材、灯具、家具、民宿、施工等产品的落地方案问题的最终解决公司。集设计、产品开发、品牌运营、施工等一体化。
END
客服
消息
收藏
下载
最近





















































