查看完整案例


收藏

下载
GGH设计机构
预计占用你30秒便可看完文章。。。。。
The GGH design agency estimates it will take you 60 seconds to read the article. . . . .
项目故事
Project Story
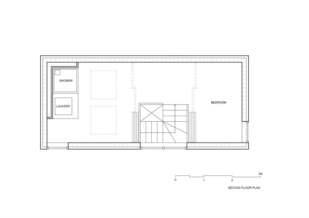
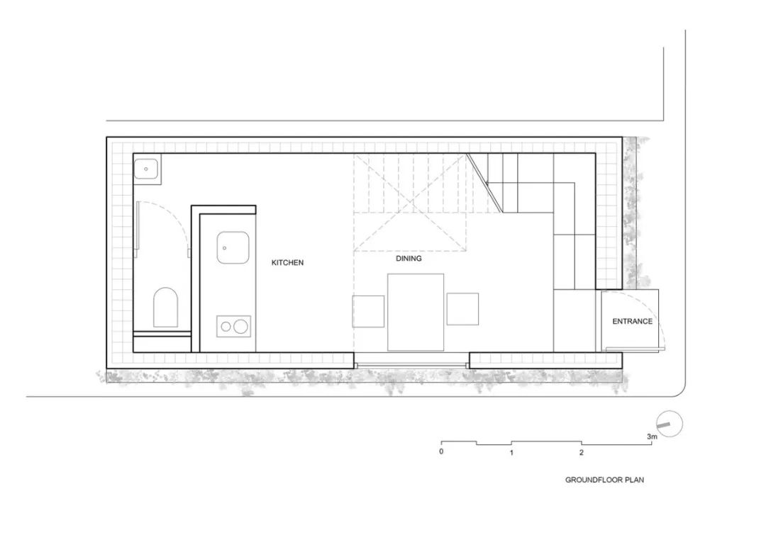
这座四口之家的小房子,位于东京一座人口稠密的城市,占地3米宽。Selma masic 与 sei hagenuma (haryu wood studio)合作,为她的家庭设计了这座房子。建筑师设想总面积为63平方米的三层住宅,每个区域有一个松散的规划。生活空间之间的水平差异被设计成没有严格界限的融合,根据居民的需要和一天中的时间为他们提供一系列活动的设置。
This small house for a family of four occupies a three-meter-wide plot in a densely-populated city in Tokyo. Selma Masic—in collaboration with Sei Haganuma (Haryu Wood Studio)—designed the house for her family home. The architects conceived the total area of 63 square meters as a three-story house with a loosely-defined program for each area. The difference in level between living spaces had been designed to merge without harsh boundaries, providing residents with settings for a range of activities depending on their needs and the time of day.
它的位置在街角允许内部和外部之间的独特关系,大多数的生活空间可以设计成暴露在开口,将自然光线带进来。面向街道的立面被设计成多孔的,没有极端封闭或极端开放。为了达到这个目的,窗帘被安装作为临时隔断,以便居民能够灵活地决定他们想要在视觉上将空间向外开放的程度。
Its location at the street corner allows a unique relationship between the inside and outside of the house; most of the living spaces could be designed to be exposed to openings that bring the natural light in. The façade facing the street was designed to be porous without being extremely closed or extremely open. For that purpose, curtains were installed as temporary partitions to give residents flexibility in determining how much they wanted to visually open the space to the outside.
固定元素,如厨房位于一楼,淋浴间位于三楼,我们看到一个垂直层次的空间功能: 它从一个公共空间变成一个亲密的空间,因为它变得更高。其目的是通过设计一个为居民量身定做并与他们的需求相适应的空间,来超越传统的生活方式。这种概念有助于将生活区域融入城市环境,而不是将它们分离为独立的实体。
With fixed elements such as the kitchen located on the ground floor and the shower stall on the third floor, we see a vertical gradation in space functions: it changes from a public space to an intimate space as it gets higher. The aim was to transcend the conventional way of living by designing a space that is tailored to the residents and evolves with their needs. This kind of concept helps integrate living areas into the urban context rather than disconnect them as separate entities.
结构墙和地板由预制雪松木板组成。面板由15x15厘米见方的木块制成,水平连接由无胶金属螺栓连接。这一特点使他们完全可回收,同时也允许拆卸的房子,并在其他位置重复使用的可能性。
The structural walls and floors are composed of prefabricated cedar wood panels. The panels are made of 15x15 cm square lumbers, connected horizontally by metal bolts without glue. This feature makes them completely recyclable while also allowing a possibility for the house to be disassembled and reused at the other location.
项目图纸Project drawing
由于这种材料符合日本城市防火条例的高标准,所以有可能暴露这种结构,并且不覆盖任何涂层。此外,热绝缘和雪松木板作为立面可以改善热性能。在日本城市,用这种建筑方法建造的三层楼房,是同类建筑中的首例。与日本传统的木屋建造方法相比,这种方法使用了两倍多的木材。预计这将成为储存二氧化碳和振兴日本森林工业的有效途径。
Since this material satisfies the high standards of fire protection regulations in urban Japan, it is possible to reveal the structure and leave it uncoated and uncovered. Additionally, thermal insulation and cedar wood planks improve thermal performance when used as a façade. A three-story house made using this construction method in urban Japan is the first of its kind. Compared to conventional wooden house construction methods in Japan, this method uses two times more lumber. This is expected to be an effective way of storing carbon dioxide and reinvigorating the forest industry in Japan.
2021年“勾勾手设计站”业务布局:
01-个人住宅开发
以潘小君自建房核心IP对外进行项目设计及施工服务,业务范围主要在广佛一带。
02-餐饮品牌设计及供应链建立:
以梦茹餐饮工作室为核心IP,专
注于新餐饮品牌的再造。
03-文旅版块中的网红民宿及移动民宿产品设计:
专注于网红民宿设计及运营、移动民宿产品开发。
团队揸FIT人介绍
往期话题
Past Topics Click
了解更多,点击以下专辑
▽
01-红砖屋专辑
02-集装项目
专辑
03-梦茹餐饮工作室专辑
04+渡假村&民宿参考
关于我们
→→
相关服务咨询→→→→
▽
勾勾手,是为解决设计者及中小型工作室、设计公司、民宿宿主对设计、建材、灯具、家具、民宿、施工等产品的落地方案问题的最终解决公司。集设计、产品开发、品牌运营、施工等一体化。
END
客服
消息
收藏
下载
最近









































