查看完整案例


收藏

下载
GGH设计机构
预计占用你30秒便可看完文章。。。。。
The GGH design agency estimates it will take you 60 seconds to read the article. . . . .
项目故事
Project Story
坐落在华盛顿圣胡安岛的原始海岸线附近,这是一个只有海上或空中可以到达的岛屿,坐落在星期五港口的咸水农场,这是一个时尚的精品酒店和162英亩野生和美丽的乡村度假胜地。该项目包括五个小客房和一个两层的房子,客户和他们的两个孩子。
Sited near the pristine shoreline of Washington’s San Juan Island – an island only accessible by sea or air – lies Saltwater Farm at Friday Harbor, a stylish boutique hotel and rural retreat on 162 wild and beautiful acres. The project includes five small guest cabins and a two-story house for the clients and their two children.
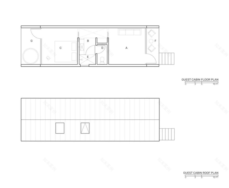
客栈,农场,家庭住宅都是夫妻俩长久以来的梦想,离开城市,过简单的生活,沉浸在大自然中。在邀请建筑师在这片土地上露营并探索这片土地之后,五个小木屋被精心安置在高耸的松树中,以确保客人的独处和隐私。虽然小屋的形式与精致的斯堪的纳维亚风格的极简主义完全相同,但每个小屋都提供了一种独特的感觉,定制的室内装饰和框架可以看到周围的景观。
The inn, farm, and family home are realizations of the couple’s longtime dream of leaving the city for a simpler life immersed in nature. After inviting the architects to camp on the land and explore the property, five small cabins were thoughtfully placed amidst towering pines to ensure solitude and privacy for guests. While the cabins are formally identical with a refined, Scandinavian-style minimalism, each one offers a distinctly different feeling with custom interior finishes and framed views to the surrounding landscape.
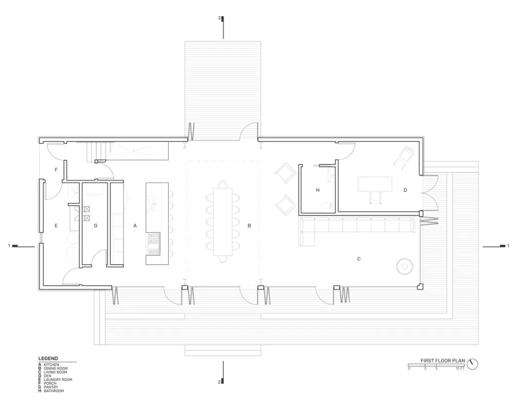
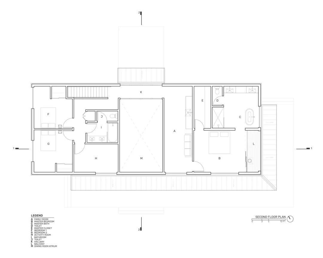
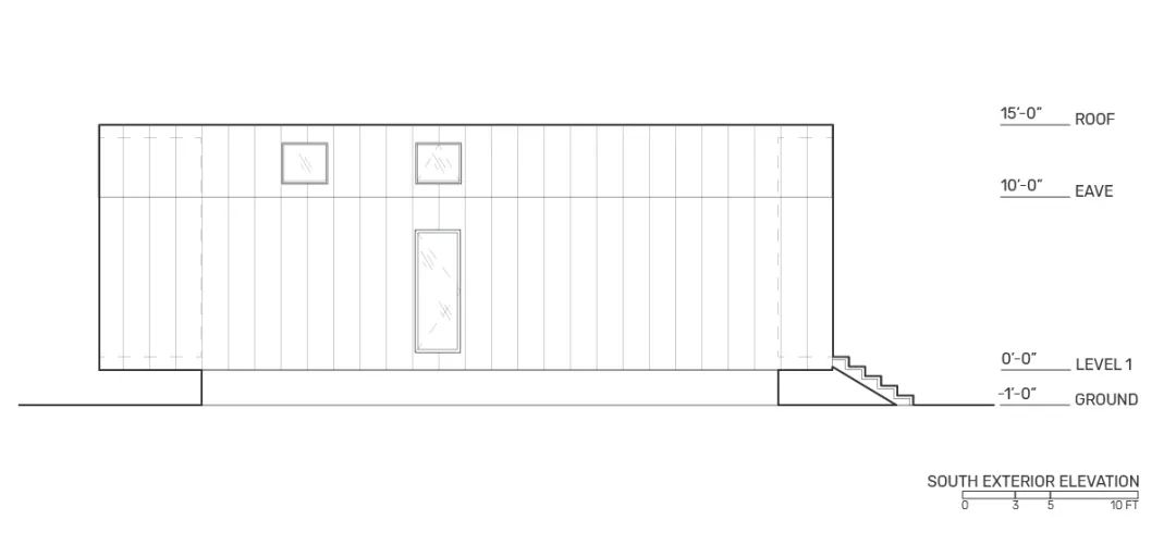
项目图纸Project drawing
主屋位于房产的中心位置,共享小屋简单、现代的设计语言,既是二层业主的家,也是一层客人的公共聚会空间。有着高高的天花板,开放的平面图和双折门,通向宽敞的甲板,主屋欢迎休息和放松,作为客栈的公共壁炉。
The main house, centrally located on the property, shares the simple, modern design language of the cabins and serves as both home to the owners on the second level, and as communal gathering space for guests on the first. With tall ceilings, an open floor plan and bi-fold doors that open to expansive decks, the main house welcomes respite and relaxation, acting as the communal hearth for the inn.
2021年“勾勾手设计站”业务布局:
01-个人住宅开发
以潘小君自建房核心IP对外进行项目设计及施工服务,业务范围主要在广佛一带。
02-餐饮品牌设计及供应链建立:
以梦茹餐饮工作室为核心IP,专
注于新餐饮品牌的再造。
03-文旅版块中的网红民宿及移动民宿产品设计:
专注于网红民宿设计及运营、移动民宿产品开发。
团队揸FIT人介绍
往期话题
Past Topics Click
了解更多,点击以下专辑
▽
01-红砖屋专辑
02-集装项目
专辑
03-梦茹餐饮工作室专辑
04+渡假村&民宿参考
关于我们
→→
相关服务咨询→→→→
▽
勾勾手,是为解决设计者及中小型工作室、设计公司、民宿宿主对设计、建材、灯具、家具、民宿、施工等产品的落地方案问题的最终解决公司。集设计、产品开发、品牌运营、施工等一体化。
END
客服
消息
收藏
下载
最近


















































