查看完整案例


收藏

下载
GGH设计机构
预计占用你30秒便可看完文章。。。。。
The GGH design agency estimates it will take you 60 seconds to read the article. . . . .
项目故事
Project Story
59是一家全新的咖啡店,由70年代的老建筑改建而成。与我们在岘港这个拥挤的城市,经常看到的现代化的咖啡馆不同,59咖啡馆隐藏在海防街一条小巷的尽头。
The 59 is a brand new coffee shop, which was converted from an old building from the 70s. Unlike the other café with a modern, up-to-date style that we usually catch in Da Nang- a crowded city, The 59 is hidden at the end of a small alley on Hai Phong street.
根据 viet-d 设计公司的说法,这栋老建筑从70年代就一直存在了,大约是10年前。然而,这座古老而庞大的房子很少被主人使用。事实上,尽管有三层楼高,但只有少数房间被租出去,其他的几年都没有动过。
According to the design company Viet-D, this old building has always been there since the 70s, which was approximately a decade ago. However, this ancient, bulky house was rarely used by the owner. In fact, despite having up to 3 floors, yet only few rooms were rented, and the others just remained untouched for several years.
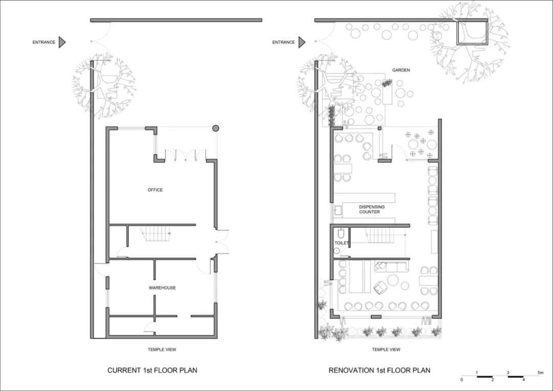
项目图纸Project drawing
人们可能会问,是什么让59在其他咖啡馆中脱颖而出?让我们回答。精致的设计和忠诚的建筑主人,小巷尽头的灰色混凝土老房子,最终变成了一个温暖友好的咖啡店,沿袭了复古风格。
People may ask, what makes The 59 stand out amongst several other cafe? Let us answer. With a delicate design and an owner as a devoted architecture, the old house with gray concrete at the end of the alley eventually turns into a warm, friendly coffee shop, which follows the retro style.
2021年“勾勾手设计站”业务布局:
01-个人住宅开发
以潘小君自建房核心IP对外进行项目设计及施工服务,业务范围主要在广佛一带。
02-餐饮品牌设计及供应链建立:
以梦茹餐饮工作室为核心IP,专
注于新餐饮品牌的再造。
03-文旅版块中的网红民宿及移动民宿产品设计:
专注于网红民宿设计及运营、移动民宿产品开发。
团队揸FIT人介绍
往期话题
Past Topics Click
了解更多,点击以下专辑
▽
01-红砖屋专辑
02-集装项目
专辑
03-梦茹餐饮工作室专辑
04+渡假村&民宿参考
关于我们
→→
相关服务咨询→→→→
▽
勾勾手,是为解决设计者及中小型工作室、设计公司、民宿宿主对设计、建材、灯具、家具、民宿、施工等产品的落地方案问题的最终解决公司。集设计、产品开发、品牌运营、施工等一体化。
END
客服
消息
收藏
下载
最近

































