查看完整案例


收藏

下载
GGH设计机构
预计占用你30秒便可看完文章。。。。。
The GGH design agency estimates it will take you 60 seconds to read the article. . . . .
项目故事
Project Story
这个项目包括马德里第三家面包房的新设计,该面包房生产面包和蛋糕。客户认为每一个面包房都应该是独一无二的,与众不同的,唯一具体的设计要求就是使用它们的颜色——洋红。
Text description provided by the architects. This project consists of a new design of a third bakery in Madrid which makes bread and cakes. The client believes that every bakery should be unique and different to the other ones and the only specific design request is the use of their coorporate color, the magenta.
该建筑位于阿尔卡拉德哈纳雷斯镇的历史中心。面包店在一栋有趣的历史建筑的底层。一旦我们拆除了内墙,清理了外墙,我们意识到我们不需要发明那么多。由于历史原因,现存的砖墙本身就赋予了这个空间巨大的个性。
The building is located in the historic centre of the town of Alcala de Henares. The bakery is on a ground floor of an interesting historic building. As soon as we demolished the internal walls and cleaned up the façade, we realised that we didn’t have to invent that much. With their History, the existing brick walls spoke by themselves giving the space a huge personality.
为了达到当代的设计,这是我们最初的目标,我们必须找到一个元素,具有强烈的特点,可以与150年历史的框架墙的一致性竞争,同时又不会使它们黯然失色。因此,我们创造了一个艺术装置: 超过12,000个木制品红棒,悬挂在天花板上。这个装置吸引了所有人的目光!
In order to achieve a contemporary design, which was our initial objective, we had to find an element with a strong character that would compete with the consistency of the 150-year-old-framed walls without eclipsing them. Therefore we created an artistic installation: more than 12.000 wooden magenta sticks that are hanging from the ceiling. This installation attracks everyone’s looks !
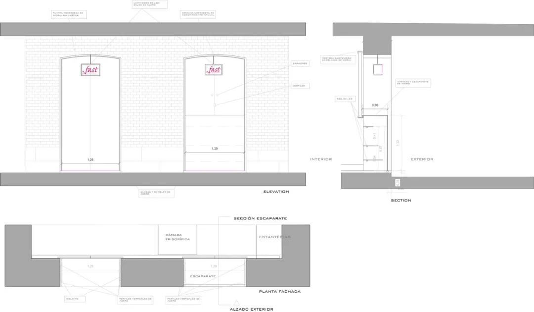
项目图纸Project drawing
此外,建筑师和设计师 virginia del barco 设计了照明,家具的一部分,比如椅子,凳子,架子,吧台,白板,外墙上的灯箱等等,在照片上,你可以欣赏不同的细节,以及高品质的微水泥人行道,它们给空间带来了精致的优雅。
In addition, tha architect and designer, Virginia del Barco, has designed the lighting, a part of the furniture, like the chairs, the stools, the shelves, the bartop, the whiteboards, the light boxes in the façades, etc. On the pictures, you can appreciate the different details of the claddings, as well as the high quality microcement pavements which gives the space a refined elegance.
2021年“勾勾手设计站”业务布局:
01-个人住宅开发
以潘小君自建房核心IP对外进行项目设计及施工服务,业务范围主要在广佛一带。
02-餐饮品牌设计及供应链建立:
以梦茹餐饮工作室为核心IP,专
注于新餐饮品牌的再造。
03-文旅版块中的网红民宿及移动民宿产品设计:
专注于网红民宿设计及运营、移动民宿产品开发。
团队揸FIT人介绍
往期话题
Past Topics Click
了解更多,点击以下专辑
▽
01-红砖屋专辑
02-集装项目
专辑
03-梦茹餐饮工作室专辑
04+渡假村&民宿参考
关于我们
→→
相关服务咨询→→→→
▽
勾勾手,是为解决设计者及中小型工作室、设计公司、民宿宿主对设计、建材、灯具、家具、民宿、施工等产品的落地方案问题的最终解决公司。集设计、产品开发、品牌运营、施工等一体化。
END
客服
消息
收藏
下载
最近







































