查看完整案例


收藏

下载
⇧
点击上方
勾勾手设计站
GGH设计机构
预计占用你60秒便可看完文章。。。。。
The GGH design agency estimates it will take you 60 seconds to read the article. . . . .
项目故事
Project Story
这个项目是一个预制的,离网的单户住宅,由 hb + 建筑师事务所的研发部门生产,叫做 box lab。其目的是探索建设效率,并产生一个项目,抵御气候突发事件。作为 box lab 的建筑师和创始人,美国建筑师协会(aia)首先制定了雄心勃勃的目标,以实现一个真正的离网项目,该项目的所有功能仅依赖于可再生能源。这个项目是一个零能耗,零碳排放的住宅,配有 r-50绝缘材料,以进一步节约能源。
The project is a prefabricated, off-grid single-family residence produced by the R&D arm of hb+a Architects called Box Lab. The intent was to explore construction efficiencies and produce a project resilient to climate emergencies. Hafsa Burt, AIA as the architect and founder of Box Lab set ambitious goals upfront to achieve a truly off-grid project that relies only on renewable energy for all its functions. The project is a zero energy, zero carbon home with R-50 insulation to further conserve energy.
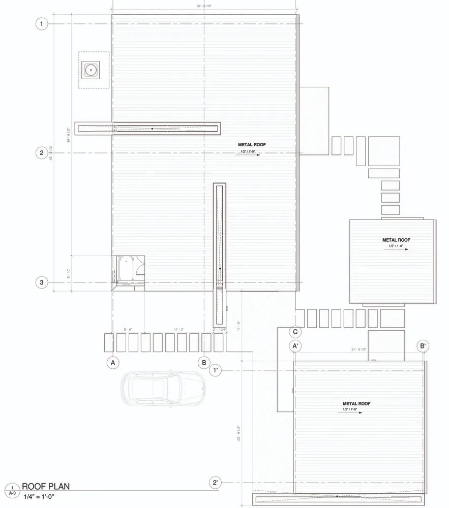
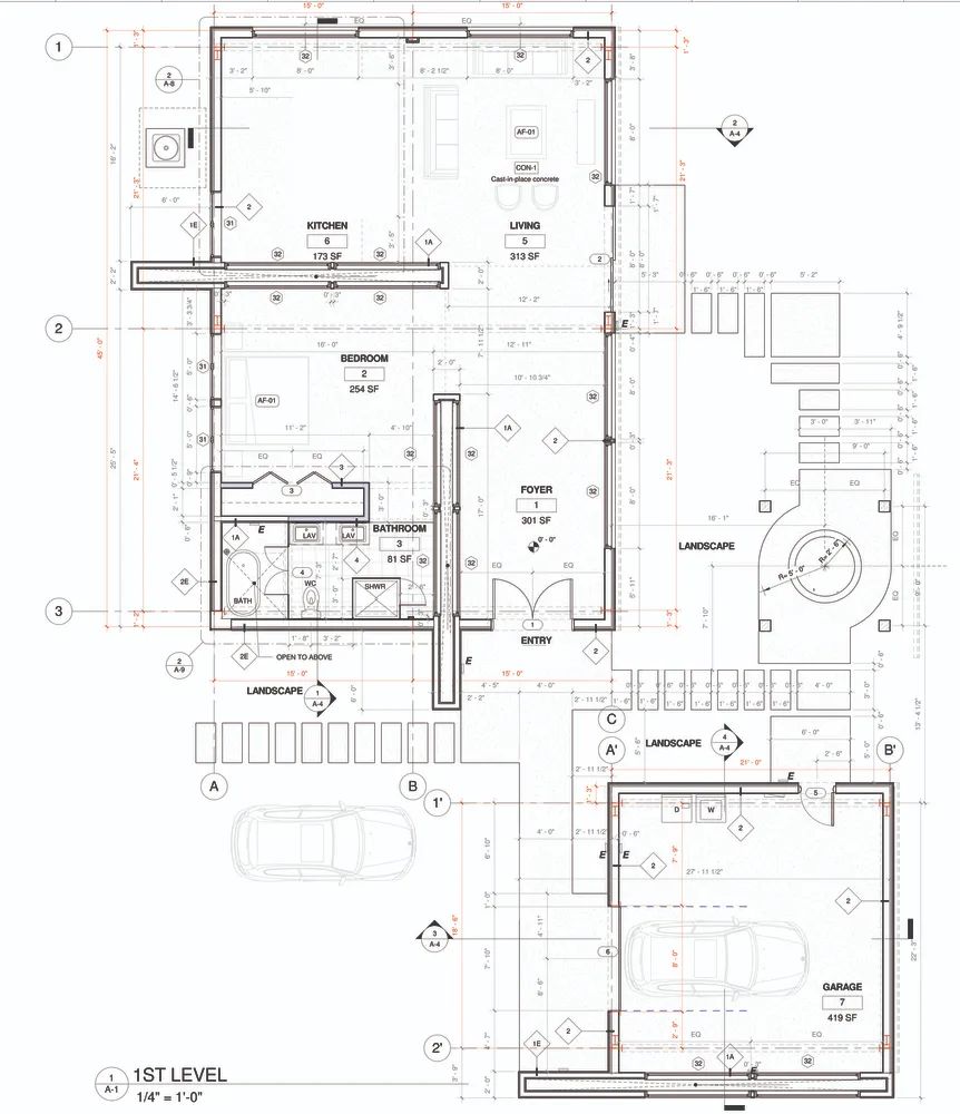
02+项目图纸Project drawing
在加利福尼亚的电气化任务之前,这个项目被证明是一个成功的,不依赖化石燃料的电气化的实例。室内探索极简主义建筑形式,通过光线和色彩,它与土地的关系,以及广阔的视野来激发灵感。设计的重点是空间和资源的保护,抓住一个访客,一旦他们进入家中。该项目是行业同行和气候活动家的避难所。这个地方的生态系统也得到了保护,大部分9英亩的土地依然保持着透明,欢迎野生动物的到来。地形被充分利用,用于排水,视野和朝向。现存的一条小溪也没有受到影响。该项目有一个专利申请其独特的自定义功能,并已定制的网站的独特特点,以最佳的可持续性。
Ahead of electrification mandates in California, the project proves to be a successful, working example of electrification not dependent on fossil fuels. The interior explores minimalist architectural form to inspire through light and color, its relationship to the land, and sweeping views. The design focus is on space and resource preservation that grasps a visitor as soon as they enter the home. The project serves as a retreat for industry peers and climate activists. The site’s ecosystem is also preserved and most all of the 9 acres remain pervious and welcome to wildlife. The topography was used to the fullest for drainage, views, and orientation. An existing creek on the site has also been left untouched. The project has a patent-pending for its unique custom features and has been customized to the site’s unique characteristics for optimum sustainability.
2021年“勾勾手设计站”业务布局:
0-分享
01-个人住宅开发
以潘小君自建房核心IP对外进行项目设计及施工服务,业务范围主要在广佛一带。
02-餐饮品牌设计及供应链建立:
以梦茹餐饮工作室为核心IP,专
注于新餐饮品牌的再造。
03-文旅版块中的网红民宿及移动民宿产品设计:
专注于网红民宿设计及运营、移动民宿产品开发。
团队相应版块揸FIT人介绍
自建房揸FIT人(主业)
自建房施工图制作服务
民宿相关服务咨询→→→→
餐饮相关服务咨询→→→→
餐饮版块业务负责人
勾勾手自媒体矩阵列→→→→→→
勾勾手,是为解决设计者及中小型工作室、设计公司、民宿宿主对设计、建材、灯具、家具、民宿、施工等产品的落地方案问题的最终解决公司。集设计、产品开发、品牌运营、施工等一体化。
往期话题
Past Topics Click
了解更多,点击以下专辑
▽
01-红砖屋专辑
02-集装项目
专辑
03-梦茹餐饮工作室专辑
04+渡假村民宿参考
▽
整理中
END
客服
消息
收藏
下载
最近











































