查看完整案例


收藏

下载
⇧
点击上方
勾勾手设计站
GGH设计机构
预计占用你90秒便可看完文章。。。。。
The GGH design agency estimates it will take you 90 seconds to read the article. . . . .
项目故事
Project Story
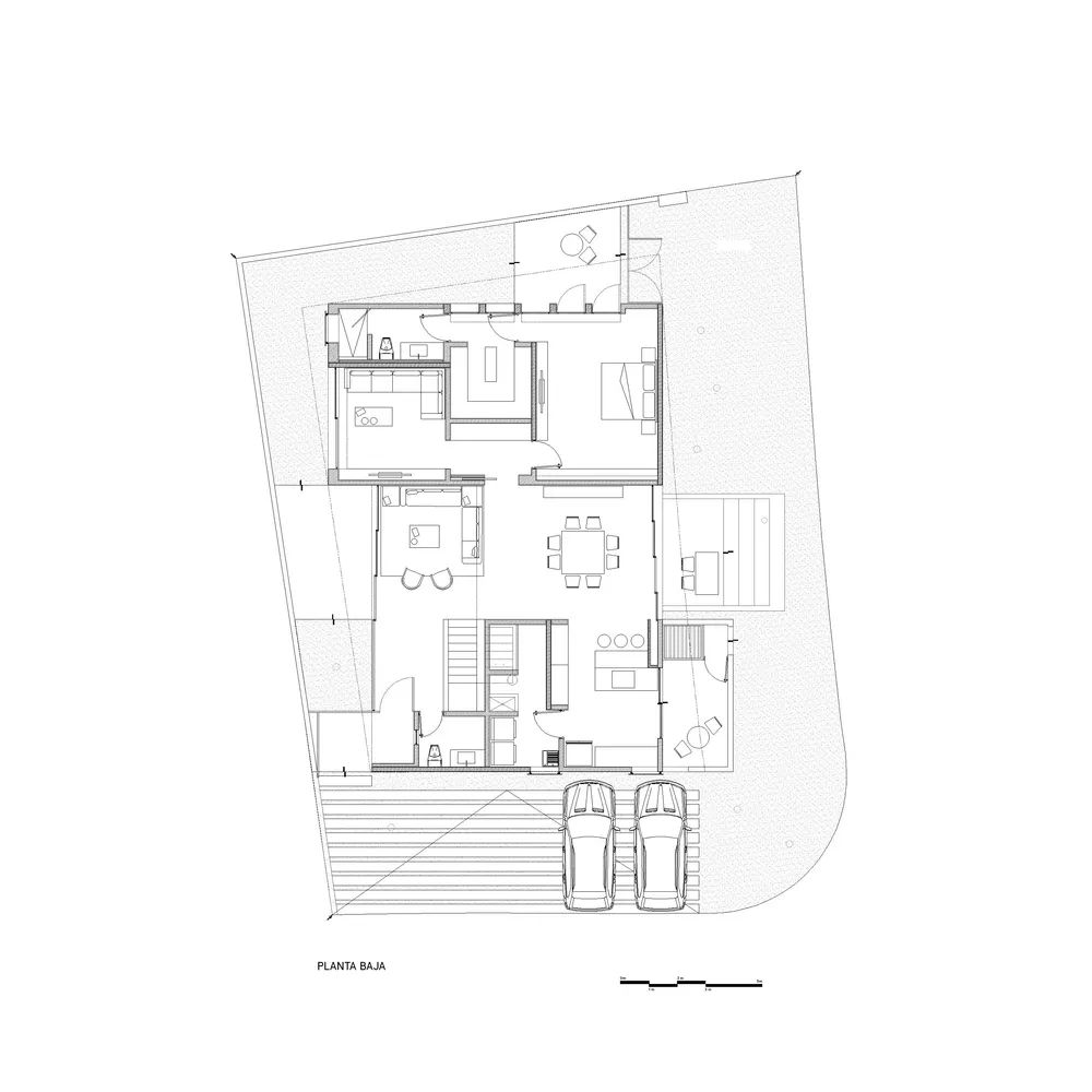
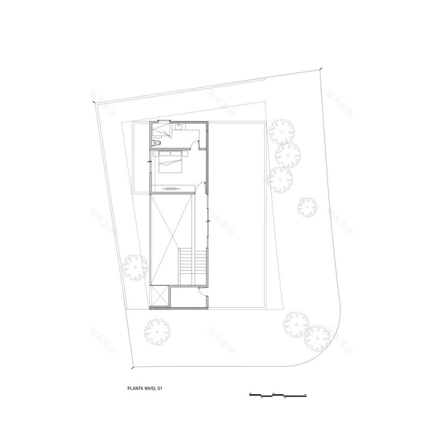
该项目位于瓜达拉哈拉都会区南部的郊区住宅开发区,由两个相互重叠的体量组成,满足了双重需求: 私人用途和服务。一方面,体量之间的开放性利用了低密度住宅环境中天气条件和阳光的优势,满足了通风、照明和视觉效果的需要。另一方面,居民的隐私成为优先事项,从而减缓了服务区向外部的暴露。
Located within a suburban residential development in the south of the Guadalajara Metropolitan area, the project is composed of two overlapping volumes that satisfy dual needs: private use and services. On one hand, the openness between the volumes harnesses the advantages of the weather conditions and sunlight in a low-density residential context, satisfying the ventilation, lighting, and visuals needs. On the other hand, the privacy of the residents becomes a priority and thus moderates the exposure of the service areas towards the exterior.
02+项目图纸
Project drawing
2021年“勾勾手设计站”业务布局:
0-分享
01-个人住宅开发
以潘小君自建房核心IP对外进行项目设计及施工服务,业务范围主要在广佛一带。
02-餐饮品牌设计及供应链建立:
以梦茹餐饮工作室为核心IP,专
注于新餐饮品牌的再造。
03-文旅版块中的网红民宿及移动民宿产品设计:
专注于网红民宿设计及运营、移动民宿产品开发。
团队相应版块揸FIT人介绍
自建房揸FIT人(主业)
自建房施工图制作服务
民宿相关服务咨询→→→→
餐饮相关服务咨询→→→→
餐饮版块业务负责人
勾勾手自媒体矩阵列→→→→→→
勾勾手,是为解决设计者及中小型工作室、设计公司、民宿宿主对设计、建材、灯具、家具、民宿、施工等产品的落地方案问题的最终解决公司。集设计、产品开发、品牌运营、施工等一体化。
往期话题
Past Topics Click
了解更多,点击以下专辑
▽
01-红砖屋专辑
02-集装项目
专辑
03-梦茹餐饮工作室专辑
▽
整理中
END
客服
消息
收藏
下载
最近



































