查看完整案例


收藏

下载
⇧
点击上方
勾勾手设计站
GGH设计机构
预计占用你90秒便可看完文章。。。。。
The GGH design agency estimates it will take you 90 seconds to read the article. . . . .
项目故事
Project Story
该项目包括能源效率升级、结构改造,以及一栋60年代住宅建筑的整体改造,该住宅可分为三个独立的公寓。从原来的结构,我们可以欣赏到它令人印象深刻的体积相对于周围的,住宅区的山丘上的伊芙瑞亚。该项目突出了这一功能,消除了现有建筑的所有悬挑;固体和空隙被重新设计为大方形洞,屋顶被改造成了一个有用的楼面区域——一个私人屋顶,从那里你可以欣赏到阿尔卑斯山和艾夫雷的塞拉冰碛 。
Text description provided by the architects. The works consist of energy efficiency upgrading, structural renovation, along with the total restyling of a residential building from the Sixties, which can be divided into three independent apartments. From the original structure, we can appreciate its impressive volume in relation to the surrounding, residential area on the hills of Ivrea. The project highlights this feature by removing all the overhangs from the existing building; solids and voids are redesigned with large squared holes and the roof is transformed into a useful floor area – a private rooftop from where you can enjoy a high view over the Alpes and the Serra Moraine of Ivrea.
为了提高它的抗震能力,只留下了骨架并进行了加固。能源效率升级包括一个外部保温系统,由轻质水泥板覆盖,然后粗略地涂上天然石灰砂浆。城堡般的外观,由于其庞大的存在,是与它的大透明洞形成对比。它与地面的严重关系被一块巨大的岩石所强调,而建筑就坐落在这块岩石上,南侧则是空旷和高度加倍的地方。使岩石从所有楼层可见。
Only the skeleton was left and then reinforced in order to improve its resistance to earthquakes. The energy efficiency upgrades include an external insulation system covered by lightweight cement boards, which were then roughly plastered with natural lime mortar. The fortress-like appearance of the building, due to its massive presence, is in contrast with its large transparent holes. Its severe relationship to the ground is emphasized by a large rock, on which the building is sited, and a play of voids and double heights on the southern side renders the rock visible from all floors.
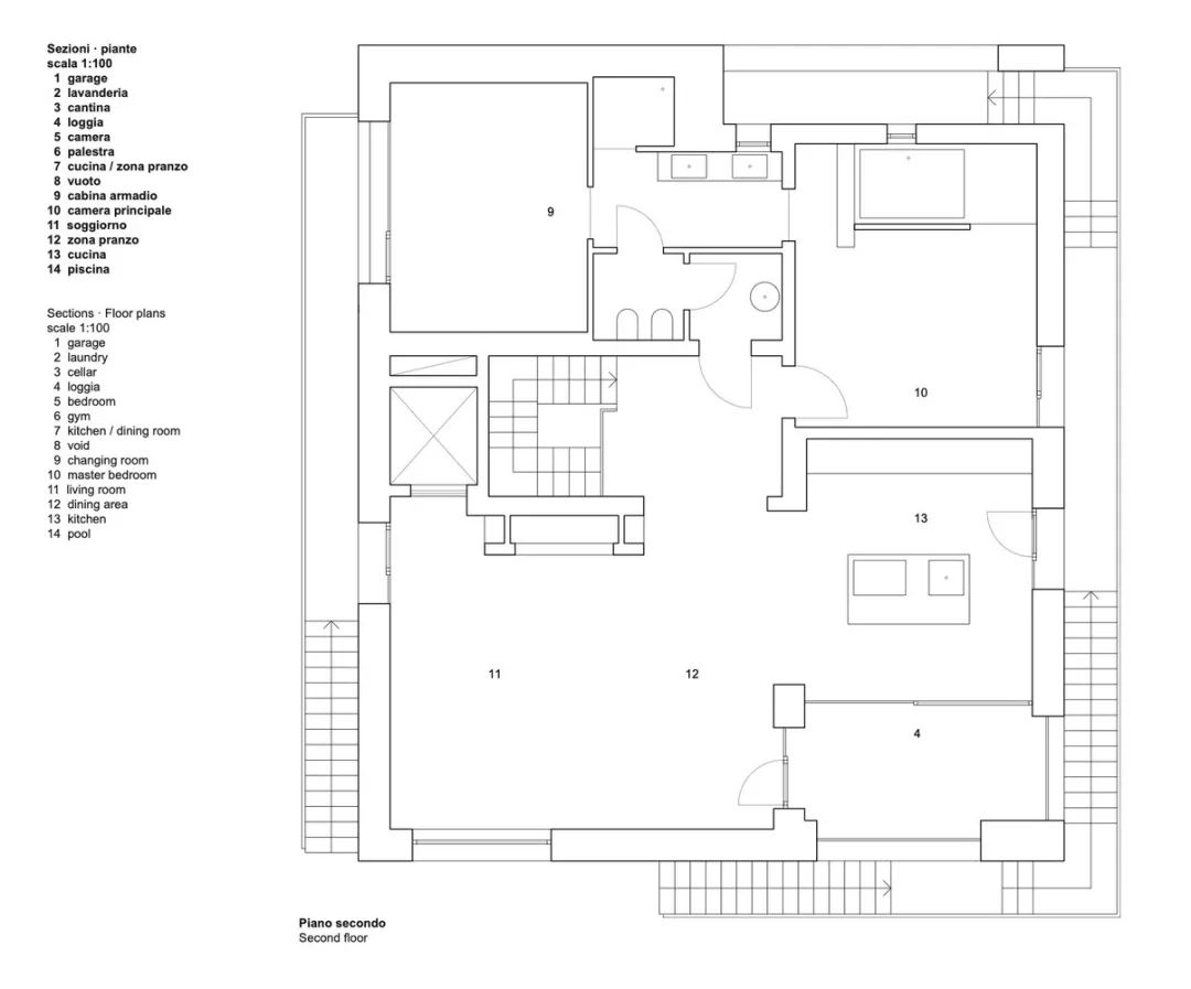
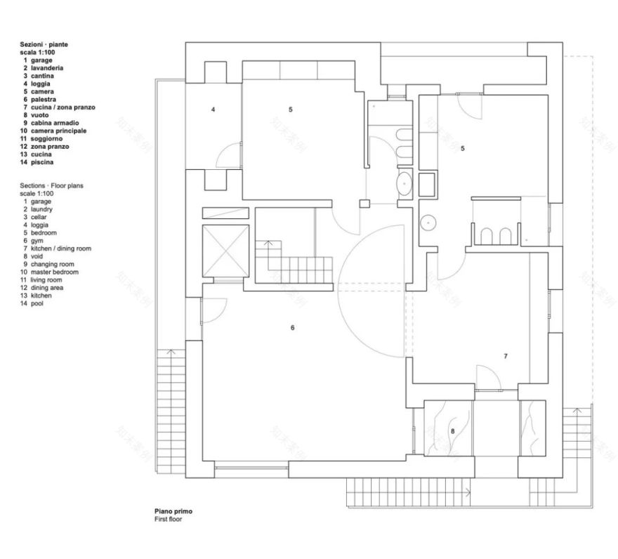
为了满足当今动态社会对灵活性的要求,建筑可以分为三个单元:三个公寓,三个入口,三层外立面。一楼有一个车库和一个岩窖。所有的公寓都可以通过电梯和内部楼梯井连接,而外部的金属楼梯使公寓和屋顶独立可达。在一楼,两个小型公寓共享一个生活空间,这是可能的重新配置,如果需要感谢一个180度旋转木质面板。
In order to fulfill the requirements of flexibility imposed by today’s dynamic society, the building can be divided into three units: three apartments, three entrances, three finishes on the façade. The ground floor is occupied by a garage and a rock cellar. All the apartments can be connected through the elevator and the interior stairwell, whereas the external metal stairs make the apartments and the rooftop independently accessible. On the first floor, two small-sized apartments share a living space, which is possible to reconfigure if need be thanks to a 180-degree rotating wooden panel.
主公寓位于顶层,北侧的屋顶被森林树木环绕;主卧室的墙壁由未经处理的钢筋混凝土制成,不仅作为现有结构的主要支撑,还作为屋顶上的游泳池。流体内部空间的墙壁大致上与外部相连,地板用抛光的混凝土和镶木复合地板点缀。由直线造成的严峻气氛被定制的家具、木门和窗户、绿色森林的大片景色和截取建筑不同层次的光线所软化。
The main apartment is located on the top floor and the rooftop is surrounded by forest trees on the northern side; the walls of the master bedroom are made of raw, reinforced concrete, acting as the main support of not only the existing structure, but also the swimming pool on the rooftop. The walls of the fluid interior spaces are roughly plastered in continuity with the exterior and the floors are in polished concrete punctuated with sections of grinded concrete and parquet. The severe atmosphere created by straight lines is softened by custom-made furnishing, wooden doors and windows, as well as large views of the green forest and light cuts intercepting the different levels of the building
02+项目图纸
Project drawing
品牌餐饮揸FIT人
2020年“勾勾手设计站”业务布局:
分享
个人住宅开发
以潘小君自建房核心IP对外进行项目设计及施工服务,业务范围主要在广佛一带。
软装设计
专注于住宿及民宿项目配套服务。
餐饮品牌设计及供应链建立:
以梦茹餐饮工作室为核心IP,专
注于新餐饮品牌的再造。
网红民宿及移动民宿产品设计:
专注于网红民宿设计及运营、移动民宿产品开发。
团队相应版块揸FIT人介绍
自建房揸FIT人(主业)
施工图制作服务
勾勾手传媒团队
出品,设计参考尽在勾勾手设计站!
民宿相关服务咨询→→→→
餐饮相关服务咨询→→→→
餐饮版块业务负责人
勾勾手自媒体矩阵列→→→→→→
勾勾手,是为解决设计者及中小型工作室、设计公司、民宿宿主对设计、建材、灯具、家具、民宿、施工等产品的落地方案问题的最终解决公司。集设计、产品开发、品牌运营、施工等一体化。
往期话题
Past Topics Click
了解更多,点击以下专辑
▽
01-红砖屋专辑
02-集装项目
专辑
03-德国住宅专辑
04-墨西哥住宅专辑
05-泰国住宅专辑
06-梦茹餐饮工作室专辑
▽
整理中
END
客服
消息
收藏
下载
最近

















































