查看完整案例


收藏

下载
⇧
点击上方
勾勾手设计站
GGH设计机构
预计占用你90秒便可看完文章。。。。。
The GGH design agency estimates it will take you 90 seconds to read the article. . . . .
项目故事
Project Story
Casa elisa 是一个独立家庭住宅,位于阿根廷科尔多瓦西南部,一个叫做 san clemente 的山区。从项目一开始,我们就与客户合作,进行一个客户非常积极参与的设计过程。
Casa Elisa is a single-family home located in a mountainous area called San Clemente, south west of Cordoba, Argentina. From the beginning of the project we have worked together with the client, carrying out a design process in which the client's participation was very active.
选择植入是为了寻找整片土地的最高点,这片土地由7公顷的山脉组成,周边有原生森林和一条小溪。
The implantation was chosen looking for the highest point of the entire land, which consists of 7 hectares of mountain ranges, with native forest and a stream that defines it in a large part of its perimeter.
通过这种方式,我们实现了居民可以享受美丽的山景,优先考虑房子的主要房间。
In this way we achieve that the inhabitant can enjoy beautiful views of the mountains, giving priority to the main rooms of the house.
它的朝向特别注意,采用“ u”形朝向北方,在冬天获得阳光,通过覆盖着殖民时期粘土瓷砖的画廊遮挡夏日的阳光。
Special care was taken in its orientation, making a “U” -shaped approach that opens to the north, gaining sun in winter and covering itself from the summer sun through a gallery covered with colonial clay tiles.
整个房子在一楼,通过外部楼梯可以到达露台。明显的地中海风格的灵感来自伊比沙岛的建筑,白墙,波浪形的灰泥和圆形的边缘。
The entire house is on the ground floor and has access to a terrace through an external staircase.The markedly Mediterranean style was inspired by Ibizan architecture, with white walls, with wavy plaster and rounded edges.
太阳能与太阳能电池板一起用于电力消耗,并与太阳能热水箱一起加热住宅内的生活用水。
Solar energy was used with photovoltaic panels for electricity consumption, and with a solar hot water tank to heat the domestic water in the house.
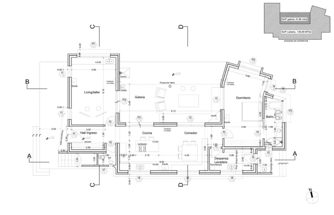
02+项目图纸
02 +Project drawing
品牌餐饮揸FIT人
2020年“勾勾手设计站”业务布局:
分享
个人住宅开发
以潘小君自建房核心IP对外进行项目设计及施工服务,业务范围主要在广佛一带。
软装设计
专注于住宿及民宿项目配套服务。
餐饮品牌设计及供应链建立:
以梦茹餐饮工作室为核心IP,专
注于新餐饮品牌的再造。
网红民宿及移动民宿产品设计:
专注于网红民宿设计及运营、移动民宿产品开发。
团队相应版块揸FIT人介绍
自建房揸FIT人(主业)
施工图制作服务
勾勾手传媒团队
出品,设计参考尽在勾勾手设计站!
民宿相关服务咨询→→→→
餐饮相关服务咨询→→→→
餐饮版块业务负责人
勾勾手自媒体矩阵列→→→→→→
勾勾手,是为解决设计者及中小型工作室、设计公司、民宿宿主对设计、建材、灯具、家具、民宿、施工等产品的落地方案问题的最终解决公司。集设计、产品开发、品牌运营、施工等一体化。
往期话题
Past Topics Click
了解更多,点击以下专辑
▽
01-红砖屋专辑
02-集装项目
专辑
03-德国住宅专辑
04-墨西哥住宅专辑
05-泰国住宅专辑
06-梦茹餐饮工作室专辑
▽
整理中
END
客服
消息
收藏
下载
最近

















































