查看完整案例


收藏

下载
⇧
点击上方
勾勾手设计站
GGH设计机构
预计占用你90秒便可看完文章。。。。。
The GGH design agency estimates it will take you 90 seconds to read the article. . . . .
项目故事
Project Story
新屋位于清迈市早期住宅项目(建于1960年左右) ,邻近清迈最重要的山脉。不仅是因为地理位置,还因为两位热爱和平、自然和隐私的主人的个性,可以被看作是设计这栋房子的重要因素。设计的主要目的是回应两个项目的背景-创造一个可以欣赏自然的观点-和完整的隐私的房子。
NT house is located in the early housing project (established around 1960) in Chiang Mai city, which is in the vicinity of Doi Suthep (the most important mountain of Chiang Mai). Not only because of the location wise, but also because the personality of two owners who love peace, nature and privacy can be regarded as significant factors in designing this house. The design was primarily chosen to respond to both project contexts - to create a view that can appreciate nature - and the complete privacy of the house.
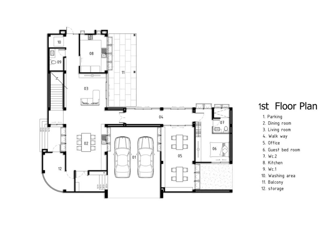
房子本身有一个 l 形的建筑,里面有一个很大的绿色空间。这个两层的房子是由钢筋混凝土结构建成的,一楼包括连接入口大厅和综合起居-餐厅的插入式停车场。一端是厨房,另一端是书房和套房客房。房子的另一个重要特征是楼梯大厅。它也可以作为一个双层空间大厅,在二楼移动墙体的体量下面有间隙。它可以让空气流通。
The house itself has an L-shaped building with a large green space inward. This two-story houses are built from reinforced concrete structures, where the ground floor consists of the plugged-in parking space connecting to the entrance hall and the integrated living-dining room. On the one end it continues to the kitchen, while another end goes to the studying room and a suite guest bedroom. Another important feature of the house is the staircase hall. It functions also as a double space hall with the gap beneath the volume of the shifted wall on the second floor. It allows the air can be circulated through.
这个缺口——由移动的墙壁创造——为这个巨大的房子提供了这样一个交替堆叠的效果,同时缺口成为通道,让灯光从上面照射到夜晚。当灯光照射到外墙上时,会产生不同的感觉。二楼楼梯末端的景观通向凹陷在圆形墙壁中的佛龛,营造出一种平静和宁静的感觉。然后我们进入二楼的卧室,外面有一个阳台,可以种树和晨练。
This gap – created by the shifted wall – offers such an alternated stack effect for this massive house, meanwhile the gap becomes the channel to let the lights from above to shine through at night. It creates the different feeling when the lights are pouring out onto the external wall. The view at the end of the second floor stairs leads to the Buddha shelf sunken in a circular shape wall – to create a sense of calm and serene. And then we enter the second floor bedroom, and outside with a balcony for planting trees and morning exercise.
因为我们的目标是最大限度地利用绿色空间,所以把绿色空间放在后面似乎是最好的选择。它也允许我们把房子建在靠近后退边界的地方,在那里房子的墙壁被整合起来,同时起到围栏的作用。对我们来说,这是一个很好的机会,来创建一个坚固的块状建筑的形状,墙面可以成为树木和建筑本身有趣的阴影的背景。不透明的形状已经被夜晚的灯光所取代,看起来房子的表达方式每时每刻都在改变。
Because we aim to maximize the use of green space, so by locating green space at the back seems to be the best option. It also allows us to build the house close to the set-back boundary, where the walls of the house are integrated and function as a fence all at once. For us, it was a great opportunity to create a shape of the solid block building, where the wall surface can become the backdrop of the playful shadow of the tree and of the building itself. Opaque shapes have been replaced with the light at night, it seems like the expression of the house have changed in every moment.
02+项目图纸
02 +Project drawing
品牌餐饮揸FIT人
2020年“勾勾手设计站”业务布局:
分享
个人住宅开发
以潘小君自建房核心IP对外进行项目设计及施工服务,业务范围主要在广佛一带。
软装设计
专注于住宿及民宿项目配套服务。
餐饮品牌设计及供应链建立:
以梦茹餐饮工作室为核心IP,专
注于新餐饮品牌的再造。
网红民宿及移动民宿产品设计:
专注于网红民宿设计及运营、移动民宿产品开发。
团队相应版块揸FIT人介绍
自建房揸FIT人(主业)
施工图制作服务
勾勾手传媒团队
出品,设计参考尽在勾勾手设计站!
民宿相关服务咨询→→→→
餐饮相关服务咨询→→→→
餐饮版块业务负责人
勾勾手自媒体矩阵列→→→→→→
勾勾手,是为解决设计者及中小型工作室、设计公司、民宿宿主对设计、建材、灯具、家具、民宿、施工等产品的落地方案问题的最终解决公司。集设计、产品开发、品牌运营、施工等一体化。
往期话题
Past Topics Click
了解更多,点击以下专辑
▽
01-红砖屋专辑
02-集装项目
专辑
03-德国住宅专辑
04-墨西哥住宅专辑
05-泰国住宅专辑
06-梦茹餐饮工作室专辑
▽
整理中
END
客服
消息
收藏
下载
最近


































