查看完整案例


收藏

下载
⇧
点击上方
勾勾手设计站
GGH设计机构
预计占用你90秒便可看完文章。。。。。
刘老师说
住宅站:自建房设计及软装配套相关
文旅站:
文旅
项目设计及产品相关
餐饮站:餐饮设计及软装配套相关
02-项目故事
大城市的大多数人,尤其是泗水的大多数人,梦想着城市生活,在那里他们可以拥有一个体面的家,靠近中央商务区,价格合理。为了回应这个问题,我们精心设计了 r 微型住宅,提供了一个功能齐全、舒适的住宅,适合在有限的土地上使用,并且位于泗水人口最稠密的地区之一。
R 微型住房是一个小型住房综合体,只有五个单元,有两种不同类型。它坐落在泗水东郊人口稠密的村庄之一,面积为12米 x29.8米。考虑到它的地理位置刚好离开拥挤的主要交通,街道的可达性和安全性,以及当前临近的房屋,因此我们决定将新的立面概念与简单而紧凑的质量结合起来,这样建造过程将花费更少的时间和高效的成本!
我们选择了现代的最简设计方法,用基本的几何形体和单色的配色方案来设计微型住宅。由于该地区的特性,我们发展了坚实和内向的群众,作为对周围的安全和便利问题的回应。最终,这个单色的外观很好地区分了住宅综合体与现有的邻近房屋,并有望成为其未来居民的生活方式的代表,简单,功能和有效的综合开放平面内部布局。
有限的土地往往成为一个主要问题,当涉及到设计一个健康的家园。R 的微型住宅尝试尽可能多地吸收自然光线,通过策略性地布置一些相当大的开口,实现有效的交叉通风,并将内部庭院融入室内布局规划。每个单元都有一个私人停车场,以及一系列精心制作但易于维护的装修材料,无疑为这个小型住宅增添了价值。所有这些特征完善了这栋房子独特的空间体验。
考虑到它位于泗水人口最密集的地区之一,因此在这片狭小的土地上种植园林和庭院可以被视为额外的收获。在 r 微型住宅综合体中,每种类型的住宅的布局都被设计成容纳一个大小合适的庭院,这是支持内向型住宅内交叉通风系统的重要工具之一。最终,r 微型住宅可以被认为是一个先例,即不管有限的空间和预算,一个独特的外观设计与合理的优质建筑材料和饰面是绝对可行的。
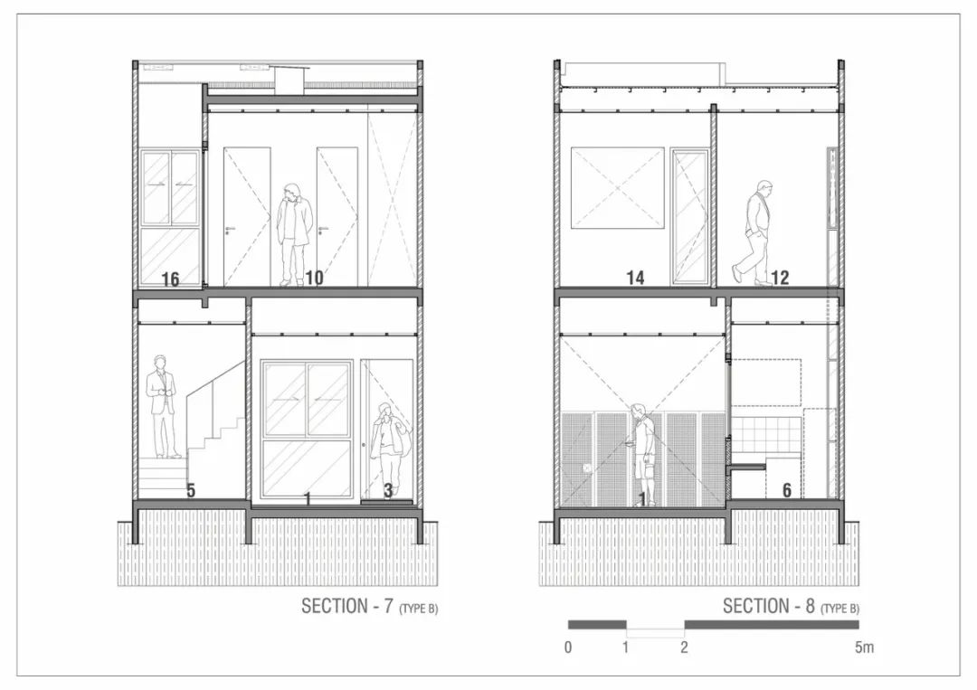
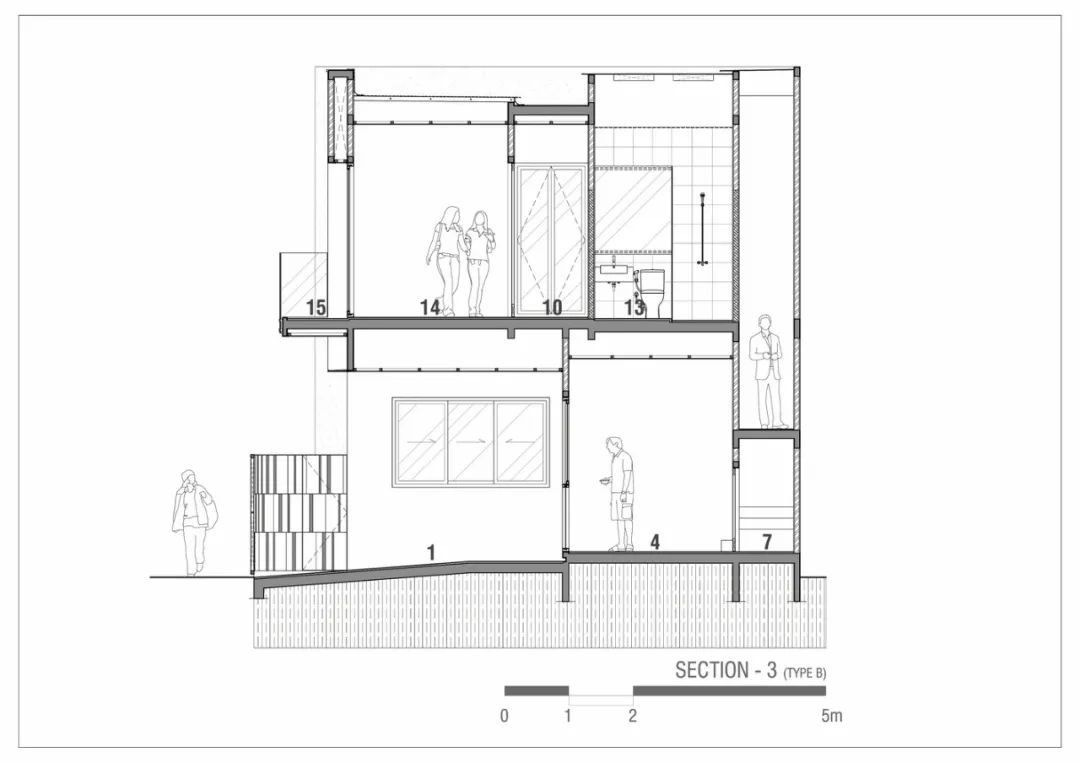
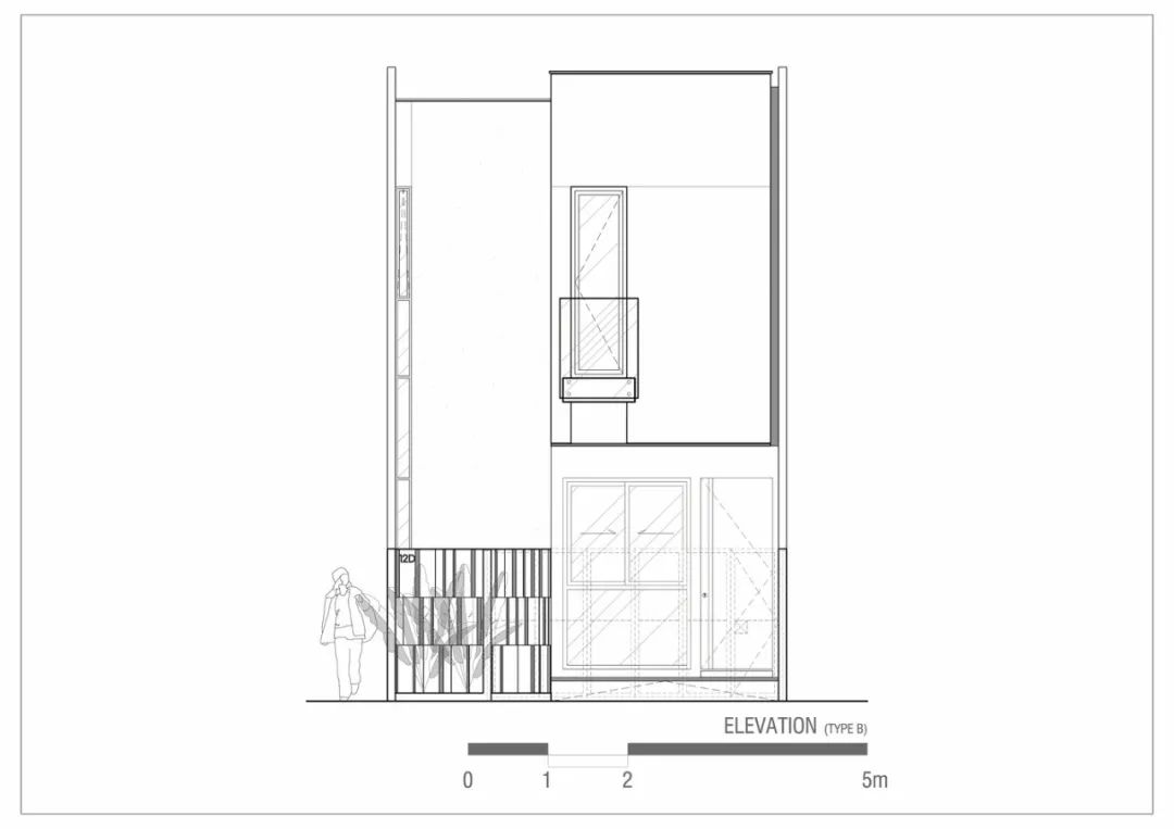
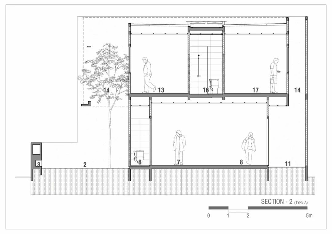
03-项目图纸
\
品牌餐饮揸FIT人
2020年“勾勾手设计站”业务布局:
分享
个人住宅开发
以潘小君自建房核心IP对外进行项目设计及施工服务,业务范围主要在广佛一带。
软装设计
专注于住宿及民宿项目配套服务。
餐饮品牌设计及供应链建立:
以梦茹餐饮工作室为核心IP,专
注于新餐饮品牌的再造。
网红民宿及移动民宿产品设计:
专注于网红民宿设计及运营、移动民宿产品开发。
团队相应版块揸FIT人介绍
自建房揸FIT人(主业)
施工图制作服务
勾勾手传媒团队
出品,设计参考尽在勾勾手设计站!
服务咨询→→→→
GGH设计机构
业务负责人
餐饮版块业务负责人
勾勾手自媒体矩阵列→→→→→→
勾勾手,是为解决设计者及中小型工作室、设计公司、民宿宿主对设计、建材、灯具、家具、民宿、施工等产品的落地方案问题的最终解决公司。集设计、产品开发、品牌运营、施工等一体化。
往期话题
Past Topics Click
了解更多,点击以下专辑
▽
01-红砖屋专辑
02-集装项目
专辑
03-德国住宅专辑
04-墨西哥住宅专辑
05-泰国住宅专辑
06-梦茹餐饮工作室专辑
▽
整理中
END
客服
消息
收藏
下载
最近
































































