查看完整案例


收藏

下载
⇧
点击上方
勾勾手设计站
预计占用你90秒便可看完文章。。。。。
刘老师说
位于加州比佛利山庄8600威尔谢林荫大道的 gardenhouse 是一个多用途的项目,包括18个住宅单元,位于地面商业空间之上。唤起了比弗利山庄苍翠繁茂的景观,这个方案变成了一个“山坡村庄” ,住宅单元从建筑活生生的绿色墙壁上“成长”起来。一组白色立面、不规则形状的窗户和山墙屋顶结构构成了一个充满活力的社区,以及一个有趣、诙谐,但简单的对洛杉矶标志性山坡的致敬。
项目完成后,将建造美国最大的绿化墙之一。这个特别的外壳覆盖着本地的,耐旱的肉质植物和葡萄藤,它们熟悉当地的气候,不需要额外的灌溉和维护。其结果是形成了独特的纹理,形成了有机的,自然的,季节性的附加街道景观。
4460平方米(48000平方英尺)的“山坡村”提供了各种不同的住房类型: 两个工作室,八个共管公寓,三个联排别墅和五个别墅。这种健康的混合产生了一种高度的社区意识,即使在这种小规模的开发中,也有一种个性和排他性的感觉。与传统的公寓方案不同,每个单元都有自己独立的进出通道,而几乎每个单元都有一个带有动态内部表达的坡屋顶体量。
二楼的庭院被一群白色斜顶的“房子”包围,形成了一个小社区的中心景观聚集空间。在仔细考虑了距离,朝向,以及俯瞰庭院的阳台的布置后,结果是居民和他们共享的“秘密花园”之间形成了一个私密,宁静,方便的互动。
“园艺屋”的居民可以通过位于赤柱威尔谢林荫大道一楼的入口进入。入口处充满了山洞般的气氛,幽暗、超现实的环境引导居民穿越光、影、水声的“仙境”。再往前,柔软的洞穴迎合了一个明亮的结论,自然光线透过连接的水景从上面的庭院天井涌入。站在这个门槛之下,游客们惊叹于太阳、天空、风景和水的框架景观: 一幅活生生的画,将人们从城市的现实中抹去。
通过“园艺屋” ,mad 试图反驳世界各地高密度城市典型的立方体生活环境。与自然的内在联系,每个单元都有一个宁静的共享庭院和私人户外空间,创造了一个距离城市环境几米远的平静绿洲。其结果是建筑可以同时连接建筑和自然环境,提供更完整、和谐的生活体验的理念的物理表现。
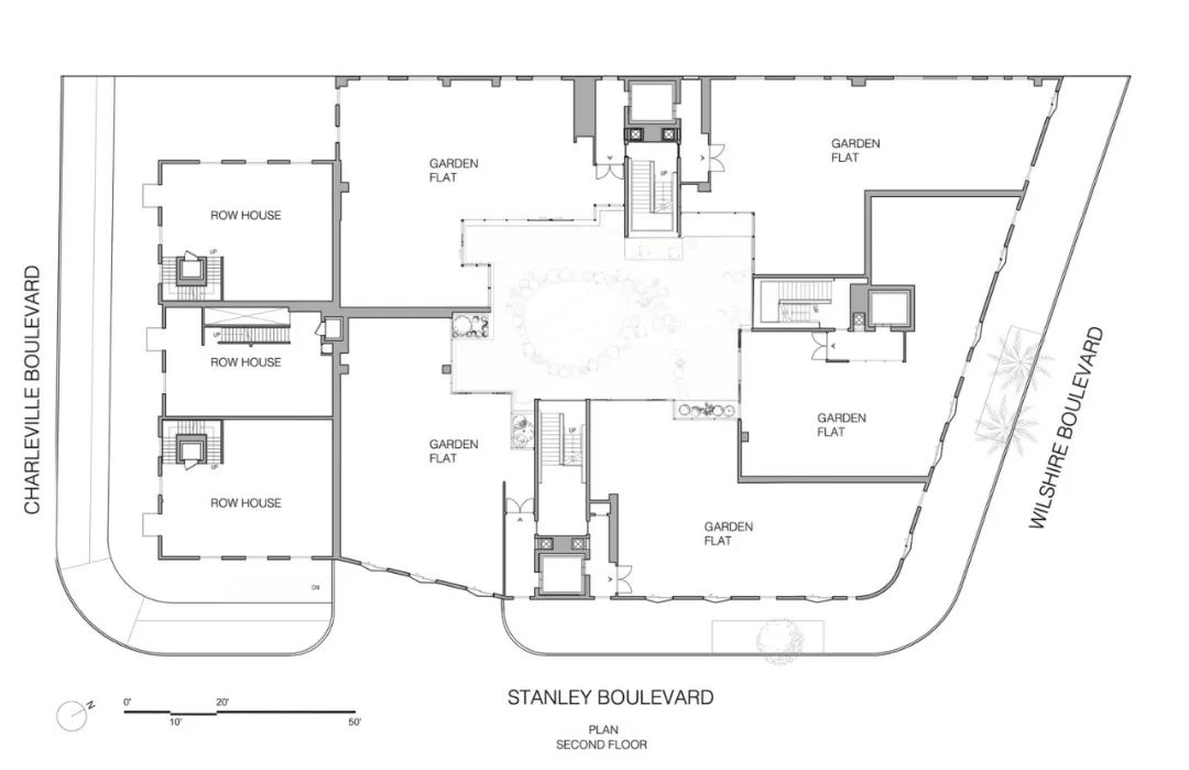
02-项目图纸
品牌餐饮揸FIT人
2020年“勾勾手设计站”业务布局:
分享
个人住宅开发
为核心业务,业务范围主要在广佛一带。
软装设计
专注于地产项目配套服务。
餐饮品牌设计
专注于新餐饮品牌的再造。
网红民宿设计
专注于旧变新的网红民宿再造。
团队相应版块揸FIT人介绍
自建房揸FIT人(主业)
装修贷专员(附带)
佛山设计中心
民宿软装设计
设计品牌:吴俊
唯邑设计
以上是勾勾手设计的部分团队及成员,后期会一个个进行介绍推广及人员更新
勾勾手自媒体(
出品,设计参考,尽在勾勾手设计!
服务咨询→→→→
勾勾手自媒体矩阵列→→→→→→
勾勾手,是为解决设计者及中小型工作室、设计公司、民宿宿主对设计、建材、灯具、家具、民宿、施工等产品的落地方案问题的最终解决公司。集设计、产品开发、品牌运营、施工等一体化。
往期话题
Past Topics Click
了解更多,点击以下专辑
▽
红砖屋专辑
集装项目
专辑
德国住宅专辑
墨西哥住宅专辑
泰国住宅专辑
▽
整理中
END
客服
消息
收藏
下载
最近












































