查看完整案例


收藏

下载
⇧
点击上方
勾勾手设计站
预计占用你90秒便可看完文章。。。。。
刘老师说
一个平静和宁静的地方的想法,位于一个老街道与城市的历史悠久,突出了典型的联排别墅建筑风格在1975年以前,包括一楼和一楼的标志性鹅卵石洗刷的立面。
经过几次装修之后,这座房子已经改变了外观,并且总的来说被降级了。为了让它回到原来的样子,鹅卵石冲刷物被重复使用在立面上,结合一块大的铁牌,经过几个雨季和干旱季节,墙壁和铁板被调低,融入街道景观中。经过几次装修之后,这座房子已经改变了外观,并且总的来说被降级了。为了让它回到原来的样子,鹅卵石冲刷物被重复使用在立面上,结合一块大的铁牌,经过几个雨季和干旱季节,墙壁和铁板被调低,融入街道景观中。
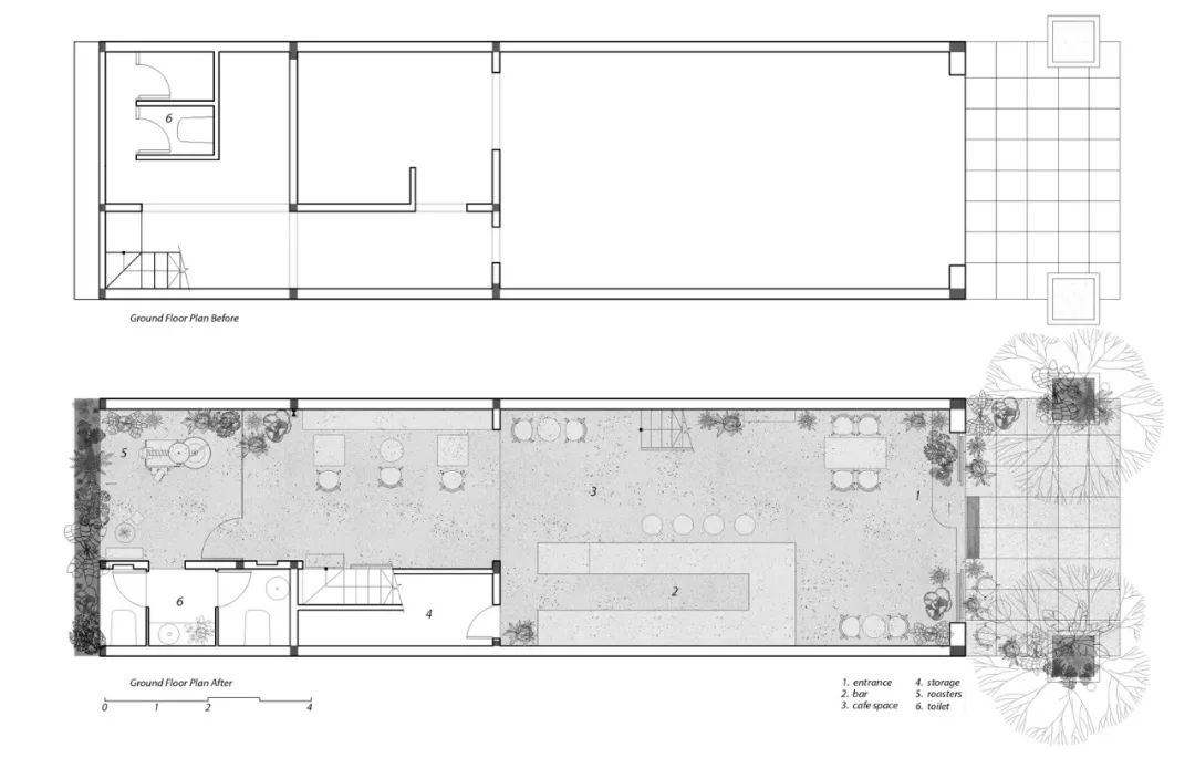
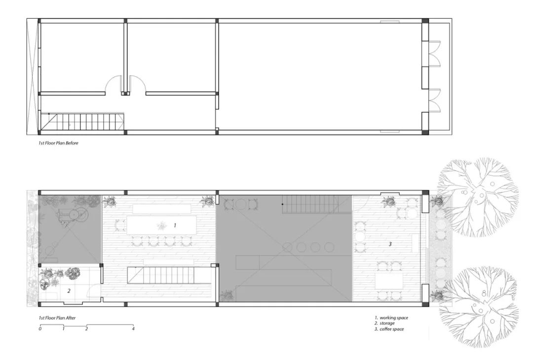
缺乏通风和采光的典型联排别墅。我们提出了一个分层的空间布局:-水平: 清晰和连贯地安排水平空间层,以邻居家的粗糙墙壁结束。垂直空间: 中庭空间与低空间交替布局,酒吧所在的大型中庭空间(心脏空间) ,这些中庭空间旨在创造人与人之间更多的互动,创造舒适和舒适的氛围。模糊和悬挂的建筑过渡贯穿整个功能空间: 凸起的地板,窗帘,对比材料,但仍然确保透明度和均匀的材料整个结构。
旧纤维水泥屋面的结构体系采用旧梁和木地板再加工,然后结合当地建筑工人的建筑技术: 将卵石冲刷墙过渡到木墙,再用灰色水泥墙打磨混凝土地板,用玻璃和木材进行调整。所有这些都有助于优化投资成本,也为项目带来了当地的氛围。
02-项目图纸
品牌餐饮揸FIT人
2020年“勾勾手设计站”业务布局:
分享
个人住宅开发
为核心业务,业务范围主要在广佛一带。
软装设计
专注于地产项目配套服务。
餐饮品牌设计
专注于新餐饮品牌的再造。
网红民宿设计
专注于旧变新的网红民宿再造。
团队相应版块揸FIT人介绍
自建房揸FIT人(主业)
装修贷专员(附带)
佛山设计中心
民宿软装设计
设计品牌:吴俊
唯邑设计
以上是勾勾手设计的部分团队及成员,后期会一个个进行介绍推广及人员更新
勾勾手自媒体(
出品,设计参考,尽在勾勾手设计!
服务咨询→→→→
勾勾手自媒体矩阵列→→→→→→
勾勾手,是为解决设计者及中小型工作室、设计公司、民宿宿主对设计、建材、灯具、家具、民宿、施工等产品的落地方案问题的最终解决公司。集设计、产品开发、品牌运营、施工等一体化。
往期话题
Past Topics Click
了解更多,点击以下专辑
▽
红砖屋专辑
集装项目
专辑
德国住宅专辑
墨西哥住宅专辑
泰国住宅专辑
▽
整理中
END
客服
消息
收藏
下载
最近













































