查看完整案例


收藏

下载
⇧
点击上方
勾勾手设计站
预计占用你90秒便可看完文章。。。。。
设计故事
故事发生在距温哥华20分钟车程的波文岛北岸,由 mcfarlane 建筑师事务所的 steve mcfarlane 设计的现代小屋。小屋名为 bowen 岛屋,灵感来自于客户的简单愿望: 住在一个体现了与自然的专注和有意的关系的家里。
Mcfarlane 希望为客户创造机会,体验与场地的“亲密时刻” ,平衡地平线的广阔视野和更集中的景观视野。
建筑师说: “视野和阳光的接触确实是帮助我们定位住宅的关键因素。”。住宅位于尽可能靠北的地方,以最大限度地利用有限的南向光线,从建筑物后面森林覆盖的悬崖上窥视。
“我们对在网站上小心行事的想法很感兴趣。使用绿色屋顶是这个的合理延伸。麦克法兰解释说: “当你介绍一个替代森林地面的建筑物时,在屋顶上复制这个建筑物作为回报是很好的,这样可以继续为鸟类、动物和植物创造栖息地,并帮助管理雨水的流动。”。
到了晚上,灯火通明的屋顶灯笼向游客招手,他们必须沿着森林覆盖的道路走向鲍文岛的房子。
在家里,屋顶的灯笼照亮了厨房和用餐区。它们是天窗的一种低维护成本的替代品,因为它们不会让森林的残骸积累起来,并可能阻挡头顶的自然光线。
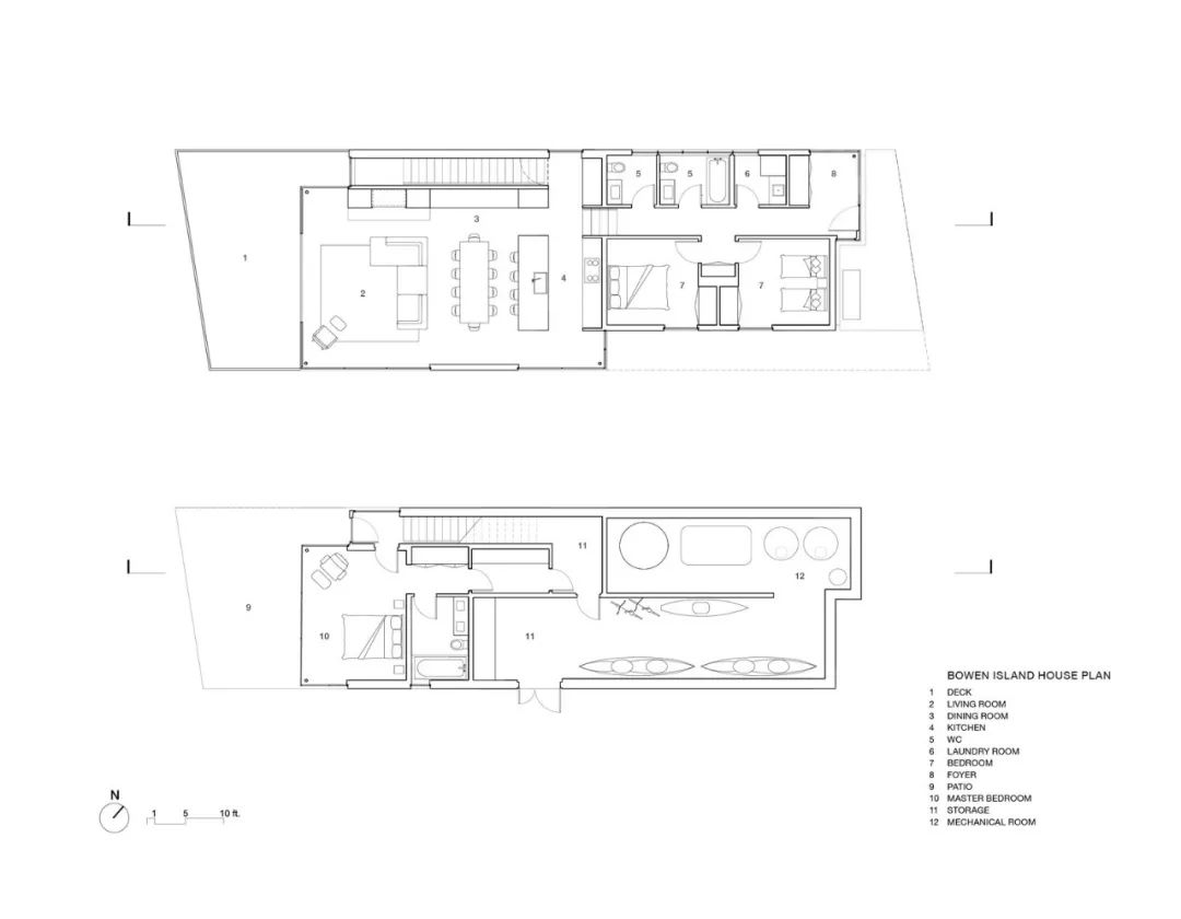
02-项目图纸
品牌餐饮揸FIT人
2020年“勾勾手设计站”业务布局:
分享
个人住宅开发
为核心业务,业务范围主要在广佛一带。
软装设计
专注于地产项目配套服务。
餐饮品牌设计
专注于新餐饮品牌的再造。
网红民宿设计
专注于旧变新的网红民宿再造。
团队相应版块揸FIT人介绍
自建房揸FIT人(主业)
装修贷专员(附带)
佛山设计中心
民宿软装设计
设计品牌:吴俊
唯邑设计
以上是勾勾手设计的部分团队及成员,后期会一个个进行介绍推广及人员更新
勾勾手自媒体(
出品,设计参考,尽在勾勾手设计!
服务咨询→→→→
勾勾手自媒体矩阵列→→→→→→
勾勾手,是为解决设计者及中小型工作室、设计公司、民宿宿主对设计、建材、灯具、家具、民宿、施工等产品的落地方案问题的最终解决公司。集设计、产品开发、品牌运营、施工等一体化。
往期话题
Past Topics Click
了解更多,点击以下专辑
▽
红砖屋专辑
集装项目
专辑
德国住宅专辑
墨西哥住宅专辑
泰国住宅专辑
▽
整理中
END
客服
消息
收藏
下载
最近




























