查看完整案例


收藏

下载
⇧
点击上方
勾勾手设计站
预计占用你90秒便可看完文章。。。。。
设计故事
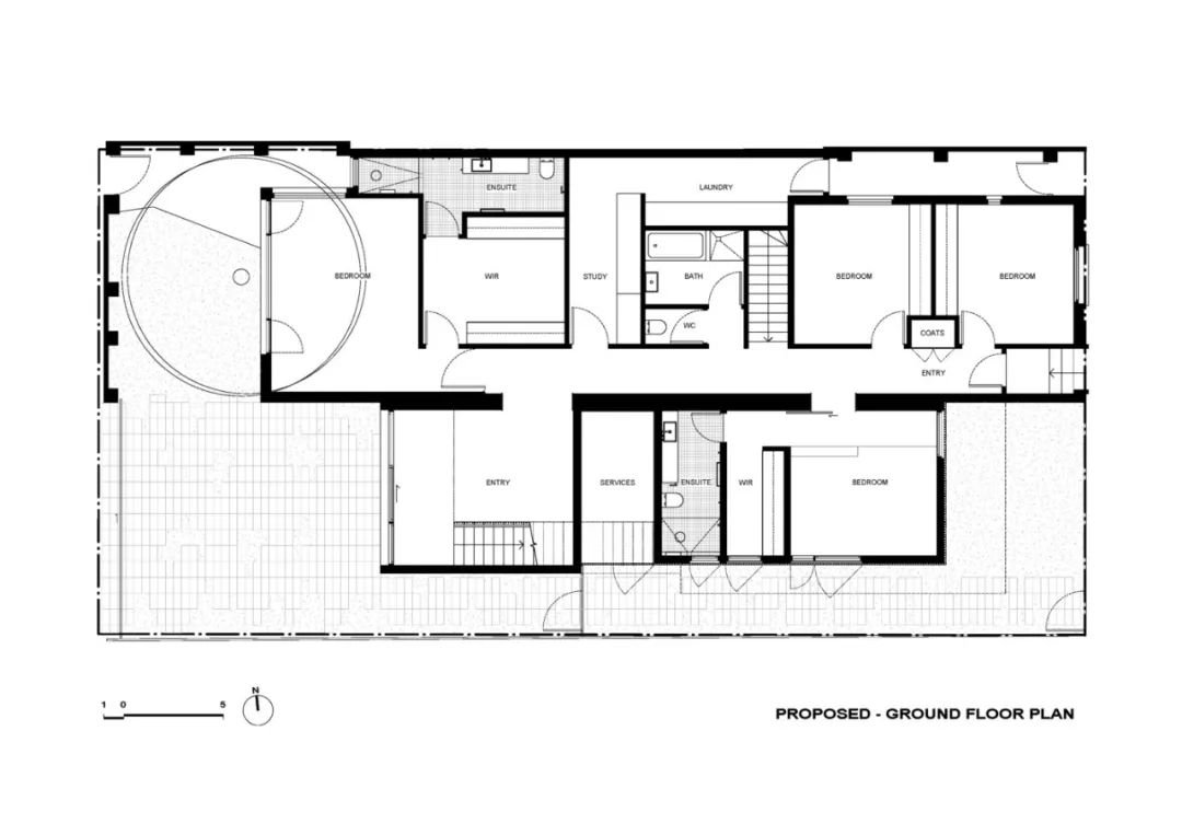
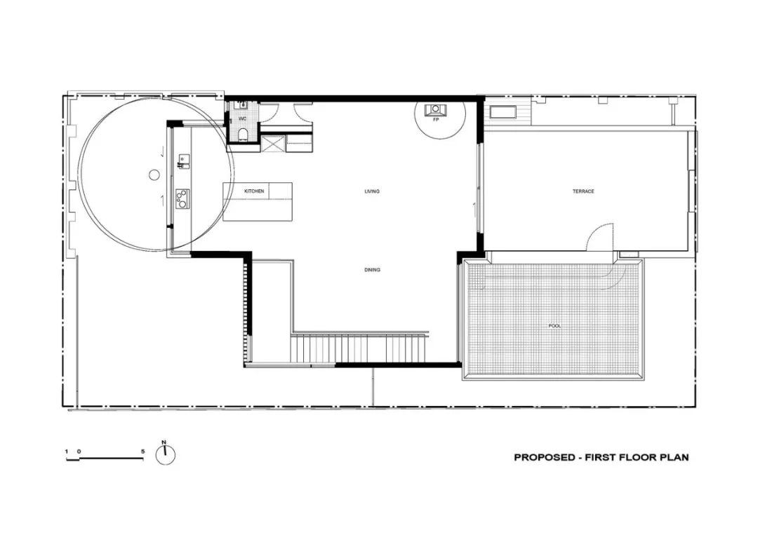
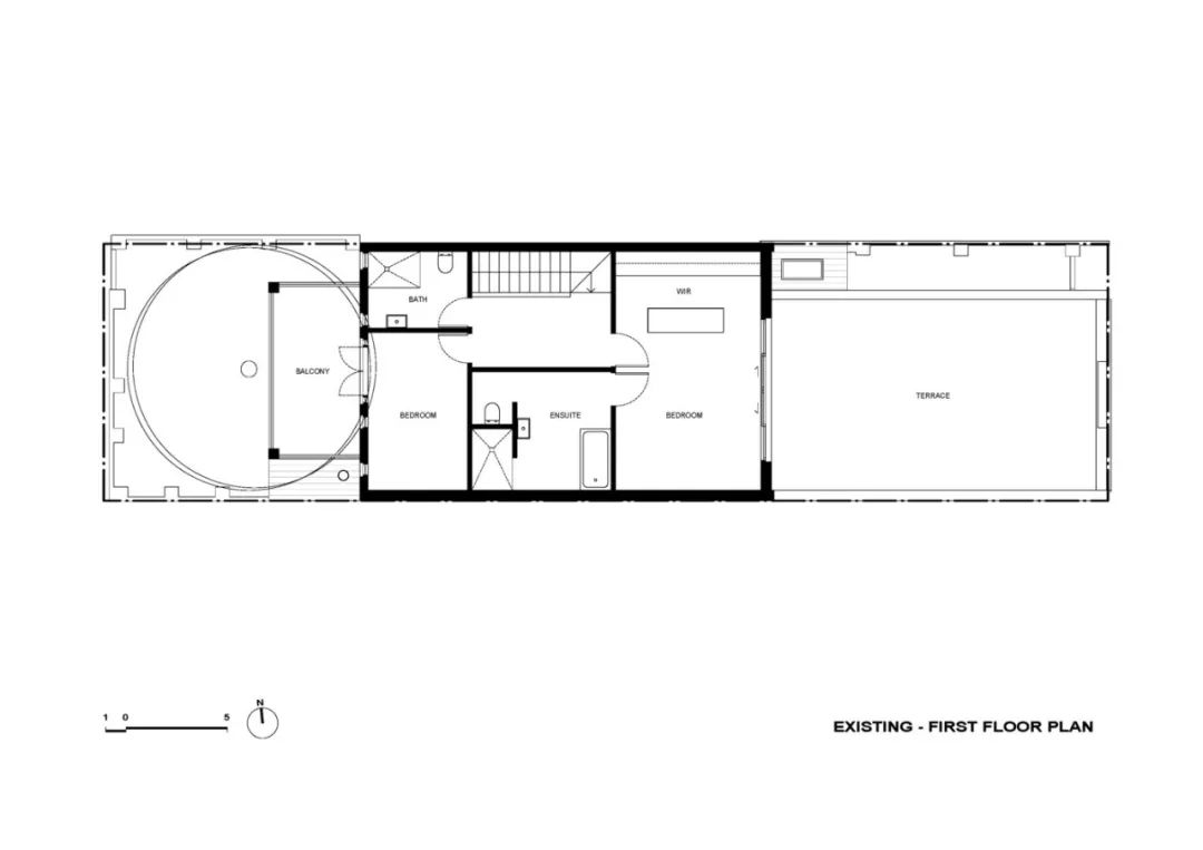
泳池房让我们重新想象一个家庭现在和未来的生活方式,将客户现有的财产转变为一个多代同堂的终身住宅。该项目为我们提供了一个独特的机会,以克服现代化的、对环境敏感的开发中老式露台住宅的不足之处。
优先考虑的是将尽可能多的光线带入生活空间,同时连接到全年使用的户外空间。为了达到这个目的,宽敞的开放式生活区被提升到一楼,允许客户在温暖的月份,获得难以置信的景观,自然光和凉爽的微风。游泳池毗邻现有的一楼露台区域,之前未得到充分利用,游泳池沐浴在阳光下,并与生活区无缝连接。卧室位于地面,以提高热稳定性和隐私,而双车空间定位在后巷,毗邻一个新的内部入口大厅。
从外部来看,对规模和细节的敏感运用使得住宅与周围的维多利亚文化遗产融为一体,确保了与现有街景的兼容性,同时提供了一种独特的当代方式来接近内城的生活。
02-项目图纸
品牌餐饮揸FIT人
2020年“勾勾手设计站”业务布局:
分享
个人住宅开发
为核心业务,业务范围主要在广佛一带。
软装设计
专注于地产项目配套服务。
餐饮品牌设计
专注于新餐饮品牌的再造。
网红民宿设计
专注于旧变新的网红民宿再造。
团队相应版块揸FIT人介绍
自建房揸FIT人(主业)
装修贷专员(附带)
佛山设计中心
民宿软装设计
设计品牌:吴俊
唯邑设计
以上是勾勾手设计的部分团队及成员,后期会一个个进行介绍推广及人员更新
勾勾手自媒体(
出品,设计参考,尽在勾勾手设计!
服务咨询→→→→
勾勾手自媒体矩阵列→→→→→→
勾勾手,是为解决设计者及中小型工作室、设计公司、民宿宿主对设计、建材、灯具、家具、民宿、施工等产品的落地方案问题的最终解决公司。集设计、产品开发、品牌运营、施工等一体化。
往期话题
Past Topics Click
了解更多,点击以下专辑
▽
红砖屋专辑
集装项目
专辑
德国住宅专辑
墨西哥住宅专辑
泰国住宅专辑
▽
整理中
END
客服
消息
收藏
下载
最近



































