查看完整案例


收藏

下载
⇧
点击上方
勾勾手设计站
预计占用你90秒便可看完文章。。。。。
01-设计故事
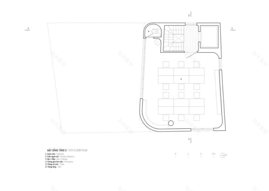
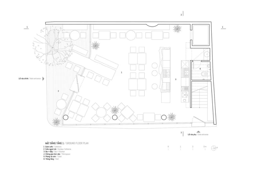
建筑面积118平方米,共6层,主体部分和主体部分分为两部分。主体在一楼和二楼,头部从三楼到六楼。建筑的目的是: 工作站,举行会议,租赁办公空间也结合销售咖啡。
我们把主厅安排在二楼,优先考虑一楼的商业区。为了在楼层之间移动,我们增加了靠墙的楼梯,与建筑右侧的巷道平行。另一个连接头部的所有地板。在照明方面,所有大堂都面向正面,以获得自然光。三楼有一个阳台,可以直接暴露在阳光下。因此,我们增加了树木,以获得阴影和装饰。
为了使两个部分看起来一致,我们特意用曲线和阳台将它们连接起来,门廊和室内也是同样的用途。特别是从三楼前面开始的曲线,一直延伸到后面,最后在一个开放的院子里完成,院子里的树木将他们的阴影伸展到二楼和一楼。非常适合喜欢在户外喝咖啡的人。最后,为了减少气候带来的热量,我们建议不要过于频繁地打开门窗,以保持室内温度。
优势——建筑位于一个三向交叉路口的拐角处,朝南,正面连接着一条高度密集的交通道路。缺点-由于设计风格,从3楼到6楼的楼面面积减少到只有53平方米。根据建筑法规,在区划中,所有建筑物在土地使用上都必须有后退,从而导致建筑物前面出现大面积的空地。
02-项目图纸
品牌餐饮揸FIT人
2020年“勾勾手设计站”业务布局:
分享
个人住宅开发
为核心业务,业务范围主要在广佛一带。
软装设计
专注于地产项目配套服务。
餐饮品牌设计
专注于新餐饮品牌的再造。
网红民宿设计
专注于旧变新的网红民宿再造。
团队相应版块揸FIT人介绍
自建房揸FIT人(主业)
装修贷专员(附带)
佛山设计中心
民宿软装设计
设计品牌:吴俊
唯邑设计
以上是勾勾手设计的部分团队及成员,后期会一个个进行介绍推广及人员更新
勾勾手自媒体(
出品,设计参考,尽在勾勾手设计!
服务咨询→→→→
勾勾手自媒体矩阵列→→→→→→
勾勾手,是为解决设计者及中小型工作室、设计公司、民宿宿主对设计、建材、灯具、家具、民宿、施工等产品的落地方案问题的最终解决公司。集设计、产品开发、品牌运营、施工等一体化。
往期话题
Past Topics Click
了解更多,点击以下专辑
▽
红砖屋专辑
集装项目
专辑
德国住宅专辑
墨西哥住宅专辑
泰国住宅专辑
▽
整理中
END
客服
消息
收藏
下载
最近














































