查看完整案例


收藏

下载
⇧
点击上方
勾勾手设计站
预计占用你90秒便可看完文章。。。。。
01-设计故事
Hoev 工程,用混凝土结构建造,是惊人的开放和温暖。住宅的设计考虑到了家庭的未来,因为主卧室和浴室都位于一楼。
主要功能位于房子的后部,所以体量的位置是这样的,有最大的阳光通道,而不会阻碍邻居的入口。对于立面材料,混凝土和木材被选择为一个现代和永恒的诠释。混凝土建筑中的低能耗住宅是一个可持续的解决方案。这房子保温性能很好,而且建筑完全密封。
此外,这种建筑方式具有独特的热惯性拥有属性。通过在后立面提供大面积的玻璃部分,内部和外部之间的界限变得模糊,花园与住宅的最佳连接
。
与街道的联系是通过狭窄优雅的窗户以一种微妙的方式创造出来的,这样就可以在不损害房子隐私的情况下,创造出一种有趣的互动。此外,一个开放的平面,在房子里的不同区域之间创造了很多联系。家具完美地融入了建筑,而空间让空间变得迷人和流动。
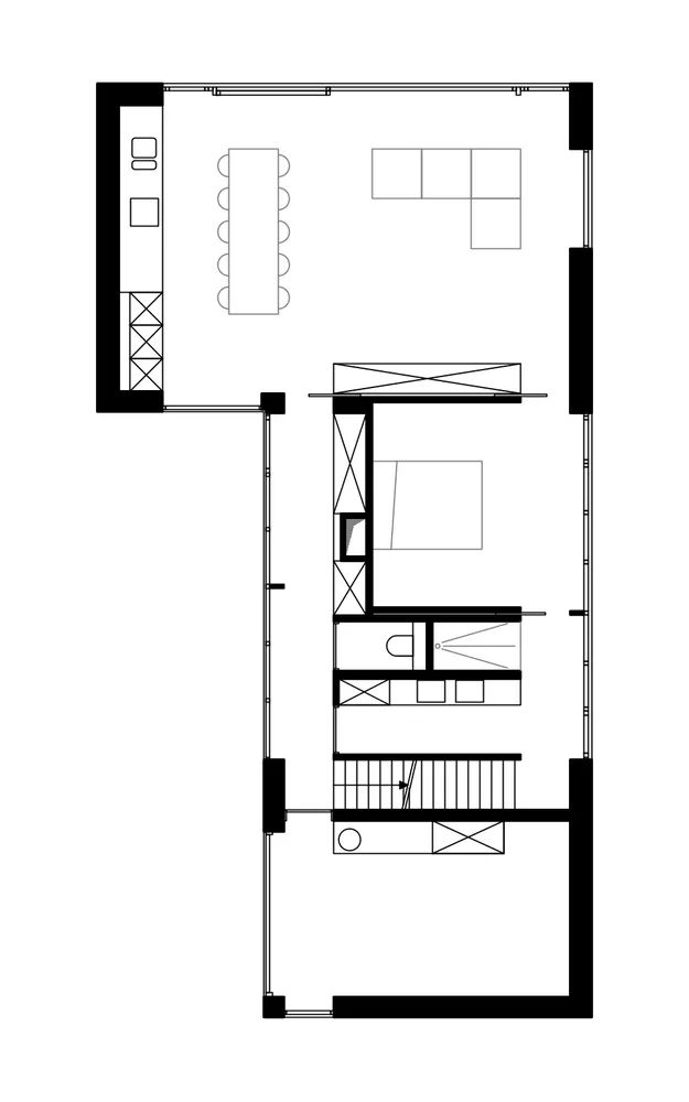
02-项目图纸
品牌餐饮揸FIT人
2020年“勾勾手设计站”业务布局:
分享
个人住宅开发
为核心业务,业务范围主要在广佛一带。
软装设计
专注于地产项目配套服务。
餐饮品牌设计
专注于新餐饮品牌的再造。
网红民宿设计
专注于旧变新的网红民宿再造。
团队相应版块揸FIT人介绍
自建房揸FIT人(主业)
装修贷专员(附带)
佛山设计中心
民宿软装设计
设计品牌:吴俊
唯邑设计
以上是勾勾手设计的部分团队及成员,后期会一个个进行介绍推广及人员更新
勾勾手自媒体(
出品,设计参考,尽在勾勾手设计!
服务咨询→→→→
勾勾手自媒体矩阵列→→→→→→
勾勾手,是为解决设计者及中小型工作室、设计公司、民宿宿主对设计、建材、灯具、家具、民宿、施工等产品的落地方案问题的最终解决公司。集设计、产品开发、品牌运营、施工等一体化。
往期话题
Past Topics Click
了解更多,点击以下专辑
▽
红砖屋专辑
集装项目
专辑
德国住宅专辑
墨西哥住宅专辑
泰国住宅专辑
▽
整理中
END
客服
消息
收藏
下载
最近
































































